Foamcrest公寓位于悉尼北部海滩新港沿海郊区的一个困难的三角形场地上,是一个由独特的场地产生的形式。釉面砖、异形混凝土和砂岩的组成,以及因其耐用性和适合海洋边的位置而选择的材料,这七个公寓是100%的适应性,并通过独特的计划来区分。有两个突出的临街面和一个向天空开放的中央大厅,该设计仔细地平衡了太阳能的获取、隐私和前景。形式上强调了低轮廓的水平性,总体上远低于高度限制。该建筑的特点为该地区提供了一个新鲜和现代的贡献。
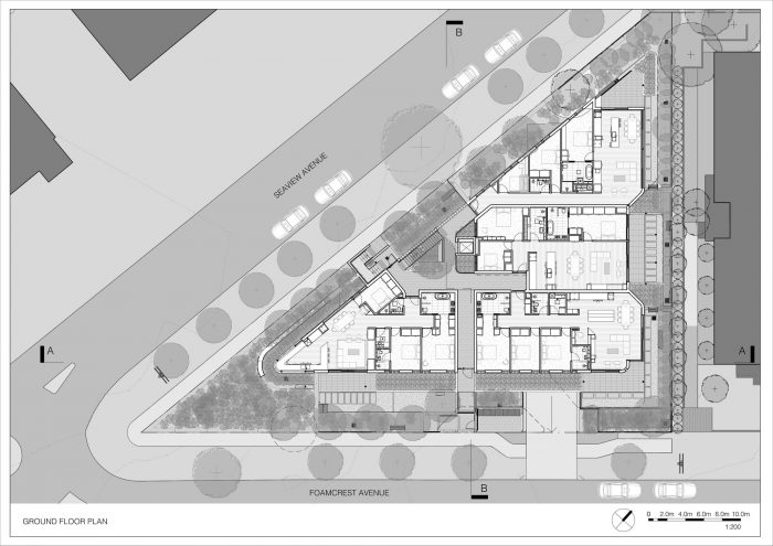
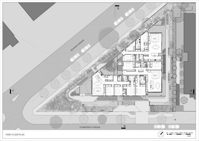
On a difficult triangular site in the coastal suburb of Newport on the Northern Beaches of Sydney, Foamcrest Apartments is a form generated from the unique site. A composition of glazed bricks, off form concrete and sandstone, and materials selected for their durability and appropriateness for the ocean side location, the seven apartments are 100% adaptable and differentiated by unique plans. With two prominent street fronts and a central lobby that is open to the sky, the design carefully balances solar access, privacy, and outlook. The form emphasizes a low profiled horizontality that is generally well below the height limit. The character of the building provides a fresh and contemporary contribution to the locality.




独特的规划、工艺水平、细节和高品质材料的使用表明了开发商对建筑解决方案的承诺,这在小规模的多住宅投机性开发中是不常见的,特别是在北部海滩。我们希望这个新的基准能够提高该地区类似开发项目的质量。整体形式的水平性使该项目有别于典型的多住宅轮廓,与公共领域建立了独特的对话。
The unique planning, level of craftsmanship, detail, and the use of high-quality materials demonstrate a level of commitment to an architectural solution by the developer which is unusual in a small-scale multi- residential speculative development, particularly on the Northern Beaches. It is hoped that this new benchmark will improve the quality of similar development in the area. The horizontality of the overall form distinguishes the project from typical multi-residential profiles, establishing a unique dialogue with the public realm.


该公寓楼自信地与场地顶点邻近的环岛相呼应,以其紧凑的半径和单槽开口提供了一个令人难忘的场所标志角。该建筑的形式强调了低矮的水平线,总体上远低于高度限制。该建筑的特点为该地区提供了一个新鲜、现代和适当的贡献。
The apartment building confidently addresses the adjacent roundabout at the apex of the site, providing a memorable place-marker corner with its tight radius and single slot opening. The form emphasizes a low profiled horizontality that is generally well below the height limit. The character of the building provides a fresh, contemporary, and appropriate contribution to the locality.

场地向北倾斜,提供了一个宽阔的北面,使人感觉到对南部繁忙的环岛的保护。非传统的轮廓被转化为七个公寓,它们通过独特的规划来区分,每个都是对其在整个场地内的位置的回应。因此,这提供了一个在多住宅开发中不常见的选择和身份。规划将有问题的三角角转化为向多个方面开放的机会,以获得更多的阳光和交叉通风的好处。七套公寓中有五套面向正北。
The site slopes down to the north, providing a wide northern aspect and enabling a sense of protection from the busy southern roundabout. The unconventional profile is translated to the seven apartments, which are differentiated by unique plans, each a response to its location within the overall site. Subsequently, this provides a level of choice and identity unusual in multi-residential developments. The planning transforms problematic triangular corners into opportunities to open onto multiple aspects, with the benefit of greater solar access and cross ventilation. Five of the seven apartments face due north.

共同的大厅被侵蚀到形式中,并向天空开放,提供了一个绿色的中心和增加交叉通风的机会。大厅有一个精致的垂直细节,将人们的视线引向天空的框架。斑斓的色彩使它与坚固的外表相区别。西部的垂直砂岩叶片屏风提供了戏剧性的午后光线模式。特色的树木种植,包括当地特有的白菜树棕榈林,提供了有吸引力的远景,从突出的南部交叉口增强了当地的特色,也提供了与现有的纽波特村种植主题的联系。
The common lobby is eroded into the form and open to the sky, providing a green center and increased opportunity for cross ventilation. The lobby has a delicate vertical detailing directing eyes to the framed view of the sky. Splashes of color differentiate it from the robust exterior. A Western screen of vertical sandstone blades provides dramatic afternoon patterns of light. Feature tree planting including locally endemic Cabbage Tree Palm groves provide attractive vistas and enhance the character of the locality from the prominent southern intersection, also providing links to the existing Newport village planting theme.


该建筑向附近被海洋侵蚀的海岸线的圆润形式和水色致敬,赞美了混凝土的可塑性和闪闪发光的淡绿色砖块的能力。全高的内部门和外部开口增加了空间感。窗户上可操作的垂直外部百叶窗使住户可以调节隐私程度以及光线、空气和声音的进入。澳大利亚硬木的天花板和地板提供了温暖和质感。
With a nod to the rounded forms and aqueous colors of the proximate ocean-worn coastline, the building celebrates the plastic qualities of concrete and the capabilities of the shimmering pale green bricks. Full-height internal doors and external openings increase the sense of space. Operable vertical external louvers to windows allow residents to modulate the level of privacy and the entry of light, air, and sound. Australian hardwood timber ceilings and floors provide warmth and texture.






















Architects: Richard Cole Architecture
Area : 1041 m²
Year : 2020
Photographs : Simon Wood
Manufacturers : Heirloom Fibrecraft
Landscape Architecture : Trish Dobson Landscape Architect
Structural Engineering : ACOR Consultants
Country : Australia