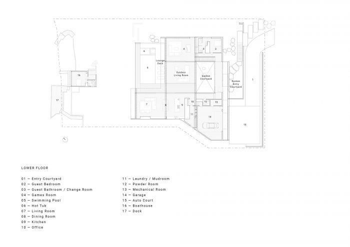
坐落在一个陡峭的水边地块上,两侧是郊区的环境,Four & Four House将客户对中世纪柱梁结构的喜爱与当代的适应性结合起来。场地的宽阔和半自然状态为景观元素提供了机会,以四个不同的庭院形式来组织房子的顺序。四根巨大的横梁用当地磨制的黄杉木包裹着这些空间:
Situated on a steep waterfront lot flanked by a suburban context, the Four & Four House knits together the client’s affinity for mid-century, post-and-beam construction with contemporary adaptations. The site’s generous width with its semi-naturalized condition presented an opportunity for landscape elements to organize the sequence of the house in the form of four distinct courtyards. Clad in locally-milled yellow cedar, four massive beams frame these spaces:



在入口处有一个由混凝土墙框住的下沉式庭院,为车辆的移动和客人的到来提供了横向和纵向的分离;一个自然种植的花园庭院在一个双层高度的中庭中向天空开放,将过滤后的南光引入下面的室内空间;紧挨着花园的一个遮蔽的室外客厅为多季节的活动提供了环境;悬挂在房子的混凝土基座上的休闲平台为无障碍的水景和其不断变化的条件让路。
A sunken courtyard at the entrance framed by concrete walls provides lateral and vertical separation between vehicular movement and guest arrival; A naturally planted garden courtyard opens up toward the sky in a double-height atrium to bring in filtered south light to the interior spaces below; A sheltered outdoor living room immediately next to the garden provides the setting for multi-seasonal activities; A lounge deck hanging over the concrete base of the house gives way to unobstructed views of the water and its ever-changing conditions.


在空间上,中央庭院将两侧的正式和非正式生活区分开,同时通过全高的玻璃窗允许视觉连接。一个全玻璃的长廊作为生活空间、下沉式庭院和花园之间的交叉点。上层是一个包含卧室的屏风体,像一座桥一样横跨下面的室外起居室。
Spatially, the central courtyard separates the flanking formal and informal living areas while still allowing visual connection through full-height glazing. A fully glazed gallery acts as the intersection between the living spaces, sunken courtyard, and garden. The upper floor—a screened volume that contains the bedrooms—spans the outdoor living room below like a bridge.


这个体量被战略性地移向街道,因此从街道上看,南立面的整体立面传达了一种隐私感。同时,降低的窗头在视觉上减少了房屋在水边的体量,使其看起来像一个单层的体量,符合客户对中世纪美学的欣赏。
This volume is strategically shifted toward the street so that the monolithic façade at the south elevation conveys a sense of privacy when viewed from the street. Meanwhile, lowered window heads visually reduce the house’s massing from the water’s edge to give it the appearance of a single-story volume following the client’s appreciation for mid-century aesthetics.











Designers: Mcleod Bovell Modern Houses
Area : 6600 ft²
Year : 2019
Photographs :Andrew Latreille
Manufacturers : panoramah!®, WOODlife
Builder : J Bannister Homes
Structural : KSM Associates LTD
Lead Designers : Matt McLeod, Lisa Bovell, Devon Burry
Survey : Hobbs, Winter & MacDonald
City : West Vancouver
Country : Canada