在哥本哈根北部的一个斜坡上,"Fredensborg House "建在由台阶连接的五个小平台上,反映了其周围地形的形状。房子的审美来自于迷宫般的山村建筑带来的灵感,那些你可能会发现在南欧很熟悉的建筑,中国寺庙的建筑,以及丹麦现代主义建筑家Jørn Utzon的作品中。
On a sloping property north of Copenhagen, the “Fredensborg House” is built on five small plateaus connected by steps, reflecting the shape of its surrounding terrain. The house aesthetic is derived from inspirations brought about by the labyrinthine mountain village architecture, those that you may find familiar in Southern Europe, the architecture of Chinese temples, and in the works of modernist Danish architecture Jørn Utzon.


弗雷登斯堡大厦的许多黄瓦屋顶有节奏地相互重叠--在设计中与斜坡的运动产生共鸣。屋顶的色调由四种不同的黄色和棕色调混合组成,以达到自然不完美的效果。当从物业的最高点看屋顶时,它给人一种看似和谐而迷人的微型场景,就像传统的南欧山村一样。
The many yellow tile roofs of the Fredensborg House rhythmically overlaps each other - resonating the movements of the slopes in design. The roofs color palette consists of four different yellow and brownish tones in a mix, to achieve a natural imperfection. It gives a seemingly harmonious and charming miniature scene like that of a traditional Southern European mountain village, when the roofs are viewed from the highest point of the property

一个宽大的中央楼梯是房屋建筑内部的特点,通过不同高度的天花板和巨大的玻璃外墙,透过空灵的花园,突出了这一点。垂直的窄窗面向东和西,以优化观察点,同时作为自然光的画布,成功地照亮了屋内的空间。
A wide central staircase characterizes the architectural interior of the house, highlighted by the ceilings varying heights and the vast glass facades looking through the ethereal garden. The vertical narrow windows faced east and west to optimize viewing points, as well as to serve as a canvas for natural light to successfully illuminate space within the house.

这座房产在第一眼看到时并没有显示出它的巨大规模。直到你沿着房子的东侧走过一条通往主入口的上坡小路,才会发现几个新的体量。你还会发现,从房子的东西轴线上看,有一个18米长的视觉效果令人叹为观止,通过其中一个垂直窗户看厨房区。
The property does not reveal its large size at first glance. Not until you walk along the east side of the house through a small path leading uphill towards the main entrance, will several new volumes be introduced. You will also find a breathtaking visual of an 18-meter stretch from the east to west axis of the house, through one of the vertical windows looking into the kitchen area.
当你进入房子的中央大厅时,一个宏伟的楼梯欢迎你来到房子的最高点,由三个不同的平台组成,连接着主卧室、起居区、厨房和用餐区,在一个连续的空间里宁静地连接着。房子的不同区域由砖块分割,其中包含厨房和壁炉,也是房间的隔断。宽敞的楼梯在很大程度上受到了小村庄主要步行街的启发,作为房子里的一个自然聚集地,吸引着空间里的活动。
As you enter the central hall of the house a grand staircase welcomes you to the highest point of the property, consisting of three different plateaus connecting the master bedroom, the living area, kitchen and dining area that connects serenely in one continuous space. The different areas of the house are divided by volumes of brick that contains the kitchen and fireplace which also serves as room dividers. The spacious staircase is greatly inspired by the main pedestrian street in small villages and serves as a natural gathering place in the house and attracts activity in its space.

房子的最低台阶包含用餐区和一个小的盥洗室。它与厨房区被一堵明显的灰色砖墙隔开,每边都有宽大的台阶,将房间分成三个部分。你会发现在屋顶下有一长段小窗户,允许更多的光线从西边进来,在下午带来淡淡的黄色气氛,同时给早晚带来温暖的氛围。房子的另一个视角是花园的整个外墙,它是由玻璃制成的。有一个宽大的中央窗户,与巨大的定制可丽耐®餐桌的长度完全一致,两侧是面向花园的双门。外面的草在每个窗框的边界处都有精确的尺寸,这在视觉上带来了自然的感觉。朝西是一个高高的细长的窗户,强调了天花板的高度。这个窗户提供了一个清晰的视野,可以看到位于房子中心的露台,一直窥视到露台另一侧的生活区。
The lowest plateau of the house contains the dining area and a small washroom. It is divided from the kitchen area by a noticeably grey brick wall with broad steps on each side, dividing the room into three sections. You will find a long section of small windows just under the rooftop allowing more light to come in from the west part bringing in a faint yellow colored atmosphere in the afternoons whilst giving early evenings a warm ambiance. Another viewpoint of the house is the entire façade of the garden, which is made of glass. There is one wide central window corresponding the exact length of the huge custom made Corian dining table, flanked by double doors facing the garden on each side. The grass from the outside is at precise measure right by the border of each window frame, this brings in the feel of nature visually. Towards west is a high slender window emphasizing height of the ceiling. This window provides a clear view to the terrace located in the center of the house peeking all the way through the living area which is found on the other side of the terrace.

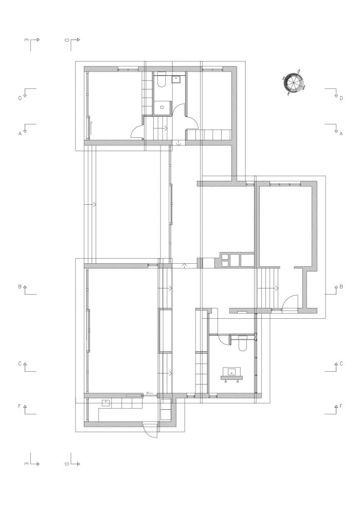
房子的结构围绕着两条轴线;中央楼梯从北到南,顺着倾斜的地形,以及中间高原上的轴线,从厨房到东边的客厅到西边的客厅。
The House is structured around 2 axes; the central staircase going from north to south following the form of the sloping terrain, and the axes on the middle plateau from the kitchen to the east to the living room towards the west.

厨房是开放的 "raumplan "的一部分--但仍然部分地隐藏在两个壁龛中,使房子的居住者能够在准备食物时不至于将杂乱的东西暴露给他们的客人。这种结构也为建造烤箱、通风、冰箱和储藏室留出了空间,作为建筑的一个组成部分。居中的厨房是为了在准备食物和为客人服务时使工作流程变得更容易。
The kitchen is a part of the open “raumplan” – but is still partly hidden in two niches allowing the occupants of the house to be able to work on preparing food without the clutter being exposed to their guests. This structure has also left room to build in an oven, ventilation, fridge and storage as an integrated part of the architecture. The centered kitchen is created to make the workflow a lot easier when preparing food and serving guests.

在房产的西端,房屋的儿童部分与位于东南方向的厨房建筑在战略上是对应的。这在两个区域之间创造了一个自然的露台。儿童区的屋顶顺着房子的中间部分和地形,在与入口处相同的水平上结束,这导致了两个非常不同的儿童房。一个房间位于面向花园的斜坡上,另一个房间位于高处,主要由诗意的北面光线照亮。
On the west end of the property, the children’s section of the house corresponds strategically to the kitchen building located at the southeast. This creates a natural terrace between the two areas. The roof of the children’s section follows the middle part of the house and the terrain and ends at the same level as the entrance which results in two very different children’s rooms One room lies low on the slopping lot facing the garden, the other room situated higher mainly lit by the poetic northern light.


当从厨房区走过中央楼梯时,你可以通过壁炉瞥见生活区,通过楼梯、厨房、用餐区和生活区都可以看到壁炉。起居区就像东西轴线上的一个壁龛,被切割成地形,导致沙发所在的一侧有一个戏剧性的天花板高度,另一侧朝向木质露台的大玻璃板强调了空间的错觉。阳台地板的水平与室内地板相同,这加强了透明感和室内外的联系。在起居室和儿童区之间,还有一个切入地形的小壁龛,里面有一个小的办公空间。
When walking from the kitchen area across the central staircase, you get a glimpse of the living area through the fireplace, which can be seen through the staircase, the kitchen, the dining area, and the living area. The living area is like a niche on the east-west axis, cut into the terrain, resulting in a dramatic ceiling height to one side where the sofa is and with large glass panels to the other side towards the wooden terrace emphasizing the illusion of space. The sense of transparency and the connection between interior and exterior is enhanced by the fact that the level of the terrace floor is the same as the floor of the interior. Between the living area and the children’s sections is yet another small niche cut into the terrain containing a small office space.

主卧室位于入口处对面,有一个垂直节奏的三段式窗户,与所有面向东方和西方的窗户风格一致。卧室的视野是一个小的私人庭院,位于房产的顶角。
The master bedroom is situated just opposite the entrance and has a triple section window in a vertical rhythm matching the style of all the windows facing east and west. The bedroom’s viewis a small private courtyard that is at the top corner of the property.


主浴室也位于中央楼梯的连接处。你通过一个狭窄的小通道进入浴室,里面有内置的储藏室。浴室与房屋其他部分的明亮外观形成鲜明对比,并铺设了黑色瓷片--给人一种像豪华水疗中心一样的亲密感觉。房间被一堵墙隔开,它包含并隐藏了所有的装置,它沿用了房子其他部分的主题,用独立的房间隔板代替了隔离墙。一边是可丽耐的水槽和一个内置的镜子,它的背光模仿剧院的化妆镜,提供一个柔和的光线反射。在隔断墙后面,你可以找到私人安装的淋浴器。
The main bathroom is also situated in connection tothe central staircase. You enter the bathroom through a small narrow passage that comes complete with built-in storage. The bathroom is in sharp contrast with the bright exterior of the rest of the house and covered in black porcelain tiles – giving the room an intimate feeling like that of a luxurious spa. The room is divided by a single wall which contains and hides all the installations, it follows the theme from the rest of the house with free standing room dividers instead of separating walls. On the one side is the sink in Corian and a built-in mirror that is backlit imitatingmake-up mirrors from theaters, providing a soft light reflection. Behind the dividing wall you find the privately installed showers.

材料和自然光
这个房子的主要目标之一是提供一种宁静和平静的感觉。为了实现这一目标,尽量减少使用不同的对比性材料。为了适应建筑物周围的元素,并忠实于其自然形式,使用了大量的当地材料。外部由黄色瓷砖、黄砖和黑色油漆木头组成。室内由原始的灰色墙壁、拉丝的天然橡木地板和白色天花板组成。整个房子一致使用相同的材料,使这个迷宫式的结构具有凝聚力,感觉是一个大的连续空间。正是对当地材料的选择提供了与你在古老的村庄中发现的相同的和谐,在那里所有的东西都是由村庄周围可以获得的东西建造的。天然材料的使用,有一些不完善的地方,给了房子一种真实的美感--就像一个古老而又珍惜的结构,随着它的衰落而变得更加美丽。从这个意义上说,在选择材料时,我们受到了日本的 "侘寂 "思想的很大启发。
MATERIALS AND NATURAL LIGHT
One of the main goals for this house is to provide a feeling of serenity and calm. To achieve this goal, the use of different contrasting materials was minimized. And to suit the elements of the buildings surroundings and staying true to its natural form, a lot of local materials were used. The exterior consists of yellow tiles, yellow brick and black painted wood. The interior is made up of raw grey walls, brushed natural oak floors and white ceilings. The consistent use of same materials throughout the house is what gives this labyrinthine structure a cohesive look and feel as being one big continuous space. It is the choice of local materials that provides the same harmony as you find in old villages where everything is constructed from what was accessible around the village. The use of natural materials, that had some imperfection gave the house an authentic aesthetic – like that of an aged and well treasured structure, which only becomes more beautiful as it decays. It that sense we were very much inspired by the Japanese thoughts on wabi-sabi when choosing materials.


在设计房子的时候,另一个重要的问题是要考虑自然光在一天中的不同时段如何进入房子,并使其成为塑造建筑的一个组成部分。因此,我们没有仅仅使用常规的窗户格式,而是玩了很多不同的格式,以获得光线进入房子时的特定效果--让每个房间都有自己的特点和特定的感觉。
Another important issue when designing the house was to play with how the natural light would come into the house at different times of the day, and making it an integral part of shaping the architecture. So instead of just using regular formats for windows we played a lot with different formatsto obtain certain effects when the light enters the house – giving each room its own character and certain feel.




































Architects: NORM Architects
Area : 240 m²
Year : 2010
Photographs :Jonas Bjerre-Poulsen
City:COPENHAGEN
Country:Denmark