该项目位于法国驻加纳大使官邸内。该项目之所以引人注目,是因为该建筑的建筑价值,50年代罕见的殖民建筑,以及3公顷公园的景观质量。新使馆的建筑语言从该地的这两个主要组成部分中找到了灵感。
The project is located within the French Ambassador Residence in Ghana. This site is remarkable due to the architecture value of the Building, rare colonial architecture from the 50’s, and the quality of the 3ha Park’s landscape. The architectural language of the new Embassy finds its inspiration in the respect of these two major components of the site.





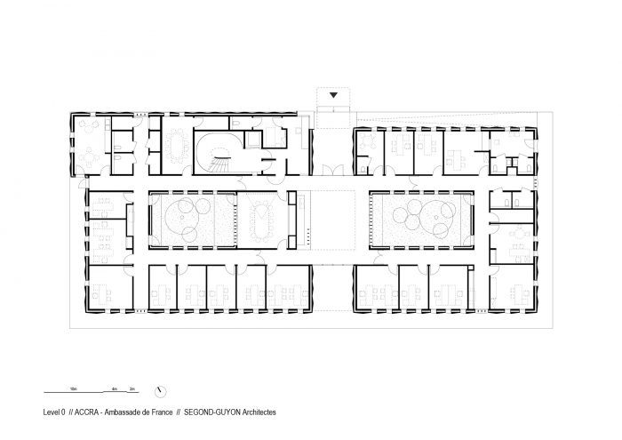
新使馆的设计是一个沉稳而紧凑的建筑。由2个天井穿透的体量,合理地堆叠在一起,提供了一个独特而连贯的实体。现有建筑和新建筑之间的关系通过使用类似的建筑特征,如悬臂和梯田得到加强。这些悬臂形成了沿建筑的人行道,避免了阳光的照射。外立面的节奏反映了内部功能组织和办公室的隔断。由于外立面模块的合理化,内部空间的高度模块化成为可能。
The new Embassy is designed as a sober and compact architecture. The volumes, pierced by 2 patios, are rationally stacked to offer a unique and coherent entity. The relationship between the existing and the new building is reinforced by the use of similar architectural features such as cantilevers and terraces. Theses cantilevers creates pedestrian alleys along the building protected from the sun. The rhythm of the façade reflects the inner functional organization and the partitions of the offices. A great modularity of the inner space is making possible thank to the rationalization of the façade module.

平滑、光亮、巧妙的折叠式外立面反映了环境,并对自然光做出反应,使外立面的颜色随着时间的推移而变化。外墙保温层由预制混凝土板覆盖,窗户的细木工板由当地的iroko木材制成。内部地板全部采用水磨石。接待处的双高空间通过水磨石地板的几何图案来强调。
The smooth, shiny and ingeniously folded facade reflects its environment and reacts to the natural light, changing the facade colors along the day. The external insulation is covered by prefabricated concrete panels and the windows joinery is made of local iroko wood. The inside floor is all made of terrazzo. The double-height space of the reception is emphasized by the geometrical pattern of the terrazzo floor.














建筑师:Segond-Guyon Architectes
面积: 1775 m²
年份:2018年
摄影作品:Erick Saillet工作室
本地建筑师:DGB
客户:法国外交部
工程:MTC
城市:阿克拉
国家:加纳
Architects: Segond-Guyon Architectes
Area: 1775 m²
Year: 2018
Photographs: Studio Erick Saillet
Local Architect:DGB
Clients:French Ministry of foreign Affairs
Engineering:MTC
City:Accra
Country:Ghana