这个小项目位于亚松森的一个低密度和相对宁静的住宅区,业主委托我们对一栋几乎具有乡土特色且条件相当糟糕的老房子进行改造,以达到盈利的目的。因此,我们的工作重点是开发一个谨慎的项目,找到一种方法来回收房子,使其在空间上有一定的灵活性,同时又能满足一个有点紧张的预算。最初的情况是,我们看到的是一个没有功能的零散类型的堵塞和附属空间,缺乏通风和自然采光,墙壁没有地基,有明显的湿度,相当大的结构裂缝和其他传闻中的意外,如在一个房间里有一个粪坑。
This small project is located in a residential neighbourhood in Asunción of low density and relative tranquillity, where the owner commissioned us to renovate an old house of almost vernacular characteristics and in quite deteriorated conditions, for profitable purposes. Therefore, our efforts were focused on developing a discreet project that would find a way to recycle the house, allowing it some flexibility in the spaces while fitting into a somewhat tight budget. The initial situation presented us with an unfunctional fragmented typology of clogged and annexed spaces, a lack of ventilation and natural lighting, walls without foundations and with noticeable humidity, considerable structural fissures and other anecdotal surprises, such as the presence of a cesspit in one of the rooms.





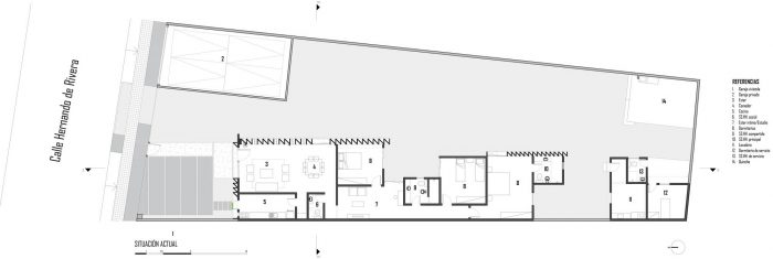
所有这些因素要求我们在施工过程中重新考虑最初项目的很大一部分,这是惯例...... 我们最初计划尽量减少拆除,使新项目适应已经存在的情况,纳入一个大客厅--餐厅,多一个卧室和一个更明确的服务区。但是,在工作开展的同时,这个不稳定的房子隐藏的病症和缺点变得越来越多,以至于我们被迫拆除了70%以上的建筑,在某些情况下只重新使用地基。所有这一切导致了一大堆各种材料的瓦砾,这些瓦砾与被认为是垃圾的情况完全相反,成为了变革的主角。
All these factors required us to rethink a large part of the initial project during the construction process itself, as is customary ... We initially planned to minimize demolitions, adapting the new project to what already existed, incorporating a large living room - dining room, one more bedroom and a more defined service area. But while the work was being carried out, the hidden pathologies and vices of this precarious house became increasingly present, to a point where we were forced to demolish more than 70% of the construction, reusing in some cases only the foundations. All this resulted in a large pile of rubble of various materials that, quite the opposite of being considered garbage, became the protagonists of the change.

减少、再利用、再循环(甚至还有一些被纳入当代世界剧目的R)宣布了这个座右铭,引导我们使用我们的专家在我们杰出的巴拉圭建筑的典范作品中一直使用的技术。从瓦砾中重建已经成为一种选择,使我们能够通过补偿的循环经济(花费更多的劳动力,但避免购买原材料),探索新的和有趣的方法,以产生舒适、有吸引力的空间,同样具有功能性,具有新的纹理和配置,这是由材料本身的条件赋予的。
Reduce, reuse, recycle (along with even some more R's that have been incorporated into the repertoire of the contemporary world) declare the motto that led us to use the techniques that our experts have been using in paradigmatic works of our prominent Paraguayan architecture. Rebuilding from rubble has become the alternative that allows us to explore, through a circular economy of compensation (spending more on labour, but avoiding the buying of raw materials), new and interesting ways to generate comfortable, attractive spaces that are equally functional, with new textures and configurations that are given by the condition of the material itself.



Fuelle Roga房子,在形式上暗指手风琴一样的人工制品,它的作用是为家里的火提供氧气和燃料。一把火从不同成分的陶瓷瓦砾的折痕中转化为新的空间,在连续的元素和中断的元素中,在房子和它的庭院之间产生互动,沿着它的整个外墙,同时允许有趣的光和影的游戏,以及所需的自然通风。这种简单而复杂的体验同时也重申了我们作为当前消费社会变革的推动者所必须做出的负责任的承诺,创造性地优化资源,在我们的行动中避免能源的浪费和不必要的成本。
The Fuelle Roga House, formally alludes to the accordion-like artefact that serves to oxygenate and stoke the home fire. A fire translated into new spaces from a crease of ceramic rubble of different compositions, in continuous elements and in interrupted elements, to generate interactions between the house and its courtyard along its entire facade, while allowing an interesting play of light and shadow, as well as the desired natural ventilation. This simple but complex experience at the same time reaffirms the responsible commitment that we must have as agents of change in our current consumer society, optimizing resources creatively and avoiding energy wastes and unnecessary cost in the context of our actions.













Arquitectos: OMCM arquitectos
Area: 205 m²
Year: 2019
Photographs: Leonardo Méndez
Manufacturers: AutoDesk, Chaos Group, Sika, ACT 3D, Adobe, Argo, Blindex, Cambre, Deca, Eliane, FV, Impaco, Klaukol, Listalosa, Papaiz y Kallay, Suvinil, Trimble, Vallemi
Lead Architect: Matías Ortiz, Ma. Paz Chamorro
Design Team:Sofía Rojas, Marcelo Ramírez, Sol Cáceres
City:Asunción
Country:Paraguay