我们买下了这套有33年历史的公寓,从三个方向都能看到京东运河的景色,并将四室一厅的单位装修成了一个工作和居住一体化的单元。计划是将生活区和工作区重叠,而不是分开,因此出现的九个配件,被当作 "fusuma(滑动门)"的画布。这座有33年历史的公寓在南面、西面和北面勘察运河。以前的四居室单位被改造成了一个集工作和居住为一体的单间单位。
We've purchased the 33-year-old condominium with views of the Koto Canal in three directions and renovated the four-bedroom unit into a one-room unit that integrates work and residence. The plan was to overlap the living and working areas rather than separating, and the nine fittings that appeared, as a result, were treated like a canvas for a "fusuma (sliding door)" painting. This 33-year-old condominium surveys the canal on the south, west, and north sides. The former four-bedroom unit was renovated into a one-room unit that integrates work and residence.



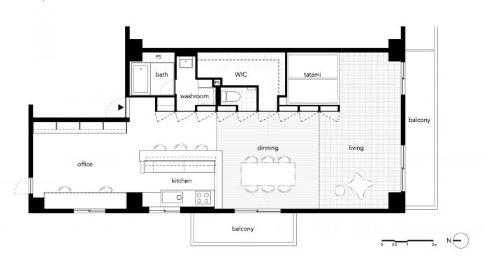
考虑到该空间作为家庭和办公室的用途,显然将80平方米的有限面积分成两半会限制住户/工作者的活动范围。由于寻找一个能使 "生活 "和 "工作 "之间的重叠最大化的方案,就成了从办公空间到卧室松散连接的单间。由于房间的大部分作为办公室,我们不想主动展示那些会给人以日常生活印象的元素(浴室、厕所、步入式衣橱、小说和漫画等)。由于把它们放在没有窗户的墙的一侧,出现了一系列横穿房间的九个配件。这九个配件是一组分隔公共和私人空间的实用门,但也看起来像一个比例为4:1的水平屏幕,横穿整个房间。我们应该如何处理这个屏幕?
Considering the use of the space as a home and office, clearly dividing the limited area of 80 square meters into two halves would limit the range of activities of the residents/workers. As a result of the search for a plan that maximizes the overlap between "living" and "working," it became the single room that is loosely connected from the office space to the bedroom. Since the majority of the room acts as an office, we did not want to actively show elements that would give the impression of daily life (bathroom, toilet, walk-in closet, novels and comics, etc.). As a result of placing them on the side of the wall without a window, a series of nine fittings that traverse the room appeared. Those nine fittings are a set of practical doors separating public and private spaces, but also look like a horizontal screen with a ratio of 4:1 that traverses the room as a whole. How should we handle this screen?


当人们面对长谷川东学的《松树》屏风时,感觉自己就像站在画里的雾气空间里。屏障画,如fusuma-e(滑动门画)和byobu-e(折叠屏风画),可以创造出与xyz轴不同的 "非相位深度",这取决于它们的大小以及所描绘的场景与观众的想象力之间的互动。我们认为,日本的障画文化随着其发展有一个获得增强现实深度感的方面,人们的想象力在空间中来回移动。在这里,上述的九个连续的配件被当作扶桑画的画布。我们想在城市里的公寓房间的混凝土盒子里创造一个新的深度。
When one confronts Hasegawa Tohaku's Pine Trees screen, it feels like one is standing in the foggy space inside the painting. Barrier paintings such as fusuma-e (sliding door paintings) and byobu-e (folding screen paintings) can create a "depth out of phase" that differs from the xyz axis, depending on their size and the interaction between the scene depicted and the viewer's imagination. We believe that Japanese barrier painting culture has an aspect of acquiring an augmented reality sense of depth with its development, in which people's imaginations move back and forth through space. Here, the aforementioned nine consecutive fittings were treated as a canvas for the fusuma paintings. We wanted to create a new depth within the concrete box of a condominium room in the city.



我们决定使用鲸鱼作为绘画的主题,因为我们对远离人类生活空间的规模及其与运河的结合很感兴趣,并请艺术家池田崎设计扶桑。原图宽约40厘米,用绘图笔精心绘制,被放大后用特殊的大型打印机直接打印在月桂树胶合板上。在新木场的一个仓库里挑选的月桂木纹理和颜色都很粗糙,通常不被欣赏用于正常领域,然而在这里,木材的粗糙纹理被用来表达波浪。
We decided to use a whale as a motif of the painting, because of our interests in a scale far removed from human living space and its combination with the canal, and asked the artist, Saki Ikeda, to design the fusuma. The original drawing, about 40 cm wide and meticulously drawn with a drawing pen, was enlarged and printed directly on lauan plywood using a special large-scale printer. The lauan selected at a warehouse in Shin-Kiba was rough in grain and color, which is not usually appreciated for use in the normal field, however, here the rough grain of the wood was used to express the waves.


窗外的运河和扶桑画中的鲸鱼之间的关系,就像禅宗小寺院中的花园和扶桑画之间的关系一样,观者(=居民/工人)在这些空间之间反复来回,在现实和想象的深处漂移。扶桑的画布(配件中的推拉门部分)被制作成可由居民更换的,其方式与原始扶桑相同。例如,四云轩(京都的一座老建筑)的推拉门在夏天可以通过更换成诺伦道(由竹帘制成的推拉门)来完全改变空间的气氛。通过更换帆布部分,可以体验到不同深度的空间。
The relationship between the canal outside the window and the whale in the fusuma painting are just like the one between the garden and the fusuma paintings in the sub-temple of Zen, where the viewer (= resident/worker) repeatedly comes and goes between the spaces, drifting through the depths of reality and imagination. The canvas of the fusuma (the sliding door part of the fittings) was made to be replaceable by the resident, in the same manner as the original fusuma. For example, a sliding door of Shikunshien (an old building in Kyoto) can transform the atmosphere of a space completely by being replaced with a noren-do (a sliding door made of bamboo blinds) in the summer. By replacing the canvas part, it is possible to experience a different depth of space.





Architects: knof
Area : 77 m²
Year : 2017
Photographs :Haruki Kodama
Manufacturers : Vectorworks
Construction : M-CUBE
City:KOTO CITY
Country:Japan