La Reference学校回应了为海地日益增长的儿童人口提供持续教育的紧迫挑战。La Référence "位于Ganthier--从太子港到多米尼加共和国边境有一个小时的车程--由一群年轻的海地教授于2012年创立,他们的愿望是成为海地其他学校的典范和原型,这启发了学校的名字,他们学生的学习成绩也是一个例证。
La Reference School responds to the pressing challenge of providing consistent education to the growing children population in Haiti. Located in Ganthier – a one hour drive from Port-au-Prince towards the border with the Dominican Republic - “La Référence” was founded in 2012 by a group of young Haitian professors whose aspirations of becoming the model & archetype for other schools in Haiti inspired the name and is exemplified by their students' academic results.




经过多年的卓越表现和发展,La Reference向位于普林斯顿的Konekte基金会寻求帮助,以购买土地并继续其对优质教育的长期愿景。 作为无偿服务的一部分,PHH建筑事务所参与了该项目,以提供指导并确保严格的安全标准--在与教授们会面讨论他们的目标后,这一角色发展为场地规划、建筑设计和工程。
After years of proven excellence and growth, La Reference turned to the Princeton-based foundation Konekte for help to purchase land and to continue its long-term vision for quality education. As part of a pro-bono effort, Studio PHH Architects got involved in the project to provide guidance and ensure rigorous safety standards - after meeting with the professors to discuss their goals, that role grew into site planning, architectural design, and engineering.

在整个过程中,PHH建筑事务所与我们的结构工程师Eckersley O'Callaghan密切协调,他们贡献了自己的时间,以确保学校的安全和耐用性,学校的设计是针对飓风和地震活动。
Throughout the process, Studio PHH Architects closely coordinated with our structural engineers, Eckersley O'Callaghan who donated their time to ensure the safety and durability of the school which is engineered for hurricane-force winds and seismic activity.



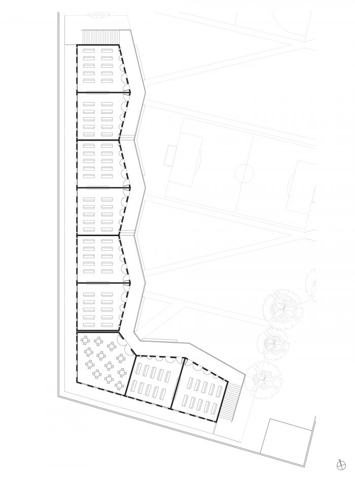
拟议的场地策略包括一个庭院方案,由一个L形的教室建筑和一个行政楼组成,与现有的树木对接,以提供充满光线、自然通风的教室,围绕着一个大型开放的中央空间供孩子们游戏。这种配置是对管理需求的直接回应:能够为孩子们提供一个安全、健康的空间,促进社区的发展。
The proposed site strategy consists of a courtyard scheme made up of an L-shaped classroom building and an administrative building that dovetail with the existing trees in order to provide light-filled, naturally-ventilated classrooms surrounding a large open central space for the kids to play. This configuration was a direct response to the needs of the administration: to be able to provide a safe, healthy space for the children that fosters community.


该建筑是通过仔细研究并结合唯一负担得起的材料--CMU砌块、混凝土和波纹钢屋顶--以增加空气流动,提供自然光和安全,并控制教室之间的声音传播而出现的。 外墙的加固墩和开口的节奏是学校特征的重要组成部分,它是基于俏皮地移动CMU块的墩子,这些墩子将承重、向上提升和剪切载荷转移到地基上。
The building emerged from carefully studying and combining the only affordable materials - CMU block, concrete, and corrugated steel roofing - in order to increase airflow, provide natural light and security, and control sound transmission between classrooms. The facade's rhythm of reinforced piers and openings, which is a big part of the school's identity, is based on playfully shifting the CMU block piers which transfer the bearing, up-lift, and shear loads down to the foundations.

学校的建设是作为一系列的重复模块来开发的,并在战略上分阶段进行。 这使我们能够有效地管理有限的资金,同时在第一阶段的施工中解决任何问题。 尽管在第一阶段由于缺乏可用的材料尺寸,一些分包商无法阅读施工图纸,以及语言障碍(承包商在现场讲英语、法语和克里奥尔语)而出现了一些问题,但每一个问题都经过讨论,在现场得到了纠正,而且第二阶段的图纸也由设计团队进行了调整,以确保沟通清晰。 第二阶段的规模是第一阶段的两倍,建造时没有出现任何问题,证明这种分阶段、模块化的方法提供了有价值的见解。
The school construction was developed as a series of repeating modules and was strategically phased. This allowed us to manage the limited funds efficiently, while simultaneously troubleshooting any issues during the first phase of construction. Although several issues occurred during phase 1 due to a lack of available material sizes, the inability of some sub-contractors to read construction drawings, and language barriers (with contractors speaking English, French, and Creole on-site, each problem was discussed, rectified in the field and the phase 2 drawings were adjusted by the design team to ensure clear communication. The second phase, which is twice as large as phase 1 was built without any problems proving that this phased, modular approach provided valuable insights.














Architects: Studio PHH Architects
Area: 1748 m²
Year: 2020
Photographs: Nadia Todres
Manufacturers: AutoDesk, Lithonia Lighting, Rhinoceros 3D
Structural Engineering: Eckersley O'Callaghan
Architect:Pierre-Henri Hoppenot
City:Ganthier
Country:Haiti