当我第一次进入这间位于蒙特维利山坡上的公寓时,在从特拉斯泰维利车站通往潘菲利别墅的路上,我想。"这所房子必须被释放"!一系列的房间,都是同样大小的房间,彼此之间没有任何等级或功能关系。
The first time I entered this apartment on the slopes of Monteverde, on the road that leads from Trastevere Station to Villa Pamphili, I thought: "This house must be freed"!A series of rooms, all of the same size, followed one another without any hierarchical or functional relationship.




一片森林般的隔断禁锢了空间,将其与大露台隔开,在露台上,像一个大教堂的骨架一样,突出了工业考古学的标志--Gazometro。因此,改造包括消除与外部的隔离元素:除了入口处的卧室外,现在所有的房间都是开放的,可以看到外面。
A forest of partitions imprisoned the space separating it from the large terrace from which stood out, like the skeleton of a cathedral among the houses, that icon of industrial archeology that is the Gazometro. The renovation, therefore, consisted in removing the elements of separation from the outside: with the exception of the bedroom in front of the entrance now all rooms are open and look out.

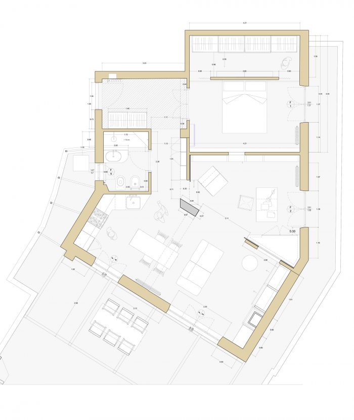
厨房利用了一个手工制作的钝角,而走廊、书房和起居室,由于采用了滑动板系统,获得了移动边界所带来的不可定义的关系,控制了空间的渗透性,为需求、光线和情绪服务。
The kitchen exploits a handcrafted obtuse corner, while the hallway, study, and living room, thanks to a system of sliding panels, gain that indefinable relationship given by the mobile boundaries, control of spatial permeability in the service of needs, light, mood.

风格的方法,通过与客户的长期通话,在锁定期间逐渐成熟,其特点是在保守的层面上尊重50年代以前的存在(门,栏杆),并重新解释干预,与其说是设计,不如说是气氛:卧室的壁纸,厨房的粉色,壁炉和滑动板,让人想起战后第二个时期的活力和乐观的典型。
The stylistic approach, which matured with the client through long calls during the Lockdown, is characterized by the respect for the pre-existence of the '50s both at the conservative level (doors, railings) and with reinterpretation interventions, not so much as design as atmosphere: the wallpaper in the bedroom, the pastel colors of the kitchen, the fireplace and the sliding panels recall the vitality and optimism typical of the second post-war period.

在这个基础上,轻松地添加了设计师的家具和工业嫁接(煤气罐总是在那里,在视线范围内),如混凝土支柱,铁梁下的架子,或部分电气系统的视线。其结果是一个有活力的、充满视角的房子,每次都能让人发现。
To this base are added with ease designer furniture and industrial grafts (the gasometer is always there, in sight) as the concrete pillar, the shelf under the iron beam, or part of the electrical system in sight. The result is a house alive and full of perspectives, which invites every time to be discovered










Architects: 02A | studio
Area : 90 m²
Year : 2021
Photographs :aolo Fusco
Manufacturers : Nemo Lighting, Fornace Brioni, Kriptonite
Lead Architects : Marco Rulli
Construction Company : Beta srl
Designer : Alessandro Fuoti
City : Rome
Country : Italy