沟通的方式,孩子、孩子和父母之间的直接互动,这种互动往往是相通的,帮助大家庭建立一个坚实的情感生态系统是我们设计这个项目的灵感所在。Gather House项目是位于越南同奈县Trang Bom镇的一所房子。完整的居民包括父母和3个孩子。这个家庭是天主教徒,房子靠近一个天主教教堂。前面的底层是一个停车场,屋顶由薄板制成,既能通风,又不会阻挡室内空间的视野。内部包括客厅、厨房、餐厅、父母的卧室和办公室。
The way of communication, direct interaction between children, children, and parents, the interaction is often connected, helping to build a solid emotional ecosystem for the extended family is the inspiration for us. design this project. The Gather House project is a house in Trang Bom town, Dong Nai district, Vietnam. Full residents include parents and 3 children. The family is Catholic and the house is close to a catholic church. The ground floor in front is a car park with a roof made of lamellar to have ventilation and not to block the view of the interior spaces. Inside includes living room, kitchen, dining room, parents' bedroom, and office.




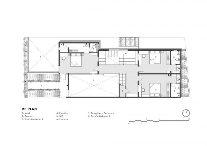
上到二楼是孩子们的空间,包括3间卧室,这些卧室面向大厅和公共走廊,是孩子们可以定期互动和联系的区域。楼梯落地的空间设计得很大,可以作为阅读区,宽阔的走廊还结合了一个酒吧,可以一起放松。从2楼和3楼的大厅、走廊和楼梯,可以观察并连接厨房和客厅区域,这要归功于中庭。这样,孩子们可以看到母亲做饭,感受食物的味道。前面的3楼区域是一个家庭祈祷静修区,通过窗户可以俯瞰教堂,还有一个供树木和放松的露台。
Up to the 2nd floor is the space for the children, including 3 bedrooms, these bedrooms face the lobby and common corridor, an area where the children can interact and connect regularly. The stair landing space is designed to be large to combine as a reading area, the wide corridor also incorporates a bar to relax together. From the lobby, corridor, and stairs of the 2nd and 3rd floors, you can observe and connect the kitchen and living room areas thanks to the atrium. so that the children can watch the mother cook, and feel the taste of the food. The front 3rd-floor area is a family prayer retreat area with a window overlooking the church and a terrace for trees and relaxation.




后面是计划开发的空间,作为家庭纪念品的画廊,以及晾晒的空间。房子中间的屋顶空间是由混凝土板条与玻璃屋顶结合而成,以帮助引入自然光,并以天主教家庭的精神 当上帝创造这个世界时,创造了光。因此,自然光是非常重要的,在不同的位置切割许多门洞,结合房子中间的玻璃屋顶,在墙上形成许多交替的光线,使空间变得有趣。屋顶的窗户和立面采用了金字塔形的设计,以配合附近教堂的形状,在外观上形成了一个和谐的整体,而内部的设计则是简单明了的。利用自然光作为亮点,每小时都会改变光线,这样我们就不会感到无聊了
Behind is the space planned to be developed as a gallery for family memorabilia, and a space for drying. The roof space in the middle of the house is made of concrete slats combined with a glass roof to help bring in natural light, and with the spirit of a Catholic family When God created this world, created light. Therefore, natural light is very important, the cutting of many doorways in different positions combined with the glass roof in the middle of the house creates many alternating light rays on the wall to make the space interesting. The roof windows and façade have a pyramidal design to match the shape of the nearby church, creating a harmonious whole on the exterior, while the interior is designed to be simple and straightforward. Using natural light as the highlight, the light will change every hour so we don't get bored

















Architects: Story Architecture
Area : 260 m²
Year : 2022
Photographs :Lonton Studio
Country : Vietnam