吉隆艺术中心耗资3850万澳元的重建工程已向公众开放,新的瑞丽街入口设置在一个引人注目的现代外墙中,为来自吉隆市、该地区和其他地区的游客提供了令人兴奋的新体验。作为墨尔本以外的维多利亚州唯一的国有艺术中心,这个目的地也将满足不断增长的创意和文化社区的需求。
Geelong Arts Centre’s $38.5 million redevelopment has opened to the public with a new Ryrie Street entrance set in a striking modern façade providing an exciting new experience for visitors from across the city of Geelong, the region and beyond. As the only state-owned arts centre in Victoria outside of Melbourne, this destination will also serve the needs of a growing creative and cultural community.



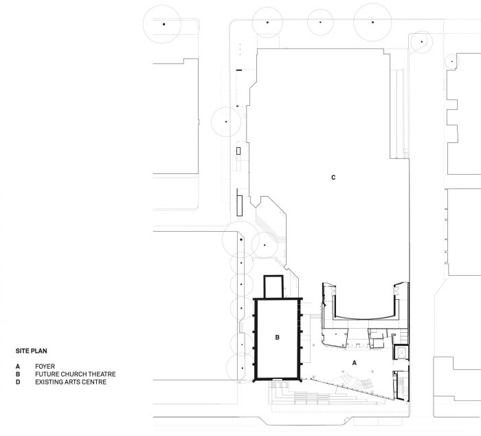
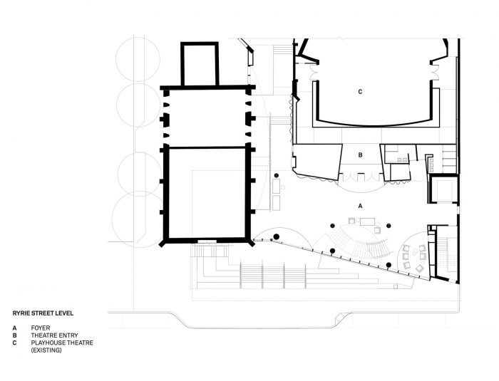
该设计将新与旧完美地融合在一起,引入了一个现代的、半透明的形式,极大地揭示了一个曾经被隐藏的遗产教堂。这种形式位于一个新的门厅和前院之上,突出到瑞丽街,以建立一个强大的公民存在和与周围地区更流畅的连接。同样重要的是,它提供了通往剧院和工作室的通用通道--使吉隆艺术中心成为人人都能享受的文化中心。
The design seamlessly blends the old and the new, introducing a modern, translucent form that dramatically reveals a once-hidden heritage church. This form sits above a new foyer and forecourt, projecting out into Ryrie Street to establish a strong civic presence and more fluid connection to the surrounding area. Just as importantly, it provides universal access to the Playhouse Theatre and studios – making Geelong Arts Centre a cultural hub that can be enjoyed by everyone.

HASSELL负责人Mark Loughnan说,重建项目不仅使吉隆艺术中心现代化,而且还为该市提供了一个新的建筑身份--"吉隆艺术中心不仅将成为一个重新焕发活力的目的地,还将有助于满足日益增长的创意和文化社区的需求。马克说:"该设计整合并揭示了教堂,旨在被视为吉隆市表演艺术的一个积极、自信和参与的新身份。
HASSELL Principal Mark Loughnan says the redevelopment project not only modernises Geelong Arts Centre, but also provides a new architectural identity for the city - “Geelong Arts Centre will not only be a reinvigorated destination, it will also help service the needs of the growing creative and cultural community. Integrating and revealing the church, the design aims to be experienced as a positive, confident and engaging new identity for the performing arts in Geelong,” Mark said.

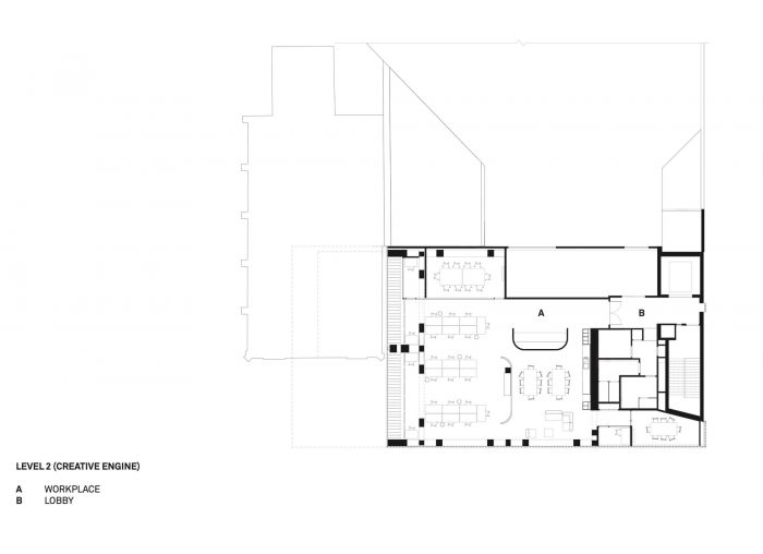
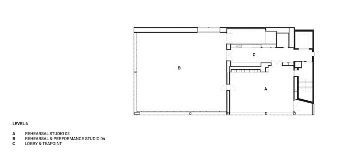
在建筑内部,设计开辟了广泛的公共和创意空间,包括两层新的门厅、酒吧区、最先进的排练室和供艺术组织合作的联合办公空间。新的底层和阳台门厅由一个宏伟的、弯曲的楼梯连接,为戏院剧院服务,同时也为吉隆当地社区提供了一个独特的公共空间。
Inside the building, the design carves out a wide range of communal and creative spaces, including two new levels of foyer, a bar area, state-of-the-art rehearsal studios and co-working spaces for arts organisations to work collaboratively. Connected by a grand, curving staircase, the new ground floor and balcony foyer service The Playhouse theatre, as well as offering a unique public space for the local Geelong community.

"在吉隆长大,现在看到吉隆艺术中心的Ryrie街大楼开花结果,让我感到无比的自豪。你很少有机会参与国际项目并利用这些经验来完成这样的项目,"马克说。
“Growing up in Geelong and now seeing Geelong Arts Centre’s Ryrie Street building come to fruition has given me an immense amount of pride. It’s not often that you get to work on international projects and use that experience to deliver a project such as this,” Mark said.

创意产业部长Martin Foley议员说,重建项目为吉隆艺术中心带来了一个新的时代。- 吉隆艺术中心长期以来一直是吉隆创意社区的核心--它是在热情的当地人为庆祝当地人才和为该地区带来最好的创造力而进行游说和募捐后建立的。38年后,社区在不断发展,吉隆艺术中心也在不断成长。我们很自豪能够支持这个最新的篇章以及该地区作为一个创意中心的发展,"Foley部长说。在维多利亚州政府的支持下,吉隆艺术中心Ryrie街重建项目得以完成。
Martin Foley MP, Minister for Creative Industries, says the redevelopment ushers in a new era for the Geelong Arts Centre. - “Geelong Arts Centre has long been at the heart of Geelong’s creative community - it was built after passionate locals lobbied and fundraised for a centre to celebrate local talent and bring the best in creativity to the region. Thirty-eight years later, the community has grown and so has Geelong Arts Centre. We’re proud to have supported this latest chapter and the growth of the region as a creative hub,” Minister Foley said. The Geelong Arts Centre Ryrie Street Redevelopment was made possible by support from the Victorian Government.












Interior Designers: HASSELL
Year : 2019
Photographs :Rory Gardiner
Manufacturers : SAS International, Lambert Linit
Engineering : Arup
Design Team : Mark Loughnan, Ben Duckworth, Harley Vincent, Scott Walker, Adriano Denni, Matthew Irvine, Steven Chiu, Kevin Cullis, Ed Mitchell, Lance White, Bobby Wong, Yoshia Kashima, Ryan Jayamaha, Prue Pascoe, Clare Chippendale, Simon Rich, Noushin Atrvash, Ecknaath Bala, Jerome Delaunay, Lauren Geschke, Andrea Giuradei, Jacqui Low, Leah Hudson-Smith, Marine Rouanet, Anthony Thevenon, Mia Willemsen
Clients : Development Victoria, Creative Victoria
Collaborators : AECOM
City : Geelong
Country : Australia