时间的几何
从本质上讲,重塑是用一种物质属性覆盖另一种物质属性。换句话说,它是用新的情感来重新解释现有物质财产的情感意义的工作。
The Geometry of Time
In essence, remodeling is covering one material property with another material property. In other words, it is the work of reinterpreting the sentimental meaning of existing material property with new sentimentality.


空间被人占据,但由空间和时间带来的记忆痕迹却留在了物理空间,而不是地方。这就是建筑同时成为恐惧和昏暗的主题的原因。空间在过去的脚步中吐出过去的记忆,被生活在现在的人重新解释。如果物质属性中存在着几何学,它可能是什么,又应该是什么?
Space is occupied by someone, but the trace of memories by the space and time remains in the physical space, not the place. This is the reason why architecture is the subject of fear and dimness at the same time. Space spits out the past memories in the footsteps of the past that are reinterpreted by someone who lives in the present. If there is geometry in material properties, what could it be and what should it be?

新的感伤空间 时间的几何学
客户在注册地块的第二天就打电话给我们,要求提供设计方案。在安排预约之前,我没有哪怕一秒钟的犹豫,就像我认识业主一样。是因为这样的自信吗?
New Sentimental Space The Geometry of Time
The client called us the day after registering the lot to request a design plan. I did not hesitate even for a second before setting up an appointment as if I had known the owner. Was it because of such confidence?

客户是一位电视广告制作人,他对建筑有很强的原则,对实现这些原则的细节也有明确的要求。我想,建筑师创造建筑,但客户创造建筑师。他要求将现有的独栋别墅改造成办公空间,用现代材料覆盖的新型精致的情调。要用现代的情感来改造几十年前的砖房,需要什么样的形式和材料?
The client, who is a TV commercial producer, had strong principles about architecture and clear requirements for the details to realize them. I thought that architects create architecture, but clients create the architects. He demanded remodeling the existing single-family house into office spaces with a new type of sophisticated sentimentality covered with modern materials. What kind of forms and materials are needed to renovate with modern sentiments a brick house that is decades old?


吉瓦的几何形状和情感标识 吉瓦(韩国屋面瓦)是秩序。
The Geometry of Giwa and the Sentimental Identifier Giwa (Korean roofing tiles) is order.

Giwa屋顶是一种类型的几何秩序的系统。它是一个优化的单元组合,可以承受雨雪,也是一个经济的系统,可以建立屋檐的形状。这些瓦片相互搭配,创造出纹理和触觉上的复杂性。然而,精致的吉瓦瓦片有时被置于模糊的边界线上。吉瓦的弧形数字簇拥着形成波浪形,而屋檐的三角形几何形状则构建了过去的秩序。你会如何理解其纹理和几何形状的重复所创造的规则,并对单元的几何集群进行现代的重新诠释?它们来自于感性识别的几何组合。
Giwa roofing is a system of a type of geometric orders. It is a combination of units optimized to endure rain and snow and an economical system to build the gable shape. These tiles pair up with one another to create texture and tactual sophistication. However, the sophisticated Giwa tiles are sometimes placed on the ambiguous borderline. The curved figures of Giwa cluster to form the wavy shapes and the triangular geometry of gable constructs the order of the past. How would you comprehend the rules created by the repetition of its texture and geometry and modernly reinterpret the geometric cluster of the units? They come from the geometric combination by sentimental identification.

现有的红色吉瓦和砖头的几何形状与黑色不锈钢的灰色四面体在质地和材料的情感方面形成了鲜明的对比。几何学的不同原则共享异质性和同质性,同时形成一个接触点。这是两个并存的事物之间的张力,没有一个是优越的,也是时间和空间的感性所创造的平衡点。
The existing geometry of red Giwa and bricks contrasts with the gray tetrahedrons of black stainless steel in terms of texture and material sentimentality. The different principles of geometry share heterogeneity and homogeneity and form a contact point at the same time. It is the tension between two co-existing things with no one being superior, and the balance point created by the sentimentality of time and space.


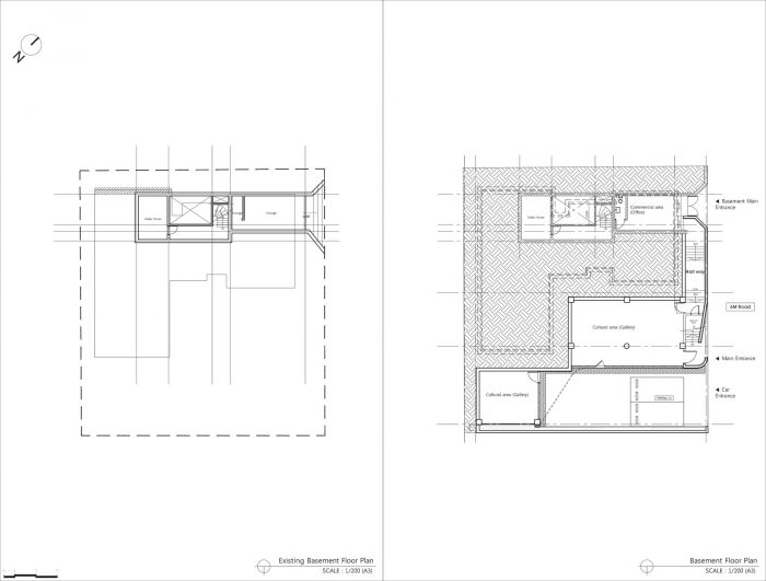
空间的重构和地下室的扩展
改造中最重要也是最困难的部分是审查测量结果,考虑扩大空间的商业性。这意味着改造的范围和预算,并决定建筑的未来商业价值。考虑到有限的预算和未来的可扩展性,我选择了可以扩展的地下室空间,不考虑容积率,作为这个项目的主要场地。换句话说,考虑到未来可扩展性的最大虚拟测量,我在地下室确保了所需的停车空间。
Space Reconstruction and Expansion of Basement
The most important and the most difficult part of remodeling is reviewing the measurements considering the commerciality of expanded space. It means the scope and budget of remodeling and decides the future commercial value of architecture. Considering the limited budget and the future expandability, I chose the basement space that can be expanded regardless of floor area ratio as the major site of this project. In other words, I secured on the basement the required parking space considering the maximum virtual measurements for future expandability.


这个空间已被规划为提供停车空间,并被用作与地下室相连的各种形式的外部空间。为了保证这个停车空间,某个钢制杠杆图案被改变了角度,以交替使用上面的百叶窗和下面的石头来创造一个图案。在顶部的百叶窗内插入了LED装置,以便在夜间除了使用停车空间外,还可以进行各种活动。新的大理石外墙的水平流动与现有的停车空间相连接,使地下室的空间得到最大限度的利用,如一个画廊。在不改变容积率的情况下,地下室的空间被充分利用,以便为额外的扩展留出空间。上面的现有房屋拆除了现有的天花板材料,以开辟空间,方便租户使用。
This space has been planned to provide the parking space and to be used as various forms of exterior space connected to the basement. To secure this parking space, a certain steel lever pattern was changed in angle to alternate the louver on top and the stone on the bottom to create a pattern. LED units were inserted inside the louver on top to allow various activities at nighttime in addition to the use of space for parking. The horizontal flow of the new exterior walls in marble connects to the existing parking space to maximize the basement space for various uses such as a gallery. The basement space was used to the fullest without changing the floor space ratio to leave room for additional expansion. The existing house on top removed the existing ceiling materials to open up the space for the convenience of renters.

几何结构的重建
八十七个黑色不锈钢四面体块构成了包裹现有砖石墙的基本单元。黑色不锈钢方块的外表是由530个三角形和菱形组成的一坨皮肤。换句话说,这530个几何形状被顶部和底部的钻孔板以及中心的激光切割三角形分割和重新配置。约200,000个钻孔圆和15,000个几何图案以不同数量和质量过滤来自外部的光线。光线被重新组织,空间被新的配置。过去的脚步声被几何图形重新配置,空间被几何图形的光线变化赋予了时间感。
The Reconstruction of Geometry
Eighty-seven black stainless steel tetrahedron blocks form the basic unit that encases the existing masonry walls. The exterior of black stainless steel cubes is a lump of skin made of 530 triangles and rhombuses. In other words, the 530 geometric shapes are divided and reconfigured by the bored plates on top and bottom and the laser-cut triangles on the center. The pattern of about 200,000 bored circles and 15,000 geometric patterns filter the light from the outside in various quantities and qualities. Light is reorganized and the space is newly configured. The past footsteps are reconfigured by geometry and the space is given the sense of time by the change of geometric light.






















Architects: JOHO Architecture
Area : 179 m²
Year : 2014
Photographs :Namgoong Sun
City:Seoul
Country: SOUTH KOREA