由Kjellander Sjöberg为Varvsstaden设计的马尔默Gjuteriet的改造已经完成。该项目专注于对再利用材料的深入再利用,展示了如何根据循环原则对现有建筑进行重新构想。这座独特的建筑以前是一片废墟,现在被赋予了充满活力的新生命,成为一个活跃的、社会化的新城市场所,讲述着关于港口丰富的海洋遗产的多面性故事。Varvsstaden是马尔默的一个主要改造项目,将旧船厂改造成一个可持续发展的新区。
The transformation of Gjuteriet in Malmö, designed by Kjellander Sjöberg for Varvsstaden, has been completed. Focused on the intensive reuse of repurposed materials, the project demonstrates how existing buildings can be reimagined based on circular principles. Formerly a ruin, the distinctive building has been given a vibrant new life as an active and social new urban place telling a multifaceted story about the port’s rich maritime heritage. Varvsstaden is a major regeneration project in Malmö transforming the old shipyards into a sustainable new district.



历史悠久的Gjuteriet铸造厂建筑是该地区的一个重要地标,代表了马尔默作为一个工业城市的崛起。该项目既是对建筑的重塑,也是对其大环境的重塑。Kjellander Sjöberg开发了一个具有最大的社会、地方和环境效益的项目,沿着邻近的码头、干船坞和内盆地带来了一个活跃的新公共领域。这个马尔默的新焦点将启动Varvsstaden区的复兴,该区正在迅速发展成为一个令人兴奋的新的混合用途社区,包括住宅、工作场所和隆德大学的新美术校园。
The historic Gjuteriet foundry building is a key landmark in the area representing Malmö’s emergence as an industrial city. The project is both about the reinvention of the building and its wider environment. Kjellander Sjöberg has developed a program with maximum social, local, and environmental benefits that bring to life an active new public realm along the adjacent quay, dry dock, and inner basin. This new focal point in Malmö will kick start the regeneration of the Varvsstaden district which is fast evolving into an exciting new mixed-use neighborhood with homes, workplaces, and a new fine arts campus for the University of Lund.


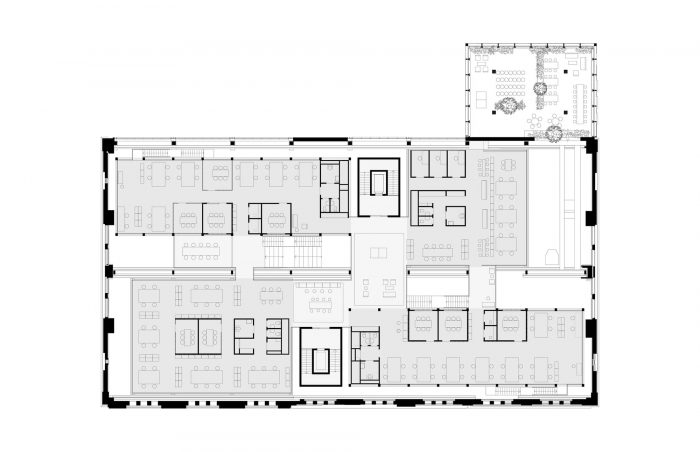
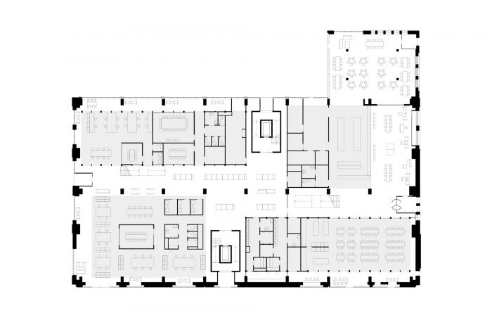
Gjuteriet是Oatly的一个新的鼓舞人心和体验式的公司总部。它是一个非正式的、开放的、真实的工作场所,围绕着社会会议和公共空间而建立--它也是创造性的、协作性的和基于活动的--反映了其用户的共同价值观。底层是一个慷慨的共享领域,将邀请公众进入一个咖啡馆、餐厅、门厅和展览空间。
Gjuteriet is a new inspiring and experiential company headquarters for Oatly. It’s an informal, open, authentic workplace built around social meetings and communal spaces - it is also creative, collaborative, and activity-based – a reflection of the shared values of its users. The ground floor is a generously shared realm that will invite the public to a cafe, restaurant, foyer, and exhibition space.


该项目的首要精神是强调资源保护和最小的碳足迹;在地球范围内可以建造什么,以及哪些材料已经可以实现最可持续的结果?Varvsstaden在附近的一个仓库里建立了一个材料库,储存了从其他拆解的码头建筑中回收的材料,这是一个明智的开端。可持续再利用方法的核心是这个 "材料库";砖头、金属板、波纹板、楼梯、灯具等等,成为项目的主要建筑资源和主要设计动力。在现有的钢架上增加了胶合木和CLT;在可能的情况下,所需的新材料都是从当地和可再生资源中获得的。
The overarching project ethos placed an acute emphasis on resource preservation and a minimal carbon footprint; what can be built within planetary boundaries, and what materials were already available to achieve the most sustainable outcomes? Varvsstaden had made an enlightened head start, creating a material bank in a nearby warehouse stocked with upcycled materials from other disassembled wharf buildings. Central to the sustainable reuse approach this ‘library of things’; bricks, sheet metal, corrugated panels, stairs, light fittings, and more, became the project’s primary building resource and main design driver. Additions to the existing steel frame are in glulam timber and CLT; wherever possible new materials required were sourced from local and renewable sources.

Kjellander Sjöberg从已经存在的东西开始:气势恢宏的钢结构、砖墙、我们发现的脆弱和破碎的拼贴特征--所有这些都保留了长期积累的故事和叙述。有特色的大殿屋檐被翻新,并在内部进行了隔热处理。西侧立面的零碎拼贴,承载着有趣的历史痕迹,通过回收砖的新保护性外立面继续存在。
Kjellander Sjöberg began with what was already there: the imposing steel structure, the brick walls, the frail and broken collage-like character of the building we found – all these preserved stories and narratives that have accumulated over time. The characteristic basilica gables were renovated and insulated on the inside. The fragmented collage of the west façade that bore interesting historical traces lives on with a new protective outer façade of recycled brick.

多年来封存的原砖拱顶已被重新打开,并再次成为该建筑的突出特征。带有现有钢架和横梁的大型工业大厅曾经活跃在繁忙的船舶部件建造活动中。今天,这个令人印象深刻的体量被新的空间填充,鼓励创造性的使用、社会互动和合作。
Original brick vaults sealed over the years have been re-opened and are once again prominent features of the building. The large industrial hall with an existing steel frame and traverse were once alive with busy ship component building activity. Today, the impressive volume is filled anew with new spaces that encourage creative use, social interaction, and collaboration.





















Architects: Kjellander Sjöberg
Area: 6030 m²
Year: 2023
Photographs:Rasmus Hjortshøj – COAST
Lead Architects: Stefan Sjöberg, Johan Pitura
Landscape Architects: Sted Landskap
Structure: BK Konsult
Advisor: Matter by Brix
Senior Architect: Hannes Haak, Sylvia Neiglick
Architect: Simon Estié, Sebastian Mardi, Per Hedefält, Stefan Rydin, Karin Lindström, Michael Westerlund
Senior Advisor: Susanna Bremberg
Timber Frame: Martinsons
City: Malmö
Country: Sweden