一座位于巷子里的18平方米的城市小房子已经被翻新,以适应主人的需要。这座老房子部分损坏,被遗弃了几个月,内部非常黑暗,砖墙和柱子是主要的承重结构。设计概要要求进行经济和艺术化的改造,以满足业主的初创皮革店和他们的生活空间,并有两间卧室。
An urban tiny house located at a 18-square-meter site in an alleyway has been renovated to fit the owner's needs. The old house was partly damaged and abandoned for months and very dark inside with brick walls and columns as the main load-bearing structure. The design brief asked for an affordable and artistic renovation to accommodate the owners’ start-up leather shop and their living space with two bedrooms.






我们提出了一个创造性的解决方案,小心翼翼地拆除两个旧的砖墙,然后用玻璃砖墙和集成窗以及新的最小的钢结构来取代它们。东北和东南方向的半透明玻璃砖外墙在不失去隐私的情况下,实现了自然采光和通风,同时也使建筑在白天与周围环境相融合。到了晚上,当灯光亮起时,房子就成了小区中央的一个神奇的闪亮的灯笼。
We proposed a creative solution by carefully removing two old brick facades then replace them with glass-block facades and integrated windows together with new minimal steel structure. The translucent glass-block facades on the North-East and South-East engage natural light and ventilation without losing the privacy, and also make the building blend with the surroundings during the day. At night, when lights on, the house become a magically sparkling lantern in the middle of the neighborhood.

顶部的凉棚是建筑形式的一个特色元素。凉棚的设计以玻璃砖的方形为基础,被认为是立面的外皮,为理想的植物提供了空间,增强了私密性,并最大限度地减少了对室内空间的热量吸收。方形窗户的尺寸乘以190Wx190H毫米的玻璃砖尺寸。窗户不仅允许自然采光和通风,而且还被认为是室内空间和外部空间的连接器。
The pergola on the top is a feature element of the built-form. The design of pergola is based on the square shape of the glass-block and considered as the outer skin of the facade which gives space for desirable plantings, enhances the privacy, and minimizes the heat gain to the interior space. The dimensions of the square windows are multiplied by the 190Wx190H mm dimension of a glass-block. The windows not only allow for natural light and ventilation but are also considered as connectors between the indoor space and the outside.

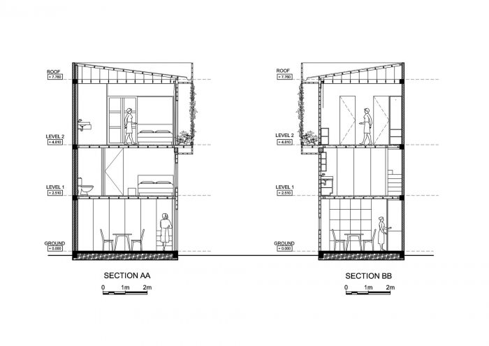
包括浴室和楼梯在内的服务和流通空间被安置在西部,以防止太阳热量进入主要空间。一楼是业主的皮革陈列室,有一些展示窗和集成的玻璃架。厨房、洗衣房、楼梯和一个小厕所被特意隐藏在玻璃推拉门后面,只有在必要时才会打开。第一层容纳了一个紧凑的卧室套房,浴室和衣柜无缝地隐藏在玻璃隔板后面。卧室、浴室、储藏空间和家具都在一个紧凑的14平方米的空间里。这个空间只有两种颜色:传统水泥地砖的绿色和贴在玻璃门上的香蕉叶图案的薄膜;以及木制家具和软装饰的中性暖色调。
The service and circulation spaces including the bathrooms and staircases are positioned at the West to prevent solar heat gain getting into the main space. The ground floor is dedicated to the owners' leather showroom with some display windows and integrated glass shelving. The kitchen, laundry, staircase and a small toilet are purposely hidden behind sliding glass doors which are only opened when necessary. The first level accommodates a compact bedroom suite with the bathroom and wardrobe seamlessly hidden behind glass partitions. The bedroom, bathroom, storage space, and furniture are altogether in a compact 14 square meter space. This space has merely two colors: the green of the traditional cement floor tiling and the banana-leaf patterned film applied on glass doors; and the neutral warm tone of the wooden furniture and soft furnishing.



第二层是舒适的主卧室套房,有一个景观阳台。浴室是一个简约的设计,有一个令人愉快的玻璃块淋浴。阳光经过植物和半透明玻璃砖外墙的过滤后,照亮了室内空间。不同大小的玻璃窗被明智地定位,以打开景观的视野,但又避免直接看到邻近的房屋,以提高隐私和舒适度。由于采用了全尺寸的卷帘,外墙可以关闭。家具采用天然木材和传统竹片,节省空间,精心设计。地板采用传统的花卉图案的水泥砖进行装饰。现代和传统材料的结合,以一种极简主义的方式,使人的空间体验看起来既新鲜又密切熟悉。
The second level accommodates the cozy master bedroom suite with a landscaped balcony. The bathroom is a minimalist design featuring a delightful glass-block shower. The sunlight is filtered by the plantings as well as the translucent glass-blocks facades before lightening the interior space. The glass windows in various sizes are wisely positioned to open the view to the landscape yet avoid direct sight from the neighboring houses to enhance privacy and comfort. The facades can be closed off thanks to the full-size roller blinds. The furniture is space-saving and carefully designed with natural wood and traditional bamboo sheets. The floors are finished with traditionally flora-patterned cement tile. The combination of contemporary and traditional materials in a minimalist approach makes one's spatial experience seem both freshly new and closely familiar at the same time.

















Architects: ROOM+ Design & Build
Area : 60 m²
Year : 2019
Photographs :SM Art Studio
Manufacturers : INAX, SketchUp, AutoCAD, Galaxy Glass & Stone, M&A art tiles, MPE Lightings, PT&T, Star Blinds, TOSHIBA, V-Asia
Engineering : ROOM+ Design & Build
Consultants : ROOM+ Life
Landscape : ROOM+ Life
Architect In Charge : Vinh Phuc Ta
Design Team : Casa Yen Nguyen, Hieu Hien Trinh, Kim Quy Nguyen
Collaborators : ROOM+ Life
Country : Vietnam