在阳光下,它像一块大理石一样闪闪发光。从前面看,你看到的是一个不起眼的小屋,是你到达吉泽尔卡前的最后一个小屋。但从建筑的另一面可以看出,这里发生了一些不寻常的事情。在原来小木屋的幕布后面,一个闪闪发光的玻璃延伸部分已经出现,房子的下一幕戏已经成熟了。
In the sunshine, it glistens like a marble. From the front, you see an inconspicuous cabin, one of the last ones before you arrive at Jizerka. But the other side of the building reveals that something extraordinary has transpired here. Behind the curtain of the original cabin, a glittering glass extension has sprung up and the house is ripe for the next act of its play.



这座小木屋在这里,在吉泽拉山的一片草地上,已经矗立了一百多年。自从它用周围森林的木材和花岗岩建成以来,周围的世界已经发生了变化。两次世界大战席卷了欧洲,捷克共和国经历了共产主义的黑暗时期和革命后的狂热年代。人类成功地登上了月球,今天月球继续照耀着小屋后面的草地,仿佛什么都没有发生过。甚至屋后森林里的蘑菇也还在生长,鸟儿在早晨疯狂地鸣叫。世界变得越来越快,联系越来越紧密,但有些东西仍然是一样的。
The cabin has stood here, in a meadow in the Jizera Mountains, for over a hundred years. The world around it has changed since it was built from the timber and granite of the surrounding forests. Two world wars had swept through Europe, the Czech Republic through the dark period of communism and the frenzied post-revolution years. Humanity had managed to land on the moon, which today continues to shine over the meadow behind the cabin as if nothing had happened. Even the mushrooms in the forest behind the house are still growing and the birds are chirping like mad in the mornings. The world has become faster and more connected, but some things remain the same.



这里的清晨是美丽的。露珠在窗外空地上的蜘蛛网上闪闪发光,冰冷的厨房地板欢迎起居室里的早起鸟儿。木头在火中裂开,茶水在炉子上酝酿。我们翻修房子时考虑到了未来,但同时,我们也不愿意放过它过去所有美妙、狂野和不方便的方面。至关重要的是,我们没有剥夺小屋无形的灵魂、木材的香味和花岗岩块的严寒。我们保留了我们可以保留的东西。留下的东西,我们用一种新的品质加以补充,不寻求与过去竞争。
The mornings here are beautiful. Dewdrops glisten on cobwebs in the clearing outside the windows, and the cold kitchen floor welcomes the early birds in the sitting room. Wood cracks in the fire, and tea brews on the stove. We refurbished the house with the future in mind, but at the same time, we didn't feel like letting go of all the wonderful, wild and unwieldy aspects of its past. It was essential that we didn't strip the cabin of its intangible soul, the fragrance of the timber, and the stark chill of the granite blocks. We kept what we could. What remained, we've complemented with a new quality that doesn't seek to compete with the past.


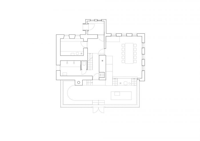
起居室里的烤箱和炉子成为小屋布局的核心。绕着烟囱走,就像在过去和未来之间来回转动一台时间机器。穿越一个世纪需要一秒钟的时间。我穿过旧的起居室,滑过通往一楼的楼梯,推开门,我就进入了取代原来的棚屋而建的生活空间。这是个奇观。
The oven and the stove in the sitting room became the heart of the cabin's layout. Walking around the chimney is like spinning a time machine back and forth between the past and the future. It takes a second to go through a century. I zip through the old sitting room, slide past the staircase to the first floor, slam the door, and I'm in the living space that was built in place of the original shed. It's a spectacle.


一个充满玻璃窗格的轻质透明结构界定了一个略微下沉的宽敞客厅,它结合了一个现代厨房和大量的自由空间。这个相当不寻常的布局吸引了众多的气氛和氛围。光滑的黄铜包覆的天花板反映了户外氛围的每一次转变。从厨房出来,我又爬了几级台阶,回到那个熟悉的Jizera小屋。
A lightweight transparent structure filled with glass panes defines a slightly sunken spacious living room that combines a modern kitchen and plenty of free space. The rather unusual layout captivates a multitude of vibes and atmospheres. The glossy brass-clad ceiling reflects each shift in the outdoor ambiance. From the kitchen, I climb a few more steps and back into that familiar Jizera cabin.



楼下的区域已经配备了任何小屋都有的必需品。建在原墙之间的石制浴室是一台清洁机器。淋浴的水打在混凝土小岛上,消失在打孔的地板格子下面。白色的蒸汽在石头上凝结,附近的吉泽拉河的泉水可能曾经在上面流过。
The downstairs area has been fitted out with the essentials that are part of any cabin. The stone bathroom built between the original walls is a cleansing machine. The water from the showers hits the concrete islets and vanishes below the perforated floor grating. White steam is condensation on the stones, over which the spring waters of the nearby Jizera River may once have flowed.

从入口处的走廊,我们沿着精巧的钢制楼梯爬到一楼,经过一个圆形天窗,照亮了整个空间。古老的梁柱散发着历史的气息,上面是原来的茅草屋顶,我们设法保留了它。它让我们看到了房子在被我们接管之前的样子。在原来地板的木板无法挽救的地方,现在有一个玻璃地板。取代腐朽木材的玻璃元素将室内空间连接成一个令人惊讶的组合,并为整个房子提供了意想不到的视野。
From the entrance corridor, we climb to the first floor on subtle steel stairs past a round skylight that illuminates the entire space. The old beams smell of history and above is the original thatched roof, which we managed to preserve. It offers a glimpse of what the house looked like before we took over. Where the planks of the original floor could not be salvaged, there is now a glass floor. The glazed elements replacing the decayed wood link the interior space into a surprising ensemble and provide unexpected views throughout the house.

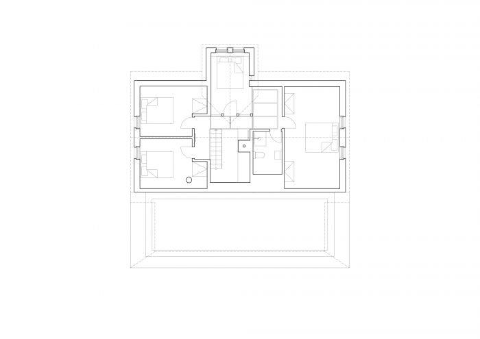
上层楼是专门用于睡眠的。四间卧室为打瞌睡的人提供了广泛的体验。玻璃墙的主卧室是一个迷人的地方。到了晚上,在房子陷入寂静,你渐渐进入梦境的时刻,它就成了船长的桥梁。圆形的天窗像月亮一样照耀着大海,躺在床上的水手们对室内的整个海洋了如指掌。
The upper floor is dedicated to slumber. Four bedrooms offer the snoozers a wide range of experiences. The glass-walled master bedroom is a charmer. At night, in the hours when the house falls silent and you're drifting into a dream, it becomes the captain's bridge. The round skylight shines like the moon over the sea, and the sailors in bed have the whole ocean of the interior at their fingertips.


大的儿童卧室也是一个游戏室,如果外面的天气变得恶劣,所有孩子的活动都可以在这里进行。如果有什么地方可以捣蛋,那就是这里。对于其他两间卧室,山间小屋的经典房间被重新设计了。它们是早晨太阳晒得你发痒的地方,你会说。"上帝,在这里睡觉真好!"
The large children's bedroom is also a playroom, where all the children's activities can be moved, should the weather outside turn rough. If there's any place for mischief, it's here. For the other two bedrooms, the classic rooms of the mountain cabin have been reimagined. They're the places where the sun tickles you in the morning and you say: "God, it's so good to sleep here!"



我们以一种微妙的方式布置了内部。它总结了我们整修方法的总体理念。我们不想强行把全球设计的作品放到房子里。大部分的新设备由我们自己设计的原创家具和配件组成。它们反映了仍在这里生活和工作的吉泽拉山的工匠们的手工质量。新作品与客户自己精心挑选的旧家具相得益彰。
We furnished the interior in a subtle way. It concludes the overall philosophy of our approach to refurbishment. We didn't want to forcefully place pieces of global design into the house. Most of the new equipment consists of original furniture and accessories that we designed ourselves. They reflect the quality of the handmade work of the craftsmen from the Jizera Mountains who still live and work here. The new pieces are complemented by old furniture lovingly selected by the clients themselves.

在离小木屋不远的地方,还增加了一个几乎看不见的桑拿房。它正耐心地等待着舒缓一天越野滑雪后疲惫的身体。一个不显眼的混凝土美景镶嵌在地面上,向屋后的空地望去。潜入雪中是允许的。
An almost invisible sauna was added not far from the cabin. It is patiently waiting to soothe the bodies tired from a day of cross-country skiing. An inconspicuous concrete beauty set into the ground looks out over the clearing behind the house. Diving into the snow is allowed!











Architects: Mjölk architekti
Area : 239 m²
Year : 2020
Photographs :BoysPlayNice
Manufacturers : DTile, Dekorax, JÁNOŠÍK OKNA-DVEŘE, Sollus nábytek
General Contractor : AronHouse
Program / Use / Building Function : Cottage Reconstruction
City : Kořenov
Country : Czech Republic