这座独户住宅位于一个10英亩的葡萄园和橡树丛中,其设计是将现有小房子的地基和屋顶整合到新的建筑构成中。
Located on a 10-acre vineyard and scrub oak site, this single-family residence was designed to integrate the foundations and roof of a small existing house into the new architectural composition.




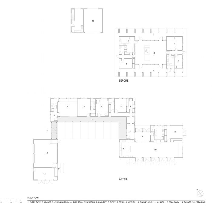
由三个标志性的金属屋顶的屋檐翼组成,由一个开放的雪松衬砌的拱廊和一个钢和雪松的棚架连接 - 房子和一个新的游泳池和景观设计定义了一个户外庭院,种植了四棵高大的树冠,在炎热的夏季提供遮荫。
Composed of three iconic metal-roofed gabled wings that are connected by an open cedar lined arcade and a steel and cedar trellis - the house and a new pool and landscape design define an outdoor courtyard that is planted with four high canopied trees that provide shade during the hot summer months.

















Architects: Nick Noyes Architecture
Area: 5403 ft²
Year: 2016
Photographs:Bruce Damonte, Suzanna Scott
Manufacturers: James Hardie, Marvin
Lead Architects: Michael Perkins & Nick Noyes
Structural: Duncan Engineering Inc
City: Glen Ellen
Country: United States