客户简介
现有的房子遭受了当地气候和多年来杂乱无章的发展,导致了一个支离破碎的计划和不协调的外观。客户的要求很简单:保留部分原始结构,并提供额外的住宿和景观,以适应该地的质量。
Client Brief
The existing house had suffered the abuse of the local climate and haphazard development over a period of years resulting in a fragmented plan and disjointed appearance. The clients brief was straightforward; to retain part of the original structure and to provide additional accommodation and landscaping fit for the quality of the site.


现有场地
该场地位于一个具有特殊自然景观的地区。海景和崎岖但茂盛的景观与快速变化的天空和狂野的深蓝色海洋相结合。该地块东面临海。现有的房子位于北边的陡峭岩壁和南边的小溪之间。通道从西边的悬崖上蜿蜒而下,通向房子。东边是一片长长的缓坡草坪,向海延伸到岩石海岸线。
Existing Site
The site is located in an area of exceptional natural beauty. Sea views and rugged yet lush landscapes combine with fast changing skies and wild deep blue seas. The site faces the sea to the east. The existing house was set between a steep rock face to the north and a small stream to the South. The access road winds down the cliff from the west to the house. To the east a long gently sloping lawn stretches seaward towards the rocky coastline.

规划限制
在当地开发边界之外,位于欧洲最美丽的道路之一的下方,从房子周围的土地和大海看到的风景和景观的特征必须得到保持。当地的设计指南提出,传统或乡土形式是可以接受的,但明确指出,强调能源效率和设计多样性的特殊质量的设计将被认可。
Planning Constraints
Outside of the local development boundary and set just below one of Europe’s most scenic roads, the character of the views and the landscape seen from the land around the house and the sea had to be maintained. The local design guide proposed traditional or vernacular forms as acceptable but was clear that designs of exceptional quality with an emphasis on energy efficiency offering diversity in design would be acknowledged.

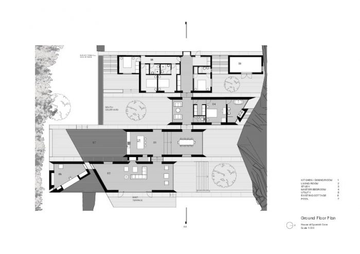
设计
这座房子是由一系列的线性亭子组成的,与原来的房子平行设置。亭子从1.6米的场地下降,形成一条蜿蜒的路径,从西边的入口到东边的生活空间和海景。现有别墅的形式影响了新结构的设计,它的屋脊被用作定义新建筑高度的基准。一系列倾斜的屋顶交错分布在整个场地上,创造了一些空间,形成半封闭的庭院。在旅程的终点,一个大的露台展现了悬崖、大海和西科克群岛的壮观景色。宾客卧室位于整修过的小屋中。游客通过玻璃连接进入第一座石灰石建筑,其中第一座容纳了主卧室和浴室。
Design
The house is formed of a series of linear pavilions set parallel to the original house. The pavilions step down the 1.6m fall of the site creating a meandering path through the house from the entrance on the west to the living space and sea views to the east. The form of the existing cottage influenced the design of the new structures and its ridge was used as a datum that defines the heights of the new buildings. A series of pitched roofs are staggered across the site creat- ing pockets of space forming semi-enclosed courtyards. At the end of the journey a large terrace reveals spectacular views of the cliffs, the sea and the islands of West Cork. Guest bedrooms are located in the refurbished cottage. Visitors pass through a glass link into the first of the limestone buildings, the first of which accommodates the master bedroom and bathroom.

第二个石灰石亭子里有餐厅和厨房。最后一个亭子被分成两个部分,一个是客厅,另一个是独立的书房,通过石门和跨越瀑布池的小桥进入。材料 施工方法 现有房屋的屋顶为天然石板,墙面为白色渲染。新的结构是用爱尔兰蓝石灰石包覆的。这种天然材料随着时间的推移而风化,以配合周围悬崖的地质情况。石头在潮湿时变得高度反光。石头对屋顶和墙壁的负载由一个钢筋混凝土结构支撑,提供了调节温度和储存热量的热质。
The second limestone pavilion con- tains the dining room and kitchen. The final pavilion is broken into two parts, one for the living room and the other a freestanding study, accessed via stone doors and a small bridge over the cascading pools. Materials Method of Construction The existing house is roofed in natural slate with rendered white walls. New structures are clad in Irish blue limestone. This natural material weathers over time to match the geology of the surrounding cliffs. The stone becomes highly reflective when wet. The loads of the stone to the roof and the walls are supported by a reinforced concrete structure providing thermal mass that regulates temperatures and stores heat.















Architects: Niall McLaughlin Architects
Area : 300 m²
Year : 2009
Photographs :Nick Guttridge , Nick Kane , Niall McLaughlin
Manufacturers : PBA
Quantity Surveyor : AKC Chartered Surveyors
Main Contractor : C.H.O.M Construction Ltd
Landscape Architect : Desmond FitzGerald Architects
Mechanical & Electrical Engineer : EDC Engineering Design Consultants
Structural Engineer : Price & Myers
M&E Engineer : EDC Engineering Design Consultants
Stone Consultants : Harrison Goldman
Timber Consultant : TRADA
City : Cork
Country : Ireland