依偎在构成这条标志性街道的新旧织锦中。一座充满历史的建筑将成为Good Measure的家。这座建筑以前是Bosari Cycles的所在地,是Lygon街80多年的主力。
Nestled into the tapestry of old and new that make up this iconic street. A history-laden building will be the home to Good Measure. The building previously housed Bosari Cycles, a Lygon St mainstay for 80 odd years.





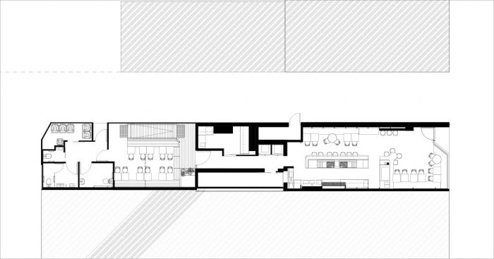
从白天到晚上,Good Measure都能满足你的需求,当你走在街上时,你会对它产生浓厚的兴趣,但仍能舒适地融入周围的环境中。我们利用天花板来玩弄光线,在一个房间里创造两个不同的空间。
A venue that can take you from day to night, Good Measure will peak your interest as you walk down the street but still settle in comfortably in its surroundings. We used the ceiling to play with light and create two distinct spaces in one room.


朝前看,窗边高高的、通风的空间是你坐在那里喝早咖啡的最佳位置。当天晚些时候再来,可以在酒吧周围更亲密的空间里喝杯鸡尾酒。吧台是一块空白的画布,它是团队施展魔法的背景。我们设计了一个简单的木质网格,沉浸在丰富的色彩层中,给伙计们一个框架,让他们做任何他们想做的事情。
Towards the front, a high, airy space at the window is the perfect spot for you to sit with your morning coffee. Come back later in the day and settle into the more intimate space around the bar for a cocktail. The bar is a blank canvas, it serves as a backdrop for the team to do their magic. We’ve designed a simple timber grid immersed in a rich layer of color to give the guys a framework to do anything they want.







Architects: We Are Humble
Area : 190 m²
Year : 2021
Photographs :Aaron Puls
Manufacturers : Dulux, American Oak, La Marzocco, Metz Tiles, Steve Edwards Furniture, Wood & Wedge
Builders : Jimmy Timber
Client : Close Quarters Hospitality
City : Carlton
Country : Australia