一个新的、低碳的、多代同堂的公寓已被插入到伦敦北部的维多利亚式的Mews房子中。建筑师的工作室就在路边,上面有一个多人居住的公寓,从那里完成的类似工作已经过去了10年,这个项目为实践提供了一个机会,以审查其改造Mews房屋的方法。现在有了更多的再生材料,更多的回收内容和更多的能源效率。
A new, low-carbon, multi-generational pair of flats has been inserted into a Victorian Mews house in North London. Just down the road from the architects’ studio with an apartment in multiple occupation above and 10 years on from the similar work done there, this project provided an opportunity for the practice to review its approach to reworking mews houses. There are now more reclaimed materials, more recycled content and more energy efficiency.




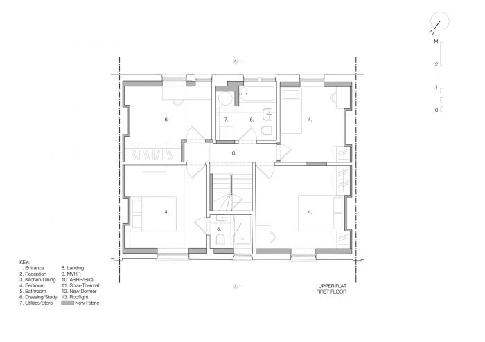
这座中层马厩原本是维多利亚时代的马厩,上面有工作人员的住所,在20世纪80年代被部分改造成房屋。它包括一个未隔热的阁楼,一个位于底层的开放式车库兼储藏室,以及大量的浴室。设计大纲要求设计一对高效的、面向未来的、独立的住宅,并在未来有一个突破性的地方可以相互连接。在底层1个床位的公寓之上,倒置的4个床位的小公寓的第一批住户是逃离冲突的难民。
Originally Victorian stables with staff accommodation above, the mid-terrace mews building had been partially converted into a house in the 1980s. It included an un-insulated attic, an open garage-cum-store room on the ground floor and an extensive number of bathrooms throughout. The brief asked for an efficient, future-proofed, pair of self-contained homes with a break-through spot to inter-connect in the future. Above the 1-bed ground floor flat, the first occupants of the upside-down 4-bed maisonette are refugees fleeing conflict.


建筑围护结构是完全绝缘的,用带状的内部OSB密封,并安装了全屋MVHR系统。旧砖砌体通过点状渗水孔进行独立通风。顶层的开放式船形烹饪/生活空间用再生石板做屋顶。在屋顶上,太阳能热水板被嵌入到南面的屋顶上,而一对严重隔热但又安静的现代雨棚则位于朝北的屋顶上。虽然从街上看是一样的,但其中一个雨棚在起居区隐藏了一个全高的法国门,而另一个雨棚则在厨房旁边有一个较小的窗户,里面有一个草药花园。这些开口都是经过精心设计的,以最大限度地利用来自北方和南方的光线。
The building envelope is fully insulated and sealed with taped internal OSB and fitted with a whole-house MVHR system. The old brickwork is independently ventilated through the pointing weep holes. The open-plan boat-like cooking/living space on the top floor is roofed with reclaimed slates. On the roof, solar hot water panels are recessed into the southern pitch while a pair of heavily insulated, yet quietly modern dormers sit on the North-facing pitch. Though identical from the street, one dormer hides a full-height French door by the sitting area while the other, a smaller window with a herb garden by the kitchen. The openings are carefully calibrated to maximise light from the North and South.


通过抢救、恢复和重新使用现场发现的许多建筑元素,以及应用可回收材料和限制水泥的使用,减少了垃圾填埋和碳的体现。在石膏板墙内发现的木板被安装在通往阁楼的老式卷帘楼梯周围作为墙面覆层;不太好的地板被翻转90度作为阁楼低墙的覆层,屋顶拉杆被暴露出来,与回收的木制品放在一起,窗户被重新悬挂并重新安装了超薄的双层玻璃和新的密封条;老式马厩门被修复,用新制作的真实铰链从原来的铸件上铸造。
Landfill and embodied carbon are reduced through salvaging, restoring and re-using many building elements found on site, as well as applying recycled materials and limiting the use of cement. Timber boarding discovered within plaster-boarded walls is installed as wall cladding around the old winder staircase leading to the loft; the less good floorboards are turned 90º as cladding for the low loft walls, the roof ties are exposed to sit alongside the reclaimed timberwork, the windows are rehung and re-fitted with extra-slim double glazing and new seals; the old stable doors are restored with newly-made authentic hinges cast from the original castings.



在这些门后面,新的三层玻璃窗和门完成了高效的热封,让最大的日光进入内部空间;用预留槽的薄硬板直接浮在厚厚的地板隔热层上,而不是将UFH浇注到砂浆中;非常简单的材料调色板包括水磨石瓷砖与40%回收的瓷器和回收的酸奶罐板作为厨房单元和工作台面;热泵准备设计。当公众接受在保护区内使用热泵时,增加的热性能将允许从天然气过渡。
Behind these doors, new triple glazed windows and doors complete the efficient thermal envelope letting maximum daylight into the space within; instead of UFH cast into a screed, thin pre-grooved rigid panels float directly on the thick floor insulation; a very simple palette of materials includes terrazzo tiling with 40% recycled porcelain and recycled yoghurt pot boards as kitchen units and worktops; the Heat Pump-ready design. The increased thermal performance will allow for a transition from gas when public acceptance allows for use of heat pumps in conservation areas.













Architects: Sanya Polescuk Architects
Area : 177 m²
Year : 2022
Photographs :David Valinsky
Manufacturers : FAKRO, Hansgrohe, Kingspan Insulated Panels, Allgood, Astro Lighting, Bette, Dulux, Duravit, Grestec, Ketley Brick, Nu-Heat, Osmo, Velfac, Associated Lead Mills, Charles Collinge Limited, Forbo, Granite Transformations, Histoglass, John Lewis, London Solar
Structural Engineer : Ling Engineering
Quantity Surveyor : AJ Oaks & Partners
Acoustic Consultant : KP Acoustics
General Contractor : AmirIlan
Design Team : Sanya Polescuk, Alex Blundell, Martyna Felus
Building Control : Assent
EPC : British Saps
City : London
Country : United Kingdom