GPAINNOVA办公室的新总部位于一个典型的工业仓库内,其结构为预制混凝土,没有什么建筑趣味,但同时产生了非常大的内部空间。内部改造的建议旨在利用这些内部空间的优势,为这个空间赋予个性和代表性。
The new headquarters for the GPAINNOVA offices is located in a typical industrial warehouse, with a precast concrete structure and little architectural interest, but at the same time generates very generous interior volumes. The proposal for the interior adaptation seeks to give personality and representativeness to this space, taking advantage of these interior volumes.



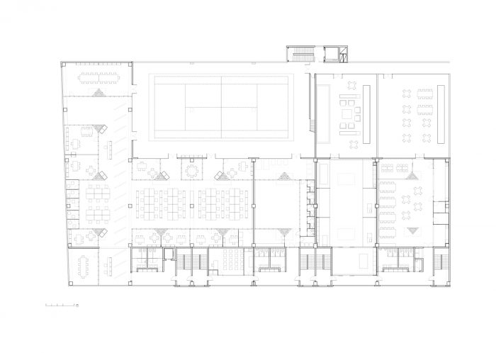
在开放的办公室里,每个人都会有视觉上的接触,这就需要一个透明的分布和分区。为此,玻璃的使用使透明的视野得到了优先考虑。只有这些视觉被一些与天花板上的天窗相连的大型植物元素所打断。
A diaphanous distribution and compartmentalization are projected for the use of open offices in which everyone is in visual contact. For this purpose, transparent views are prioritized with the use of glass. Only these visuals are interrupted by some large-format plant elements that are linked to the skylights on the ceiling.

这些新的绿色吸引点在办公室产生了更大的环境舒适度,同时在程序上与周围的环境互动,产生了等待区、与会议桌相连的具有更大隐私的空间、非正式会议区和交叉反射的视野。产生一组光线、植被和反射,为办公室内的时间流逝提供一个复杂、变化和敏感的氛围。
These new green attraction points generate greater environmental comfort in the offices while programmatically interacting with the immediate environment, generating waiting areas, spaces with greater privacy linked to meeting tables, informal meeting areas, and cross-reflective views. . Generating a set of light, vegetation, and reflections that provides a complex, changing and sensitive atmosphere to the passing of the hours inside the office.








Architects: Manu Pages Taller d'Arquitectura
Area : 1780 m²
Year : 2021
Photographs :José Hevia
Lead Architect : Manu Pagès
Engineer : Llorenç Ramos
Technical Architect : Arnau Lleonart
Constructor : SOGESA
Program : Industrial
City : Barcelona
Country : Spain