这是一个四口之家的房子,位于巴塞罗那格拉西亚区中心的一栋1900年的公寓楼的顶层。
This is a house for a family of four on the top floor of a 1900's apartment building located in the center of the Gracia district in Barcelona.



木梁是唯一的原始元素(之前的整修已经拆除了所有的原始木制品、地板和镶板)。它们被剥落并保存下来。
The wooden beams are the only original element (a previous refurbishment had already removed all the original woodwork, floors, and paneling). They are stripped and preserved.

新的连续地板,整个房子都是一样的,将白色与烧制的粘土,小块的颜色结合起来,创造出更大的空间感。
A new continuous flooring, the same for the whole house, combines the color white with fired clay, small pieces to create a greater sense of spaciousness.


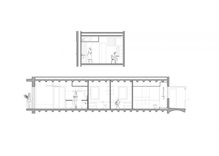
三个立面几乎保持不变,但铝制窗户被木制窗户取代,就像原来存在的一样。
The three façades remain almost unchanged, but the aluminum windows are replaced by wooden ones, like the ones that originally existed.


在这个周边(天花板、地板、外墙),建立了一个新的木制 "盒子","外面 "包括厨房、货架和储藏室。在里面,十几岁的女儿的卧室被 "封闭 "起来。
Within this perimeter (ceiling, floor, façades) a new wooden "box" is built which "outside" includes the kitchen, shelves, and storage. Inside, the bedrooms of the teenage daughters are "enclosed".


在楼层的一端是公共区域(客厅和餐厅)。另一端是更私人的区域(父母的卧室和浴室)。
At one end of the floor is the common area (the living room and dining room). At the opposite end is the more private area (the parents' bedroom and bathroom).

虽然可用的表面积减少了,但每个空间的设计都很精确,使室内路线流畅,并使自然光能够到达房子的每个角落。
Although the available surface area is reduced, each space is designed with precision to allow the interior routes to be fluid and to allow natural light to reach every corner of the house.

对于一个永久的家庭住宅来说,大体积的存储空间是必不可少的,这也是经过详细设计的。一个大的更衣室储藏室占据了房子的中心位置,一个办公桌角(从走廊偷来的)被保留下来,用于偶尔的远程办公。所有的家具都是定制的,使用相同范围的颜色和材料,使整体有一种宁静和秩序感。
The large volume for storage, essential in a permanent family home, has also been designed in detail. A large dressing room storage room occupies the center of the house and a desk corner (stolen from the corridor) is reserved for occasional teleworking. All the furniture is bespoke, using the same range of colors and materials to give a sense of serenity and order to the whole.

材料是天然的和可持续的(大理石、马赛克、木材)。在一年中的任何时候,都可以通过不同的策略实现热舒适:冬天用水散热器供暖,夏天用人工空调和交叉通风,在季节之间用吊扇。
Materials are natural and sustainable (marble, mosaic, wood). Thermal comfort is achieved at all times of the year with different strategies: heating with water radiators in winter, artificial air conditioning and cross ventilation in summer, and ceiling fans in between seasons.




Architects: Parramon + Tahull Arquitectes
Area : 753 ft²
Year : 2022
Photographs :Judith Casas Sayós
Manufacturers : Hansgrohe, JUNG, Daikin, Duravit, Franke, Grohe, Irsap, Marset, Ondarreta, Vaillant, Faro, Jueric, WISA, Wow Design
City:BARCELONA
Country:Spain