Grandes Terres小学位于Conflans-Sainte-Honorine市东北部的一个住宅区。
The Grandes Terres primary school is located in a residential area in the northeast of Conflans-Sainte-Honorine.



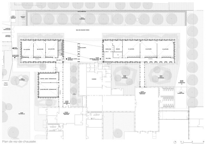
该项目包括重建一个娱乐中心和扩建Grandes Terres小学。
The project includes the reconstruction of a recreation center and the extension of the Grandes Terres primary school.


该项目的目标是为该地提供一个城市化的环境,并为学校提供一个新的外墙。沿着主立面,一条以树木为界的轴线重新定义了学校的所有入口。
The objective of the project was giving an urbanity to the site and offering a new façade to the school. Along the main façade an axis bordered with trees redefines all the entrances to the school.


新建筑通过穿越景观天井的全玻璃通道将学校和娱乐中心连接起来。
The new building connects the school to the recreation center through fully glazed circulations that cross the landscaped patios.

这种空间组织确保了小学各部分之间的功能自主性。这种组织方式允许在学校社区占用的场地上限制施工现场的干扰。
This spatial organization ensures the functional autonomy between the components of the primary school. That organization permitted to limit the nuisances of the worksite in a site occupied by the school community.

环境建设是由木质结构组成的。这种生物基材料以各种形式被使用:木质屋顶、木质框架墙、落叶松覆层、开口和内部云杉木制品。围护结构的水密性经过仔细研究和实施,以限制能量损失。
The environmental construction, is made of wooden structure. That biobased material is used in all its forms: timber roof, wood frame wall, larch cladding, openings, and interior spruce woodwork. The watertightness of the envelope has been carefully studied and implemented to limit energy loss.


涂有锌的折纸屋顶,似乎漂浮在现有场地之上。屋顶的斜线为这个地方提供了一种柔和的气氛。
The origami roof, coated with zinc, seems to float above the existing site. The oblique lines of the roof offer a softened atmosphere to the place.


沐浴在自然光中的室内空间,始终与花园保持着联系。木材为那些专门为儿童准备的空间带来了温暖的氛围。它在内部和外部之间建立了一个强大的关系,以增加建筑在其景观场地的整合。
The interior spaces, bathed in natural light, are always in relation with the gardens. The wood brings a warm ambiance to those spaces dedicated to children. It establishes a strong relationship between interior and exterior to increase the integration of the building in its landscape site.


















Architects: Hesters Oyon
Area : 602 m²
Year : 2022
Photographs :Sergio Grazia
Manufacturers : Ambiance Lumiere, Silverwood Stone, VMZINC, Weber Saint-Gobain
Lead Architects : Elise Hesters
City : Conflans-Sainte-Honorine
Country : France