格雷尼瓦泳池馆是一个全年都可以玩耍、游泳、锻炼和娱乐的圣地,建在纽约州的阿科德。虽然从技术上讲是一个游泳馆(围绕游泳池建造的结构,而不是与之相邻的结构),但Gray Niva真正的功能是室内和室外游泳池。
The Gray Niva Pool House is a year-round play, swim, exercise, and recreational sanctuary built in Accord, NY. While technically a natatorium (a structure built around – not adjacent to – a pool, Gray Niva really functions as both an indoor and outdoor pool.



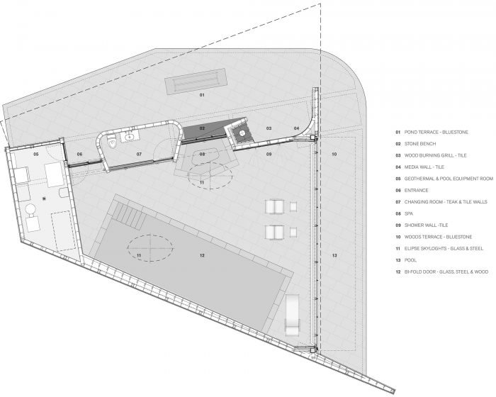
游泳池和周围的空间在冬天或夏天都感觉很诱人,而且一年四季都在使用。两个大的椭圆天窗和一个朝南的墙面大小的玻璃门的形式,将天空和大地带入,使室内空间与景观整体融合。在较冷的月份,游泳池和甲板被封闭起来,通过天窗和玻璃墙享受光线。在温暖的月份,南墙打开,将甲板延伸到外面,创造一个室内/室外日光浴室。
The pool and surrounding space feel inviting in winter or summer and are used throughout the year. Gracious openings, in the form of two large elliptical skylights and a south-facing, wall-sized glass door, bring the sky and earth in, integrating the interior space holistically with the landscape. In the colder months, the pool and deck are enclosed and enjoy light via the skylights and glass wall. In the warmer months, the south wall opens and extends the deck outside to create an indoor/outdoor solarium.


除了南面的甲板,还有一个朝东的露台,上面有柚木覆盖的墙,长椅和一个钢制烧木的烤架。有方向性的倾斜屋顶提供了全天的阴凉,并向外扩展了视野,并能看到庄园内的充气池塘。此外,还有一个浴室和更衣区,两个室内淋浴间,一个酒吧空间,以及一个用于控制和泳池玩具的设备室。
In addition to the south deck, there is an east-facing terrace with a teak-covered wall, bench seating and a steel wood-burning grill. The directionally angled roof provides shade throughout the day and expands the view outwards and over the aerated pond on the property. Additionally, there is a bathroom and changing area, double interior showers, a bar space, and an equipment room for the controls and pool toys.


游泳馆的设计和建造都致力于绿色设计和维护。其基础是一个地热水力系统和一个回收水力除湿系统,既能加热又能冷却空间和游泳池本身。其他细节有助于保持较小的占地面积:开口和屋顶的具体方向是利用太阳的季节性角度,利用或尽量减少光和热;通过战略性的交叉通风使气流最大化,超级绝缘的墙壁和屋顶确保最佳温度保持。
The natatorium was designed and built with dedication to green design and maintenance. The base of this is a geothermal hydronic system and a reclaiming hydronic dehumidifying system that both heat and cools the space and the pool itself. Other details help maintain a small footprint: the openings and roof are specifically oriented to utilize the seasonal angles of the sun and take advantage of or minimize light and heat; airflow is maximized through strategic cross-ventilation, and the super-insulated walls and roof ensure optimal temperature retention.











Architects: GAuthier Architects
Area : 2000 ft²
Year : 2021
Photographs :Naho Kubota
Manufacturers : Schweiss, WASCO Skylights, Beltile , Build Green SIPS, Corrugated Metals , Eliptipar Lighting, HVACquick
Lead Architects : Douglas Gauthier
Project Team : Mel Agosto, Randy Armas, Michael Hoehn, Christopher Tomasetti, Ziyue Wang
City : Accord
Country : United States