工作室位于蝴蝶馆对面,是我们建筑事务所的一个基于花园的创意家庭工作空间。坐落在伦敦东南部,该建筑是由董事需要平衡一个年轻的家庭和不断增加的工作量所驱动。
Sited opposite the Butterfly House, The Studio is a garden based creative home work space for our Architectural Practice. Situated in South East of London the building was driven by the directors need to balance a young family with an increasing workload.



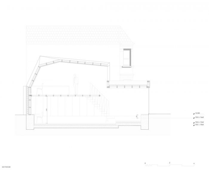
工作室的形状和方向是根据详细的日照分析得出的,最大限度地减少了对周围建筑的影响,确保了花园和工作空间的高水平日照。
The studio’s shape and orientation has resulted from a detailed sunlight analysis minimizing its impact on the surrounding buildings and ensuring high levels of day lighting to the garden and work spaces.

分层和接地的形式有助于掩盖其质量,并促进花园和工作室之间流动的地面景观的过渡。梯田式花坛和野花绿化屋顶采用不锈钢网覆盖,将绿化外墙,取代失去的栖息地。
The split levels and grounded form helps to conceal its mass and facilitates the flowing ground- scape transition between the garden and studio. Clad in a stainless steel mesh the terraced planter beds and wild flower green roofs will combine to green the facade replacing the lost habitat.

精心设计的高性能玻璃与超级绝缘和强大的自然通风策略相结合,意味着该建筑不需要加热或冷却。厨房和淋浴的热水由一个大型太阳能电池阵和热能库提供。
该项目于2013年10月完成,并在紧张的预算和期限内交付。所有的细木工制品都是由该事务所的姐妹公司Fraher + Co.设计、制作和安装的。
Carefully orientated high performance glazing combined with super insulation and a robust natural ventilation strategy means the building requires no heating or cooling. Hot water for the kitchen and shower are provided by a large solar array and thermal store.
The project was completed in October 2013 and delivered to a tight budget and deadline. All the joinery was designed, fabricated and installed by the practice’s sister company Fraher + Co.



















Architects: Fraher Architects
Area: 320 m²
Year: 2013
Photographs: Jack Hobhouse
Structural Engineer: Constant Structural Design
Joinery:Fraher and Co
City:London
Country:United Kingdom