绿色村庄是一个花园中心,位于帕多瓦省Cittadella市旁边的东部工业区。它拥有与主要道路相关的战略位置,它吸引了维琴察、帕多瓦和特雷维索省之间的集聚区。该综合体由三部分组成:商业建筑、温室和公园。
The Green Village is a garden center located in the eastern industrial area next to the municipality of Cittadella, in the province of Padova. It has a strategic position in relation to the main roads and it attracts a catchment area that extends between the provinces of Vicenza, Padua and Treviso. The complex is made of three parts: the commercial building, the greenhouses and the park.



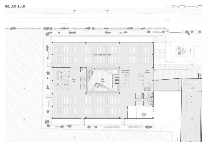
该商场被设想为一个清晰而基本的平行四边形,由两层组成,由一个向天空开放的中央绿色庭院连接。在地下室有一个停车区和通往上层的通道,而在底层有一个大型销售区和一个休闲区。外立面向后拉开任何开口,以支持一个盲目的几何实体,其唯一的例外是安全入口和出口。由于采用了金属覆层的上层结构,它们被塑造成具有自己体积的门户。
The mall has been conceived as a clear and essential parallelepiped made up of two levels connected by a central green courtyard that opens toward the sky. At the basement there are a parking area and the access to the upper level, while at the ground floor there are a large sales area and a relax zone. The façade pulls back on any opening in favour of a blind geometric solid, whose only exception is given by the security entrances and exits. They are shaped as portals with their own volume thanks to a metal cladding superstructure.


空气和光线的正确供应是通过两个因素的结合来实现的:棚顶和中央天井。前者保证了全天光线的扩散和均匀,而后者,由于其全高,是建筑的真正核心。该建筑作为一个内省的建筑出现,像罗马的住宅一样向内开放。天井是整个有机体的核心,也是计划产生的地点:它不是体积的减法,而是建筑以离心方式发展的空间。四个角是建筑中唯一的支柱,除了周边的支柱。它们是结构所必需的,同时也使平面的其他部分可以自由地作为一个不间断的空间使用。
The correct supply of air and light is given by the combination of two factors: the shed roof and the central patio. The former guarantees diffused and uniform light throughout the day and the latter, thanks to its full height, is the true core of the construction. The building emerges as an introspective architecture, open inward like a Roman domus. The patio is the heart of the whole organism and the spot around which the plan generates: it is not a subtraction from the volume, but the space from which the building develops in a centrifugal way. The four corners present the only pillars in the building, except for the perimetral ones. They are necessary to the structure while leaving the rest of the plan free to be used as an uninterrupted space.






















Architects: Studio Bressan
Area : 4400 m²
Year : 2017
Photographs :Emanuele Bressan
Lead Architect : Andrea Bressan ,Anna Agostini
Executing Companies : EdilRodighiero, Nico Velo S.p.a, Termoidraulica Sbrissa S.r.l.
Category : Commercial building
Volume : 44.000 m3
City : Cittadella
Country : Italy