格林维尔项目涉及将Houthalen-Helchteren矿区现有的主楼翻新和部分修复为清洁技术产业的孵化器。该孵化器是清洁技术园区的一部分,最近为该园区起草了一份总体规划。清洁技术园区又是Houthalen-Helchteren中心重建计划的一部分,其中包括开发公园、住宅区和NAC。
Greenville involves the renovation and partial restoration of the existing main building of the Houthalen-Helchteren mine site into an incubator for the cleantech industry. The incubator is part of the Cleantech Campus for which a master plan was recently drafted. The Cleantech Campus is in turn part of a redevelopment plan for the centre of Houthalen-Helchteren, which among others comprises the development of parklands, a residential zone and the NAC.



我们的建议旨在加强前矿区和镇中心之间的关系。因此,它代表了该镇历史上的一个篇章的完成,同时确保了它在未来的地位。
Our proposal aims to strengthen the relationship between the former mine site and the town centre. As such, it represents the completion of a chapter in the town’s history, while securing for it a place in the future.

根据这一演变,孵化器北侧立面的整个宽度在底层被打开,并转化为一个入口大厅。尽管从建筑学上讲,后者从属于建筑东侧的历史性入口,但这种干预的目的是为了表达对市中心的 "第二面 "的创造。
In line with this evolution, the entire width of the northern façade of the incubator is opened up on the ground floor and converted into an entrance hall. Despite the fact that, architecturally speaking, the latter is subordinate to the historical entrance on the eastern side of the building, this intervention is nonetheless aimed at expressing the creation of a ‘second front’ facing the town centre.

对现有建筑的修改也是为了配合其作为孵化器的用途,并保证建筑内的现代和可持续的舒适性和便利性。
Modifications to the existing building are also made in line with its use as an incubator and in order to guarantee contemporary and sustainable comfort and convenience inside the building.

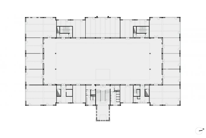
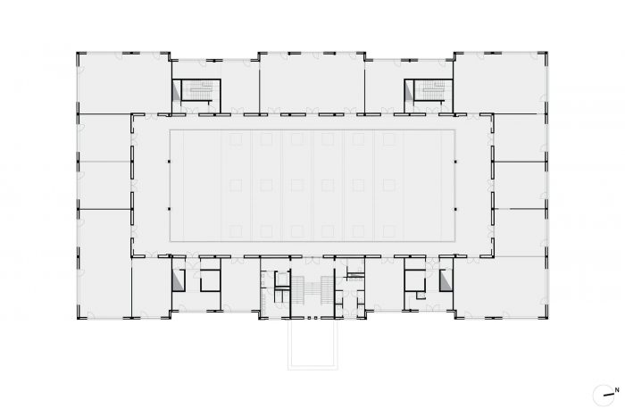
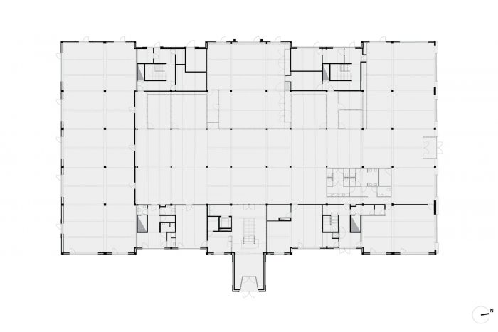
该计划包括四个新的核心,包含技术井和建筑内的流通。这些核心也构成了一个新的悬挂式屋顶结构的支柱,该结构在容纳技术设备的同时,实现了一个引人注目的中央中庭。围绕着这个位于二楼和三楼的中庭,历史上的办公室被改造成现代设施,并最大限度地保留了现有元素的特征。中庭也将被修复。
The plan includes four new cores which contain the technical shafts and circulation within the building. These cores also form the struts for a new, suspended roof construction which houses the technical equipment while enabling a dramatic central atrium. Around this atrium, which is located on the second and third floors, the historical offices are converted into contemporary facilities with maximum conservation of the character of the existing elements. The atrium is also to be restored.


底层在过去也有更多的工业特征,将被内部剥离并被改造成接待处、会议室、访客中心、展览空间和接待设施的空间。
The ground floor, which also had a more industrial character in the past, is to be internally stripped and converted into space for a reception, meeting room, visitors’ centre, exhibition space and hospitality facilities.



















Architects: HUB
Area : 6500 m²
Year : 2012
Photographs :Ilse Liekens
Country:Belgium