Greenwood Semi是由AM_A开展的一项小型改革项目 :多伦多(加拿大)的Anya Moryoussef Architect。新设计为整个底层提供了流动性,空间保持物理连通,同时保持了原爱德华时代房屋的特色和隐私。
在木框架中进行了一系列干预,并确定了这个层次的新空间,由起居室,餐厅,厨房和卫生间占据。装修也被用来引入一系列“视觉标志”(例如在成为新家具的一部分时,成型件变成现代件的护墙板)
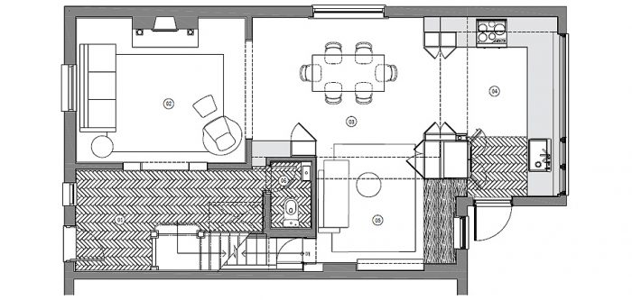
Greenwood Semi is a small reform project carried out by AM_A: Anya Moryoussef Architect in Toronto (Canada). The new design provides fluidity to the entire ground floor, where the spaces remain physically communicated, while maintaining the character and privacy of the original Edwardian house.
A series of interventions made in wood frame and define the new spaces of this level, occupied by the living room, the dining room, the kitchen and a toilet. The renovation has also been used to introduce a series of "visual signs" (such as the wainscoting with moldings turned into a more modern piece at the time it becomes part of the new furniture) and the "holes" between the rooms to join the old and the new.









Design: AM_A: Anya Moryoussef Architect.
Project: Greenwood Semi.
Location: Toronto (Canada).
Completed: 2018
Contractor: Ripple Projects.
Carpenter: Renca + Heilimo Inc.
Slate floors: Ardoise du Brésil de Céragrès.
Wood floors: Nice collection in Neue Floors oak.
Painting: Inchyra Blue (accent) and Dimyity (chair rail) by Farrow & Ball, and Snowbound by Sherwin Williams (walls).
Carpentry / joinery: custom design by the architect.
Materials: painted DM, Fenix NTM countertops and bleached oak veneer.
Lighting: Surf collection by Sistemalux, and suspension lamps Nelson Saucer Bubble by Hermann Miller and Amp by Normann Copenhagen.
Windows and doors: Lepage Millwork Windows & Doors.
Photographs: Scott Norsworthy.