BERG + KLEIN在荷兰鹿特丹Hoek van Holland的沙丘上设计了一个景观阁楼。H别墅的基本理念是要有一个开放的平面图,一个景观,以及有限但非常具体的空间。
BERG + KLEIN designed a loft in the landscape in the dunes of the Hoek van Holland, Rotterdam, the Netherlands. The basic idea of Villa H was to have an open floor plan, a view, and limited but very specific spaces.



在设计过程开始时与客户的讨论中,很明显,他有真正的野心,要创造适合他个人规模的建筑。BERG + KLEIN和客户讨论了建筑和设计,参考了来自智利、墨西哥和巴西的设计。在美丽的风景中结合混凝土、木材和天然石材,从一开始就指导了设计。
In the discussions with the client in the beginning of the design process, it became clear that he had true ambitions to create architecture on a scale that fits him personally. BERG + KLEIN and the client talked about architecture and design with references coming from Chile, Mexico, Brazil. Combining concrete, wood and natural stone in a beautiful landscape guided the design from the onset.

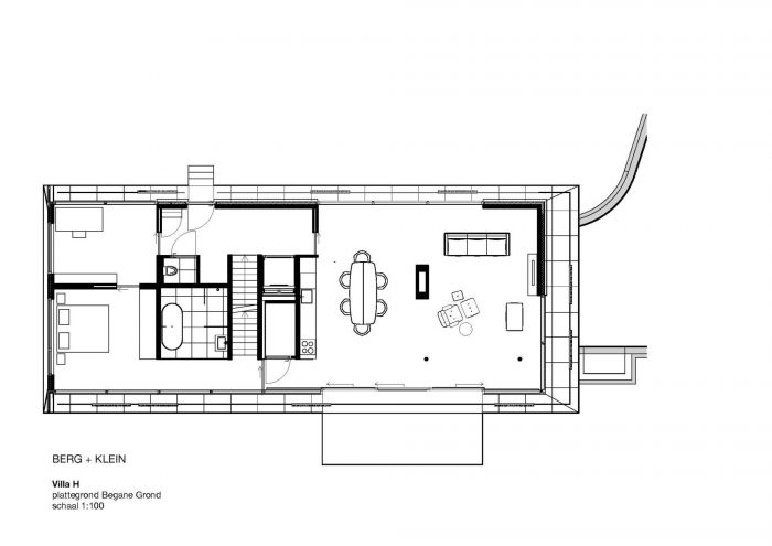
H别墅是一个水平设计,只有一个垂直元素,即两面混凝土墙之间的楼梯,连接着地下空间、腹部空间和屋顶露台。设计的重点是定制空间的组成和精确尺寸;花园中的露台可以看到沙丘森林的远景,带壁炉的客厅,作为经典前庭的入口。对设计来说,重要的是房屋的悬臂式边缘。他们给它一个水平的衔接,并在地板和天花板之间的景观框架。
Villa H is a horizontal design with one vertical element, a staircase in between two concrete walls that links the sous-terrain, the bel-etage, and the rooftop terrace. The dedication in the design has been on the composition and exact dimension of tailor-made spaces; the terrace in the garden with a long view to the dune forest, a living room with a fireplace, the entrance as a classic vestibule. Important for the design are the cantilevered edges of the house. They give it a horizontal articulation and frame the landscape between the floor and the ceiling.



房子的建设80%是在现场成型的混凝土。地面的墙壁和楼梯两边的垂直墙壁是暴露的混凝土。为了使九米高的承重墙有最好的混凝土成型效果,现场制作了一个水平木模。墙体是水平成型的,后来利用两台起重机,放置在房子的中心。
The construction of the house is 80% concrete molded on site. The walls of the sous-terrain and the vertical walls at both sides of the staircase are exposed concrete. To have the best possible result of concrete molding for the nine meters high bearing walls, a horizontal wooden mold was made on site. The walls were molded horizontally and later, with the use of two cranes, placed in the center of the house.

该设计是一种 "玻璃屋 "类型,有一个通往花园的开放的外墙。建筑师和客户决定采用大型的木质框架,创造一个温暖的氛围。框架是由着色的西部红柏制成。框架的规模在大多数情况下是2米30宽,3米高。在露台上,可以看到附近森林的最长的视野,其中三个框架可以滑开。这创造了一个近7米的开口,使客厅与周围的花园融为一体。
The design is a 'glass-house' typology with an open facade to the garden. The architects and the client decided to have large-scale wooden frames, creating a warm atmosphere. The frames are made from stained Western Red Cedar. The scale of the frames is in most cases 2 meters 30 wide and 3 meter high. At the terrace, which is positioned to have the longest possible view to the forest nearby, three of these frames can slide open. This creates an opening of almost 7 meters, which blends the living room with the surrounding garden.


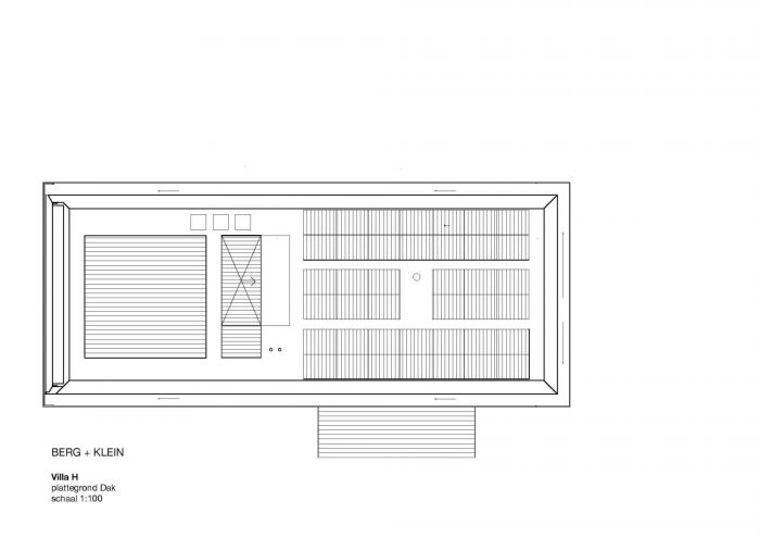
在悬臂式屋顶和地板之间,沿着房子的整个周边滑动的木制布里斯-索莱尔为需要的地方提供遮阳,并为开放的浴室和卧室提供隐私。房子利用了可持续的基础设施,包括自然通风、屋顶植被和太阳能电池以及空气驱动的热泵。
建筑师与客户在室内设计方面紧密合作。目的是创造一个开放和温暖的室内环境,为客户量身定做。他自己关于室内和家具选择的想法在很大程度上受到了别墅设计过程的启发。H别墅的家具选择包括Cassina、Vitra和Flos以及Eames和Rietveld的椅子。
Wooden Brise-soleils that slide along the entire perimeter of the house in between the cantilevered roof and floor provide shade where needed plus privacy to the open bathroom and bedroom. The house makes use of sustainable infrastructure with natural ventilation, a rooftop with vegetation and solar cells and an air-driven heat pump.
The architects worked closely together with the client on the interior design. The aim was to create an open and warm interior, tailor-made for the client. His own ideas about the interior and the selection of furniture were very much inspired by the design process of the Villa. The furniture selection in Villa H includes among others Cassina, Vitra, and Flos with Eames and Rietveld chairs.

















Architects: BERG + KLEIN
Area : 269 m²
Year : 2017
Photographs :Christian Richters
Manufacturers : Mosa, Solarlux, Aesy Liften, Cassina, Eames, Flos, Saint-Gobain, Bellfires, Solar Frontier
Lead Architects : Rogier van den Berg, Heidi Klein
Building Physics : BouwNext, Ben Hartman, Thomas van Helden
Garden Design And Rooftop Vegetation : Monster, Allure Tuinen
Structural Engineering : B2CO, Richard Fielt
Subcontractor Concrete : De Hilster Betonwerken, ‘s Gravenzande
Electrical Installations : Elektravon, P.Tangel, Naaldwijk
Interior Design : Heidi Klein, Rogier van den Berg in collaboration with P. Hupkes
Contractor : Zwarts Bouwbedrijf, Naaldwijk
Building Physics And Bim : BouwNext, Ben Hartman, Thomas van Helden
Natural Stone Façade : Van Der Mijle Natuursteen, Dordrecht
Technical Installations : ‘s Gravenzande, J. van Dijk, Schwagermann
Management : Inventief Bouwmanagement, H.Koornneef, P. Hupkes, Monster
Fixed Interior Furniture (Cupboards) : Woduro, ‘s Gravenzande
Wooden Floors : Van Den Dongen Parket, Goes
Client : P. Hupkes
BIM : Ben Hartman, Thomas van Helden, BouwNext
City : Hook of Holland
Country : The Netherlands