Haines Street是Foomann董事Jamie的家,随着他的家庭不断壮大而发展,同时尊重其1970年代的起源。杰米在2013年首次翻新了房子,更新了围栏、花园和内部,合并了房间,以创造更大、更实用和更轻的空间。现在有了两个年幼的孩子,杰米又增加了一层,容纳了第三间卧室、第二间浴室和屋顶平台,使一家人可以长期住在这所房子里。作为一名学生,杰米为Morris Pirrotta建筑事务所的董事Mike Morris工作,他在1970年设计了原来的北墨尔本房子。这样一来,尽管已经过去了半个世纪,但这次改建给人以合作的感觉,因为Foomann以类似的现代主义精神对待建筑。
Haines Street, the family home of Foomann director Jamie, has evolved with his growing family while being respectful of its 1970s origins. Jamie first renovated the house in 2013 to update the fences, gardens, and interior, consolidating rooms to create larger, more functional, and lighter spaces. Now with two young children, Jamie has added another level, accommodating a third bedroom, second bathroom, and rooftop deck, allowing the family to stay in the house long-term. As a student, Jamie worked for Mike Morris, a director of Morris Pirrotta Architects, who designed the original North Melbourne house in 1970. In this way, the alteration feels collaborative despite the half-century, as Foomann approaches architecture in a similar modernist spirit.




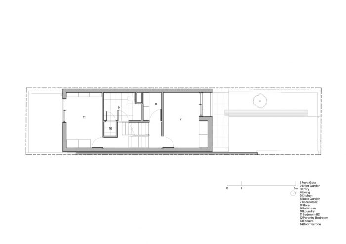
考虑到场地的限制,最好的扩展方式是向上延伸,新的一层将楼层空间从80平方米增加到100平方米。(请注意,自2019年以来,澳大利亚新建住宅的平均面积为三间卧室和235.8平方米)。随着空间的上升,材料变得更轻,设计更简洁,提供了从底层到顶层的不同感觉和能量。穿过分层的中央循环有利于逐渐过渡,新旧材料的微妙搭配和模糊也是如此。翻新后的房子拥有了所有权,但1970年代的根基提供了一个可见的框架。
The best way to extend was up given the site constraints, with a new level increasing the floor space from 80 to 100 square meters. (Note that the average size of a newly built home in Australia, since 2019, is three bedrooms and 235.8 square meters). The materials become lighter and the design more pared back as the spaces ascend, offering a different feel and energy from the ground to the top floor. The central circulation through the split levels facilitates a gradual transition, as does the subtle pairing and blurring of the old and new materials. The renovation takes ownership of the house, but the 1970s roots provide a visible framework.


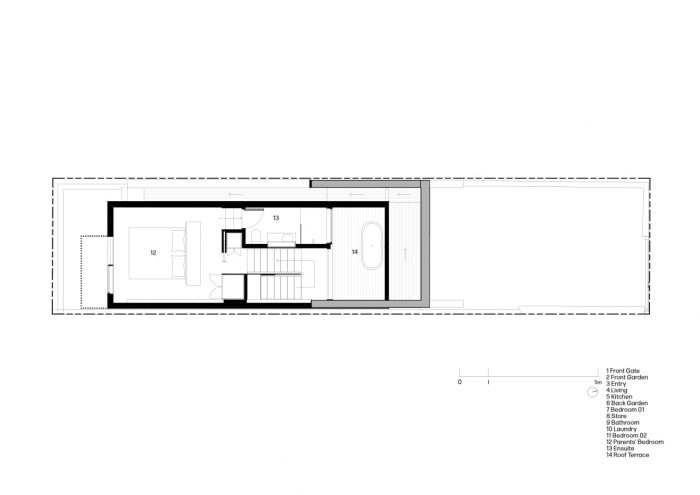
在入口处,现有木梁中的新木棉板提供了各层之间的声学衰减,而钢制细木工板则隐藏了照明。下沉式厨房和餐厅,现在合并成一个空间,用新的青石地板和长期合作者Kyran Starcevich的大型定制桌子作为基础。分开的第二层包含两间卧室和一间浴室,新的分开的第三层包含主卧室、浴室和一个带户外浴室的屋顶平台。
At the entry-level, new wood-wool panels amid the existing timber beams provide acoustic attenuation between levels while steel joinery conceals lighting. The sunken kitchen and dining room, now consolidated into one space, are grounded with new bluestone floors and a large custom table by long-time collaborator Kyran Starcevich. The split second level contains two bedrooms and a bathroom, with the new split third level containing the main bedroom, bathroom, and a rooftop deck with an outdoor bath.


海因斯很高,从各方面看都很突出。新层采用热改性木材,表面涂有保护层,加速了银化过程。新层的目的是让人感到神秘。简约的形式和细节设计掩盖了复杂的阶梯式加层以及太阳能电池板和其他设备。屋顶平台面向街道,但却是一个向天空和星星开放的私人空间,为游客创造了一个惊喜。
Haines is tall and visually prominent from all sides. The new storey is clad in thermally modified timber finished with a protective coating that accelerates the silvering process. The new level is intended to be enigmatic. The minimalistic form and detailing conceal the complexity of the stepped addition as well as solar panels and other equipment. The rooftop deck faces the street but is a private space open to the sky and stars, creating a surprise for visitors.

这个项目被Pangolin Associates评估为碳中性。体现在能源(材料、产品和建筑)上的排放已被完全抵消,预计通过房屋的使用(整个生命周期)的排放将被太阳能电池组抵消。海因斯的紧凑规模,特别是新的卧室、浴室和平台,通过对比例和方向的关注,成为一种资产。采光好、通风好、功能强,这些空间由于设计成适合用途的尺寸而感觉更好。
This project is assessed as carbon neutral by Pangolin Associates. Emissions from embodied energy (materials, products, and construction) have been fully offset, and the projected emissions through the use of the home (full life cycle) are forecast to be more than offset by the solar array. The compact scale of Haines and particularly the new bedroom, bathroom and deck is an asset through attention to proportion and orientation. Light-filled, airy and functional, these spaces feel better to occupy as a result of being designed at a size to suit the purpose.








Architects: Foomann Architects
Area : 100 m²
Year : 2022
Photographs :Willem Dirk Du Toit
Lead Architects : Jo Foong, Jamie Sormann
Builder : Marven Construction
Energy Consultant : Urban Digestor
Engineering : Astleigh Consulting Engineers
City : Melbourne
Country : Australia