一个废旧的车间形成了一个单户住宅的框架。现有的建筑包括一个双高的体积和一个相邻的棚子。这两个结构都被完全保留下来,而新的体量则成为该地块上慷慨的组合的一部分。
A ruinous workshop forms the framework for a single-family house. The existing construction consists of a double-high volume and an adjoining shed. Both structures are fully preserved and the new volume becomes part of the generous ensemble on the site.






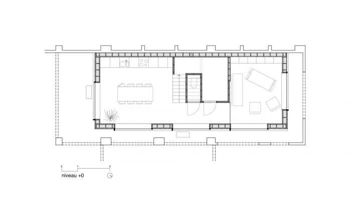
棚屋的屋顶被打开,宽敞的体积成为一个亲密的围墙花园。相邻的体量被剥离了所有的内墙和地板,一个新的木屋被建在现有的板块上。
The roof of the shed is opened up, the spacious volume serves as an intimate walled garden. The adjacent volume is stripped of all inner walls and floors and a new wooden house is built on top of the existing slab.

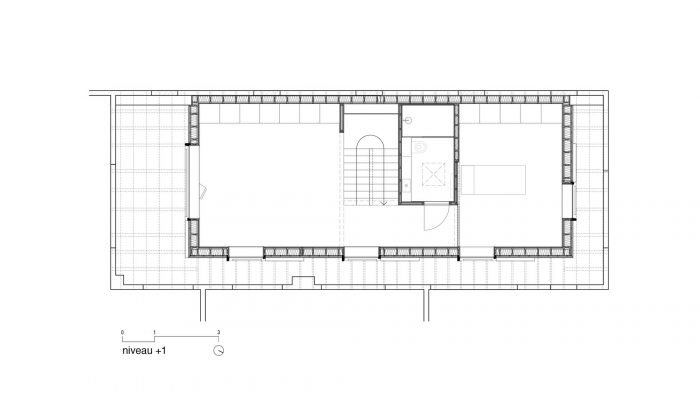
通过将新的体量与旧的结构断开,现有的墙壁成为住宅和雄伟的室外空间之间的屏障。新房子由两层楼组成,每层有两个房间,有一个中央服务核心。
By disconnecting the new volume from the old structure, the existing walls work as a screen between the home and the imposing outdoor spaces. The new house consists of two floors that each has two rooms with a central serving core.

一个最小的平面图,可以通过棚子的外部空间的覆盖来扩展。这个合理的计划和现有的细木工制品之间产生了激烈的对话。
A minimal floorplan that can be expanded by the covered outside spaces of the shed. An intense dialogue is created between this rational plan and the existing joinery.














Architects: RAAMWERK
Area: 120 m²
Year: 2020
Photographs: Stijn Bollaert
Manufacturers: Accoya
Lead Architects: Freek Dendooven
City:Drongen
Country:Belgium