屋顶在肯定和接受他人的 "空间宽容 "方面发挥了重要作用。广阔的屋顶是仁慈的,默默地邀请人们进入并注视着他们。同时,它在物理上被移除,有点沉默寡言。我们对屋顶及其矛盾的处置进行了深思熟虑,它与人体保持着充足的空间,却又慷慨地拥抱着我们。
The roof plays a significant role for a “tolerance of space” that affirms and accepts others. The expanse of the roof is benevolent, silently inviting people in and watching over them. At the same time, it is physically removed and a bit reticent. We have given much thought to the roof and its ambivalent disposition where it maintains an ample space from a human body yet generously embraces us.





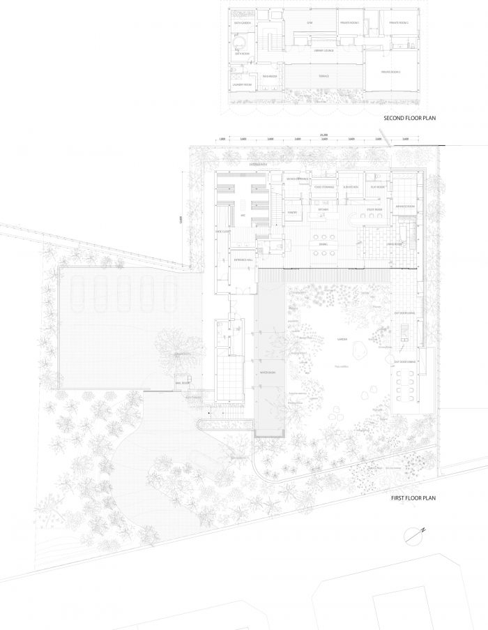
该场地位于一个住宅区,周围有丰富的绿色植物,沿着山裙,向南倾斜,有美丽的海景。客户经常邀请许多客人,希望将居住-用餐-厨房和学习空间作为一个大房间,同时每个房间都面向朝南的花园。我们决定将主翼放在北侧的高地上,为花园创造一个大面积的空间,并将其与东翼和西翼包围起来,形成一个U型布局。西翼包括通道和独立的日本房间,而东翼是户外生活-用餐区,支持庭院中的活动。
The site is in a residential area surrounded by abundant greenery along the mountain skirt, and slopes southward and has a beautiful view of the sea. The client often invites many guests and wished to make living-dining-kitchen and study spaces as one large room, while each faces a south-facing garden. We decided to place the main wing on the elevated ground on the north side to create a large area for the garden, and envelop it with east and west wings, resulting in a U-shaped layout. The west wing comprises the approach and detached Japanese room while the east wing is the outdoor living-dining area that supports activities in the courtyard.

为了防止空间感觉过于庞大和疏离,我们被一个桶状拱顶所吸引,在这个拱顶下,人们可以感觉到他们就像被居住在这个空间里的人看管着。拱顶通常被用来创造更高的高度和更宽的跨度。然而,在这个项目中,我们打算利用拱顶创造的独特的声音和照明环境,并通过漂浮在上面松散地分割空间。跨度被设定为3.64米,这是即使在放置了包括餐厅、客厅和厨房在内的房间的家具后,仍能感觉到是一个房间的最小单元。为了获得适当的舒适感,我们将柱状曲线的高度设定为0.91米,而天花板则在客户允许的范围内保持较低。
To prevent the spaces from feeling too vast and detached, we were intrigued by a barrel vault roof, under which people could feel as if they are being watched over by just residing in the space. Vaults are generally used to create a higher rise and wider span. For this project, however, we intended to harness the unique sound and lighting environment the vault creates, and to loosely segment the space by floating it above. The span was set to be 3.64m, the minimum unit that could be sensed as a room even after placing furniture for the rooms including the dining, living, and kitchen. We set the rise of the catenary curve at 0.91m for a proper coziness, while the ceiling was kept as low as the client allowed.

桶形拱顶也有让人意识到院子的效果。由于它们的形式,我们能够将120毫米厚的石板悬挑到院子里3.1米。这使我们不仅能够创造一个大型的半户外空间,而且还能像望远镜一样单独框定桶形拱顶以外的美丽景色,将露台的近景、庭院的中景以及城市和大海的远景联系起来。
The barrel vaults also have the effect of making one conscious of the courtyard. Because of their form, we were able to cantilever 120mm-thick slabs 3.1m into the courtyard. This enabled us to not only to create a large semi-outdoor space, but also to individually frame the beautiful view beyond the barrel vaults like a telescope, linking the close-range view of the terrace, middlerange view of the courtyard, and distant view of the city and sea.

家庭聚会的声音回荡着,小拱顶的木质天花板反射的光线温柔地环绕着这个空间。这类似于在山洞中感受到的亲密感。在漂浮在上面的半山洞空间下,居住者的动作和声音自然变得更小。这个空间成为你身体的延伸,你感觉到你似乎总是在空间的中心。在当今不确定的社会中,我们相信这与 "空间的宽容 "有关,它将人们联系在一起,并提供一种受欢迎的感觉。广阔的大空间和对比强烈的私密空间在这个房子里共存。
The sound of family gathering reverberated and light reflected by the small vaulted wooden ceiling gently surround the space. This is similar to the intimacy felt in a cave. Under a half-cave space floating above, movements and voices of dwellers naturally become smaller. The space becomes an extension of your body, and you feel as if you are always in the center of the space. Amidst today’ s uncertain society, we believe this relates to the “tolerance of space” that ties people and provides a sense of feeling welcomed. An expansive large space and contrasting intimate space coexist in this house.
























Architects: Hiroshi Nakamura & NAP
Area : 2389 m²
Year : 2018
Photographs :Nacasa & Partners Inc.
Manufacturers : AutoDesk, BO&CO., Daiko, ASPLUND, Linea Talara, NINGURU, Robert McNeel & Associates, Yoko Ando Design
Lead Architects : Hiroshi Nakamura
Construction : Kasatani
Engineering : Mitsuda Structural Consultants
Landscape : SOLSO
City : Minato City
Country : Japan