大约90年前,在德黑兰中心建造了六座建筑,形成了德黑兰唯一的对称街道。Lolagar巷的这些剩余建筑是第一巴列维时代的一些最佳建筑范例,当时现代建筑开始在德黑兰出现。最初,这六座建筑都是住宅,但随着时间的推移,就像德黑兰市中心的许多其他建筑一样,它们都无人问津了。汉娜项目,包括一个酒店、餐厅、画廊和多功能空间,是在这些建筑中的一个设计的,目的是为Lolagar巷和德黑兰的城市中心重新带来活力。
Around 90-years ago, six buildings were constructed in the center of Tehran, creating its one and only symmetrical street. These remaining structures on Lolagar Alley are some of the best examples of architecture from the First Pahlavi era, a time when modern architecture was beginning to appear in Tehran. Initially all six of these buildings were residential, but over time, like many other buildings in downtown Tehran, they were left unoccupied. Hanna Project, which includes a hotel, restaurant, gallery, and multipurpose spaces, was designed in one of these buildings, with the intention of bringing life back to Lolagar Alley and Tehran’s city center.





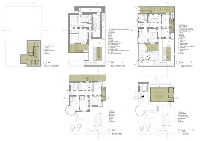
设计的部分意图是将建筑与Lolagar巷重新连接起来,但这次有了更多的居住者。因此,在建筑周围设计了新的层次,为了尊重原来的结构,它邀请用户在这个历史建筑周围和内部移动。
Part of the design intention was to reconnect the building to Lolagar Alley, but this time with more occupants. As such, new layers were designed around the building and in deference to the original structure, it invite users to move around and inside this historic building.


凭借其简单的形式和柔和的色彩,这些新的体量容纳了建筑的一些新功能,同时也使用户在不同的高度和不同的角度与建筑接触。他们创造的新路径给了建筑周围各种流通路径。这些新的层次是用现代材料建造的,虽然它们与建筑的原始材料形成了对比,但它们试图保持微妙和不被人发现。新旧两层的并置向居住者展示了建筑的历史以及修复的努力。
With their simple forms and muted colors, these new volumes accommodate some of the building’s new functions, while also putting the user in contact with the building at different heights and from different perspectives. The new pathway they create gives variety of circulation paths around the building. These new layers are constructed using contemporary material, and while they contrast the building’s original material, they attempt to remain subtle and less seen. The juxtaposition of new and old layers presents its occupants with the building’s history as well as efforts for its restoration.



新的体量创造了这个项目的花园、凹陷的庭院、餐厅的一部分和画廊。这些新的体量也渗入到原来的建筑内部,将新的功能带入内部,同时保持其原有的体量和结构。东立面增加的中性体量被用来容纳酒店的浴室,并上升到屋顶,形成酒店的多功能空间。这个空间提供了周围地区的全景,同时在街道上保持隐蔽。在扩建工程中,加入了金属框架,以减少内部和外部之间的界限。这些框架界定了画廊的入口,并使画廊和Lolagar Alley之间的边界透明。这些框架也被用在建筑的外墙上,为酒店客人提供更多的光线和视野。
The new volumes create the project’s garden, recessed courtyard, part of the restaurant, and gallery. These new layers also seep inside the original building, bringing new functions inside, while maintaining its original layers and structure. An added neutral volume on the east elevation is used to house the hotel bathrooms, and rises to the roof to create the hotel’s multi-purpose space. This space provides a panoramic view of the surrounding areas, while remaining hidden from street level. In the extensions construction metal frames were added to reduce the boundary between inside and outside. These frames define the gallery entrance, and make the border between the gallery and Lolagar Alley transparent. These frames are also used on the building’s façade to provide more light and views to the hotel guests.



由于该建筑多年来无人居住,其结构有很多损坏,这使得其结构加固相当复杂。混凝土墙和连续的混凝土板、柱子和金属桁架被添加到现有的结构中来加固。
Because the building was left unoccupied over the years, there was much damage to its structure, which made its structural reinforcement quite complex. Concrete walls and continuous concrete slabs, columns, and metal trusses were added to reinforce the existing structure.




混凝土板的作用是结构性的,同时也是室内地板的成品材料。剪力墙和金属结构也被暴露出来,以使建筑的访客熟悉其翻新过程。
The concrete slabs serve a structural purpose and are also the finished interior flooring material. Shear walls and metal structures are also left exposed to familiarize the building’s visitors with its renovation process.


汉娜项目试图让人们回到德黑兰的中心,并让他们重新认识废弃的建筑。新增加的层次是其时代的产物,帮助建筑适应现在和未来的用户,同时也展示了其历史建筑的光辉。
Hanna project attempted to return people to the center of Tehran, and reacquaint them with abandoned buildings. New added layers that are a product of their time, help the building accommodate users now and in the future, while also displaying the glory of its historic architecture.







































Architects: Persian Garden Studio
Area : 1200 m²
Year : 2018
Photographs :Afshin Ghaderpanah
Lead Architects : Mahsa Majidi
Landscape : Persian Garden Studio, Fantech
Clients : PG Group
Engineering : Behnrang Bani Adam, Kaveh Moadi, Mohsen Tahayori, Iman Zeynali
Consultants : Behnrang Bani Adam, Kaveh Moadi, Mohsen Tahayori, Iman Zeynali
Collaborators : Zeeen
Design Team : Anousheh Ahmadi, Danial Akhavian, Pantea Parhami, Naeime Beigi, Mehdi Nikkhah, Mina Nabavi, Peyman Tajik
City : Teherán
Country : Iran