翻新Haratian之家是一个具有挑战性的项目,面临的挑战包括:建筑面积小,所需空间种类多,隐私性,以及为雇主创造安全感。
Renovating the Haratian House was a challenging project, with challenges such as the small size of the building, the variety of required spaces, privacy, and creating a sense of security for the employer.



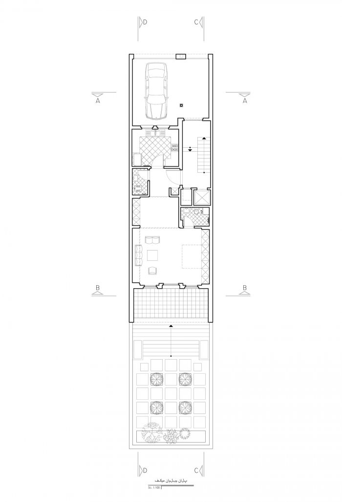
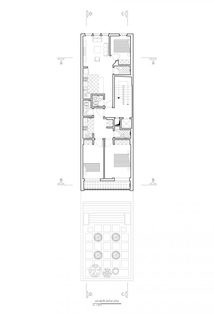
这些挑战使得设计过程朝着最大限度利用空间的方向发展。根据客户的愿望,即提供一个住宅单元、一个访客单元和一个看门人单元,空间划分的方向是考虑在一楼和一楼的居住空间,这样家庭就可以完全接触到院子,并且较少暴露在外面,而访客单元和看门人单元则考虑在二楼。住宅空间被分为两部分:与院子互动的房屋私人空间和与通道相邻的公共部分。考虑到家庭的敏感性,我们考虑了一些解决方案,以尽可能地控制开口并解决隐私问题。
These challenges made the design process towards the maximum use of space. According to the client's wishes, i.e., to provide a residential unit, a guest unit, and a janitor unit, the space division went in the direction of considering the living space on the ground floor and the first floor so that the family has full access to the yard and is less exposed to and the guest’s unit and janitor’s unit were considered on the second floor. The residential space is divided into two parts: the private spaces of the house that interact with the yard and the public parts that are adjacent to the passage. And considering the family`s sensitivities, solutions were considered to control the openings as much as possible and solve the privacy.


为了解决这个问题,Fakhromadin砖块被用在各楼层的露台前,以控制来自南方的光线和邻居的视线,并根据露台后面的功能,即厨房和家庭的房间,控制露台的空间。为了便于使用,院子里的眼球被放得很深,这样家人就可以在院子里,远离邻居的目光,这样家人就可以在白天花更多的时间。院子的墙被重建,并被加高,以控制邻居的视线。设计中考虑的另一点是,每个空间的设计都应该包括一个开口,例如,北方开口的多样性表明与之相关的空间的不同。一楼的开口与住宅单元的大厅部分有关,二楼的开口则与看门人部分有关。
And to solve it, Fakhromadin brickwork was used in front of the terraces of the floors to control both the light from the south and the view of the neighbors and the space of the terraces according to the functions behind it, i.e. the kitchen and rooms for the family. In order to be used, the eyvan of the yard was placed deep so that the presence of the family would be possible in it, away from the eyes of the neighbors, so that the family could spend more time in it during the day. The walls of the yard were reconstructed and executed higher to control the view of the neighbors. Another point that was taken into consideration in the design was that each space should include an opening with its design, and for example, the diversity of the northern openings indicates the difference in the spaces associated with them. The openings on the first floor are related to the hall section of the residential unit and the openings on the second floor are related to the janitor`s section.


创造一种安全感是雇主最重要的要求之一,也是设计中最具挑战性的部分之一。它试图提供解决方案,使开口的穿透力不致丧失,同时给雇主带来安全感。为此,在金属栅栏的设计中考虑了一些规定。另一个挑战与停车场和院子底层的围栏有关,它必须既是可移动的又是保护性的。为此,栅栏的设计和实施方式是,它们在天花板下移动,以产生最少的干扰。
Creating a sense of security was one of the most important requests of the employer and one of the most challenging parts of the design. It tried to provide solutions so that the penetration of the openings is not lost and at the same time it gives the employer a sense of security. For this purpose, provisions were considered in the design of metal fences. Another challenge was related to the fences of the parking lot and the ground floor eyvan of the yard, which had to be both movable and protective. For this purpose, the fences were designed and implemented in such a way that they move under the ceiling to have the least amount of interference.


















Architects: archoffice | architecture & construction office
Area : 400 m²
Year : 2022
Photographs :Parham Taghioff
Manufacturers : Akhavan, Behrizan, Commax, Deland, Drizzl Radiator, Iran Radiator, Khorasan Electric, Mazandchoob Aria, Mazinur Illuminazione, SGP, Saran Manufacturers Group, Schniz, Soheil Brick
Lead Architect : AmirHossein Alavizadeh
Architect : Mahdi Hadipour
Project Manager : Davoud Alavizadeh
Mep & Hvac Consultants : Hesam SeyedHosseini
City : Tehran
Country : Iran