该方案分为两个街区,具有明确的垂直循环,为巴金镇中心创造了一个引人注目的新边缘,标志着从东部的成熟住宅区到西部罗丁河的更开放的景观的过渡。
Arranged in two blocks with expressed vertical circulation, the scheme creates a dramatic new edge to Barking town center marking the transition from the established residential neighborhood to the east to the more open landscape of the River Roding to the west.



该地块以前是一系列预制房屋的所在地,是战后临时住宅计划的一部分。这些房屋在20世纪70年代被拆除,留下一块孤立的土地,没有一个真正的目的或重点。虽然这不是最初设计方案的一部分,但里德-沃茨认为在整个场地重新建立联系是很重要的,使人们能够再次在这里活动。由此产生的总体规划引入了一条新的人行路线,为共享花园、公共开放空间和少量残疾居民的停车位确定了空间。
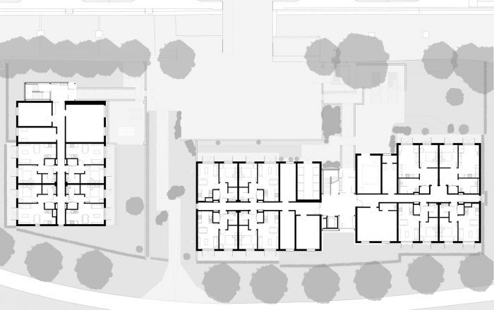
The site had previously been home to a series of prefabricated houses built as part of the progressive, post-war, temporary homes program. These were demolished in the 1970s leaving an isolated parcel of land without a real purpose or focus. While not part of the original brief, Reed Watts felt that it was important to re-establish connections across the site, allowing people to move through it once more. The resulting masterplan introduced a new pedestrian route that defined space for shared gardens, public open space, and a small number of parking spaces for disabled residents.


四层和六层的大楼分别位于这条新路线的北面和南面,北面的大楼与另一个大楼呈90度。这种安排形成了对景观花园的封闭,并有助于减少开发对邻近房产的影响。
The four and six-storey blocks sit to the north and south of this new route respectively, with the northern block sitting at 90 degrees to the other. This arrangement creates closure to the landscaped gardens and helps to reduce the impact of the development on neighboring properties.


每个街区都可以通过自己的围墙花园进入。这些空间包括草地种植,以取代正式的草坪,以及供居民社交的区域,有专门的座位区和升高的分配床。除了这些外部空间,建筑内还提供了一个共享的花园房间,居民可以在这里举行活动、小组研讨会,如果在家里工作,也可以作为自己客厅的替代。
Each of the blocks is accessed through its own walled garden. These spaces include meadow planting in place of formal lawns as well as areas for residents to socialize together with dedicated seating areas and raised allotment beds. In addition to these external spaces, a shared garden room is provided within the buildings where residents can come together for events, group workshops, and as an alternative to their own living rooms if working from home.



虽然建筑的形式和体量在项目初期就已确定,但施工方法和外墙材料在这个过程中不断变化。最初的计划是一个完全预制的方案,设计发展到使用轻质钢架板,而外墙则发展到包括一个带有砖块的绝缘的渲染。这些变化需要设计团队、规划师、承包商和客户之间的密切协作。
While the form and massing of the buildings were established quite early in the project, the construction methods and façade materials evolved during the process. Initially planned as a fully pre-fabricated scheme, the design developed to use light-gauge steel frame panels while the façade evolved to include an insulated render with brick slips. The changes required close collaboration between the design team, planners, contractors, and clients.

Reed Watts与砖块制造商合作,开发了一个调色板,以连接邻近建筑的温暖的赤土色和水蓝色。整个立面颜色的微妙变化有助于打破体量,并创造一种 "质感",尽管立面本身是相对透明的。与立面的坚固性相比,楼梯核心区是一个轻盈、通风的空间。通过在铸造玻璃包层内开辟出的空间,居民可以直接在视觉上与花园相连接,从高处可以看到伦敦的全景。
Working with the brick slip manufacturer Reed Watts developed a color palette to connect to the warm terracotta and buff tones of neighboring buildings. The subtle changes in color across the façade helps to break up the massing and to create a sense of ‘texture’ even though the façade itself is relatively sheer. In contrast to the solidity of the elevations, the stair cores are light, airy spaces. By creating openings within the cast-glass cladding, residents have a direct visual connection to the gardens with panoramic views across London from the higher levels.

该方案提供了78套一室一厅的住宅,包括两套可以适应轮椅的住宅。它代表了里德-沃茨迄今为止最大的项目,并由当地的首次购房者全部入住。
The scheme provides 78 one-bedroom homes, including two wheelchair-adaptable homes. It represents Reed Watts’s largest project to date and it is fully occupied by local first-time buyers.












Architects: Reed Watts Architects
Area : 4092 m²
Year : 2021
Photographs :Fred Haworth
Manufacturers : Hansgrohe, Pilkington, Cedral Click, DAD, Forterra, Howdens, IdealCombi, Intelligent Steel Solutions, Premdor, Public Extra range, Selnova Range, Simpsons Design, Sto - StoTherm Mineral M Drained Rotofix Plus Sto, Watts Group
City:LONDON
Country:UNITED KINGDOM