这个小木屋被称为 "帽子屋",因为它与瑞典的一个关于三个住在帽子里的孩子的童话故事很相似,它隐藏在瑞典山区的一个白桦林中,就在树线以下,脚下是一片草地。
Dubbed The Hat House, for its resemblance to a Swedish fairytale about three children living in a hat, this small cabin lies hidden in a birch forest in the Swedish mountains, just below the treeline and with a meadow underfoot.




在五月底一个异常温暖的周末,我和我的客户一起来到了这个地方:看到新发的白桦树叶的强烈绿色和几乎完全的寂静,我们的目标是找到一个地方来放置建筑。我们很快就找到了:一个自然形成的空地,远离森林道路,可以看到南部和西部的山脉和湖泊,东部有黄色的兰花在生长。
With a brief to house a family of five, a large fluffy dog, and lots of visitors, I traveled to the site with my clients on an unusually warm weekend at the end of May: met with that intense green of newly sprung birch leaves and nearly complete silence, our aim was to find a spot to place the building. We found it soon: a naturally formed clearing, withdrawn from the forest road, with views to the mountains and a lake to the south and west, and with yellow orchids growing in the east.



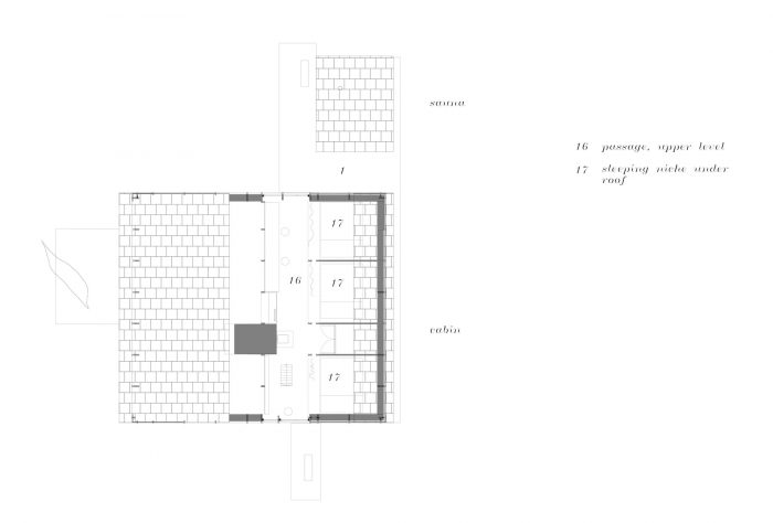
帽子屋建在一个建筑物必须很小的地方;占地面积只有100米,小屋的形式反映了这个地方的程序和缓坡:你在屋顶下睡觉,在下面洗澡,你在下面的几个台阶上可以看到湖。它的形状是由对温暖的需求和对庇护所的需求所告知的;以壁炉和烟囱为中心,它把帽子拉到耳朵上。
The Hat House is built in an area where buildings must be small; with a footprint of just 100 m sq, the cabin’s form mirrors the program and the gentle slope of the site: you sleep under the roof and bathe below, and you gather a few steps down where you can view the lake. Its shape is informed by the need for warmth and the need for shelter; centering around the fireplace and the chimney, it pulls its hat down over its ears.


帽子屋的设计是为了让人住进去,并能承受其环境。它的云杉地板会被滑雪靴和狗爪子刮伤,它的松木心包层会被堆积的积雪风化。这是一座强烈追随一年四季的房子;隆冬的微弱蓝光,新夏的爆裂绿色,以及秋山的缥缈黄光。
The Hat House is a house designed to be lived in and to withstand its setting. Its spruce floor will be scraped by ski boots and dog paws, its pine heart cladding be weathered by the piling of the snow. It is a house that intensely follows the seasons of the year; the faint blue light of midwinter, the bursting green of new summer, and the misty yellows of the autumn mountains.

小屋完全由木材结构制成:承重结构结合了胶合板和软木。外墙、屋顶和排水沟是用当地的心形松木包覆的,心形松木是一种从植物中提取的废品,可以改变木材细胞,使软木具有硬木特性。在内部,墙壁和天花板是用涂有白色油彩的云杉木板铺成的,以防止木材变黑,地板是端纹云杉块。
The cabin is entirely made of timber construction: the load-bearing structure combines gluelam and softwood. External walls, roofs, and gutters are clad with locally sourced heart pine impregnated with Kebony, a plant-derived waste product that modifies the wood cells and gives softwood hardwood characteristics. Internally, the walls and ceiling are lined with boards of spruce painted with white-tinted oil to prevent the wood from going dark, with floors of end-grain spruce blocks.














Architects: Tina Bergman Architect
Area : 95 m²
Year : 2020
Photographs :Jim Stephenson
Manufacturers : Brunner, Traryd, Velfac
Structural Engineer : Limträteknik
General Contractor : Byggbengt
City : Tänndalen
Country : Sweden