贝尔纳多-贝德建筑事务所使用当地的云杉、冷杉和榆木来装饰这个位于奥地利福拉尔贝格的乡村小屋的内部和外部。
Bernardo Bader Architects used locally sourced spruce, fir and elm to clad the interior and exterior of this rural cabin in Vorarlberg – Austria.



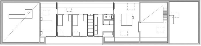
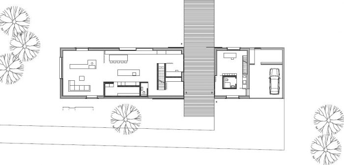
基于布雷根茨地区的传统房屋,这个两层楼的住宅有一个简单的矩形平面,有一个陡峭的山坡轮廓和一个穿过中间的木甲板。
Based on the traditional houses of the Bregenz district, the two-storey residence has a simple rectangular plan with a steep gabled profile and a wooden deck driven through its middle.

奥地利工作室Bernardo Bader Architects使用了60棵树来生产房屋所需的所有木材,并将浪费降到最低。除了墙壁,木材还提供了门、地板和一些家具的材料。
Austrian studio Bernardo Bader Architects used 60 trees to produce all the wood needed for the house with minimal waste. As well as the walls, the timber provided material for doors, flooring and also some of the furniture.

建筑的结构是混凝土,在一些墙壁和天花板上显示出来,与木质表面的浅色调形成对比。
The structure of the building is concrete, which reveals itself on a selection of walls and ceilings to contrast with the light tones of the wooden surfaces.

起居和用餐区占据了底层最大的一侧。一个烧木头的炉子创造了一个中央壁炉。
Living and dining areas occupy the largest side of the ground floor. A wood-burning stove creates a central hearth.

额外的加热是由地源热泵产生的。一个家庭办公室位于甲板的另一侧,旁边是一个可容纳两辆车的车库。卧室和儿童游戏室位于上面的楼层。小屋名为Haus am Moor,翻译为 “荒原上的房子",位于克鲁姆巴赫市镇附近。
Additional heating is generated from a ground-sourced heat pump. A home office sits on the other side of the deck, alongside a garage with room for two cars. Bedrooms and a children's playroom are located on the floor above. Entitled Haus am Moor, which translates as "House on the Moor", the cabin is situated near the market town of Krumbach.







Architects: Bernardo Bader Architekten
Area : 220 m²
Year : 2013
Photographs :Adolf Bereuter
Country:Austria