Havixbeck是一个靠近明斯特/西法伦的小村庄。靠近中心的场地是邻近公寓房的前花园区,居民没有使用。由于倾斜的地形和困难的建筑法规,它被长期出售。开发计划规定了建筑的立方体和要使用的材料。该设计符合所有的规定,但以现代的方式解释了传统的屋檐式房屋,作为一个抽象的、互锁的形状序列。这些形状按照传统的顺序被放置在一个混凝土基座上,顶部是一个轻质的屋顶结构,两边都是全玻璃的正面。这座房子被设计成一个有五层和一个车库的倾斜式建筑,与现有的地形完美地结合在一起。内部结构在外墙中以房间高的玻璃窗显现。
Havixbeck is a small village close to Münster/Westfalen. The site near the center is the former garden area of the adjacent apartment house, which was not in use by the inhabitants. Because of the sloping terrain and difficult building regulations, it was long for sale. The development plan set the cubature of the building and the materials to be used. The design fits all regulations but interprets the traditional gable roof house in a modern way as a sequence of abstract, interlocking shapes. These are - in traditional order - placed upon a concrete base building and topped by a light roof construction with fully glazed fronts to both sides. The house is designed as a spilt-level building with five levels plus a garage and fits perfectly into the existing terrain. The internal organsation is made visible in the facade with room-high glazings.



设计是基于边长为350厘米的2乘3的正方形。所有的主要房间都是一比一或一比二的比例。尽管在平面上有明确的组织,但该建筑开发了许多令人惊讶的空间,它同样是简单和复杂的,也是嬉戏和严格的。
The design is based upon two by three squares with a side length of 350 cm. All major rooms have the proportion of one to one or one to two. Despite the clear organisation in the plan, the building develops many surprising spaces, it is equally simple and complex, as well as playful as strict.

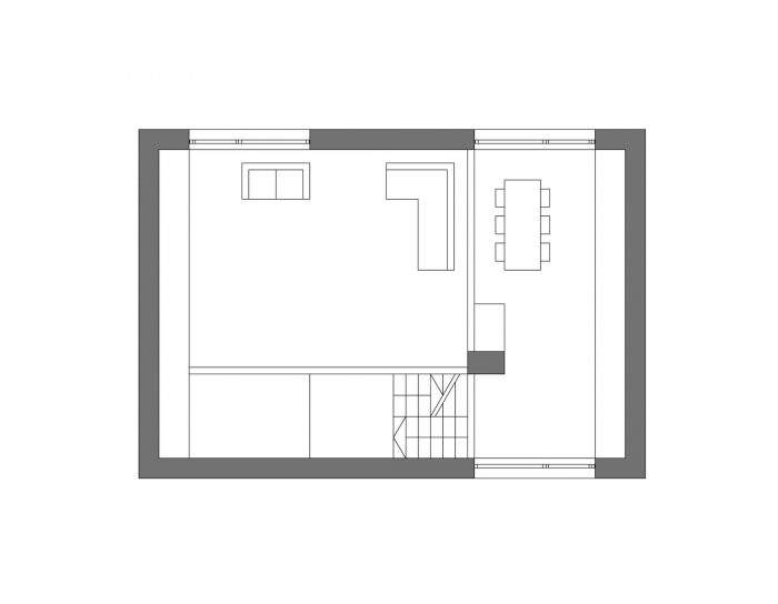
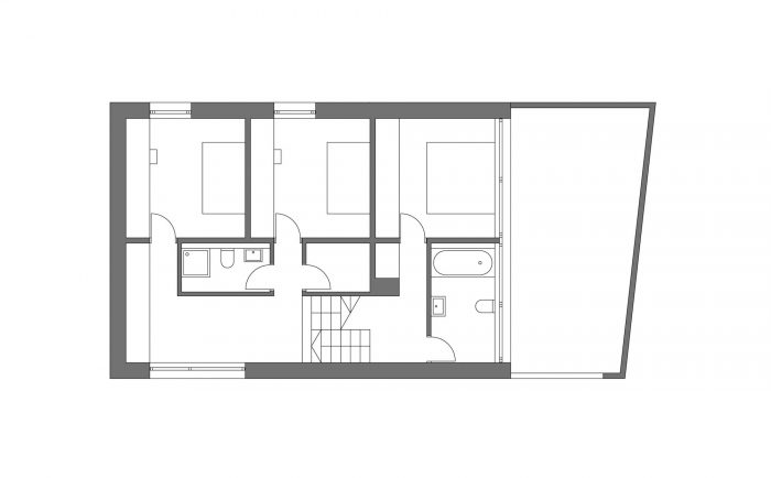
所有的私人房间都位于下面两层:两间儿童房、卧室、浴室和客用厕所。进入建筑后,人们会立即体验到它的空间概念:所有非私人区域都被安排在一个宽敞的开放空间。厨房、起居室和工作区只被不同的楼层所分割。
All private rooms are located on the two lower levels: two child´s rooms, the bedroom, bathroom and a guest toilet. Entering the building one will instantly experience its spatial concept: all non-private areas are organized in one generous open space. The kitchen, living room, and workspace are only divided by their different levels.



厨房与建筑的正面和背面都有玻璃。超过半层楼的室外台阶将其与花园相连。层高的壁炉可以向厨房和客厅开放。
The kitchen is fully glazed to the front- and backside of the building. Outdoor steps over half a storey connect it to the garden. The storey-high fireplace is openable both to the kitchen and living room.


客厅是房子的中心,所有其他区域都或多或少地与它直接相连。由于它位于建筑的上部,它将整个空间包围在屋顶之下。它向所有方向以及向上和向下开放,并在整个一天中受益于不同的自然光。
The living room is the center of the house, all other areas are more or less directly connected to it. Through its location in the upper part of the building it encloses the whole space underneath the roof. It is open to all directions as well as upwards and downwards and benefits of different natural lighting throughout the whole day.

工作区位于最高层,与建筑的北侧完全隔开。
The workspace is located on the highest level, fully glazed to the north side of the building.












Architects: Kai Binnewies
Area: 205 m²
Year: 2019
Photographs: Roman Mensing
Manufacturers: ABC Klinkergruppe, Nordlux, Parador, Fenster Brinker, Kaminbau Stegemann, M. Laurenz
Structural Engineer: Beatrix Zeisberg
Design:Kai Binnewies
Construction And Execution:Jörgen Dreher
City:Havixbeck
Country:Germany