位于悉尼Haymarket区的一座前巧克力工厂已被翻新,成为由Make Architects设计的精品新办公大楼。该建筑的历史可以追溯到20世纪,其特点构成了项目的核心。设计对现有结构进行了颂扬和调整,新材料和插入物保持简单和精致,使建筑的特点和历史仍然是重点。该项目位于Cunningham街,是Haymarket中心的一条小巷,是该地区一系列新开发项目中最新的一个,餐饮、商业和零售用途都在这里。
A former chocolate factory in the Haymarket district of Sydney has been refurbished to become a boutique new office building designed by Make Architects. Dating back to the 1900s, the building’s character forms the heart of the project. The design celebrates and adapts the existing structure, keeping new materials and insertions simple and refined, so that the character of the building and its history remains the focus. Located on Cunningham Street, a laneway in the heart of Haymarket, the scheme is the latest in a series of new developments to the area with food and beverage, commercial and retail uses moving in.





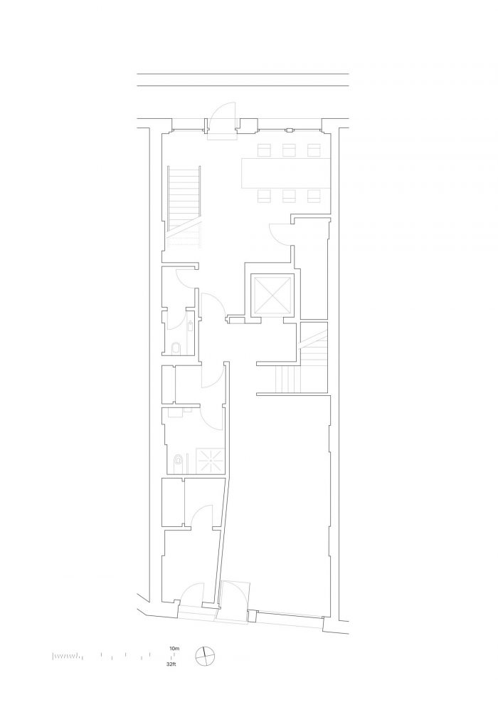
Make尽可能地保留了这栋3层、413平方米建筑的原始结构,包括钢梁、木地板、裸露的砖块和原始的吊架。在使用新材料的地方,Make特意选择了对比鲜明的材料--铜、混凝土和水磨石,以显示新与旧的区别。以可持续发展为优先,所有新材料都来自澳大利亚境内。
Make has retained as much of the original fabric of the 3 storey, 413m2 building as possible, including the steel beams, timber flooring, exposed brickwork, and original hoists. Where new materials have been used, Make deliberately opted for contrasting materials – copper, concrete, and terrazzo, to show a distinction between new and old. Prioritising sustainability, all new materials have been sourced from within Australia.

从走廊上看,外部的变化很小,但却很引人注目。砖砌的外立面已经被粉刷,新的铜制和钢制的门户门被插入,形成了建筑的主入口。原有的卷帘式入口被定制的双高玻璃和钢制入口门所取代,该门垂直滑起,位于上方的不对称芦苇玻璃窗后,使入口大厅向外开放并与街道接触。当关闭时,玻璃在夜间成为一个温暖的照明灯箱,同时保持住户的隐私。
From the laneway, exterior changes have been minimal yet striking. The brick façade has been painted and a new copper and steel portal door has been inserted to form the main entrance to the building. The original roller shutter entrance has been replaced with a bespoke double-height glass and steel entrance door that slides up vertically to sit behind an asymmetrical reeded glass window above, allowing the entrance lobby to open out and engage with the street. When shut, the glass becomes a warmly illuminated lightbox at night, whilst maintaining privacy for the tenants.


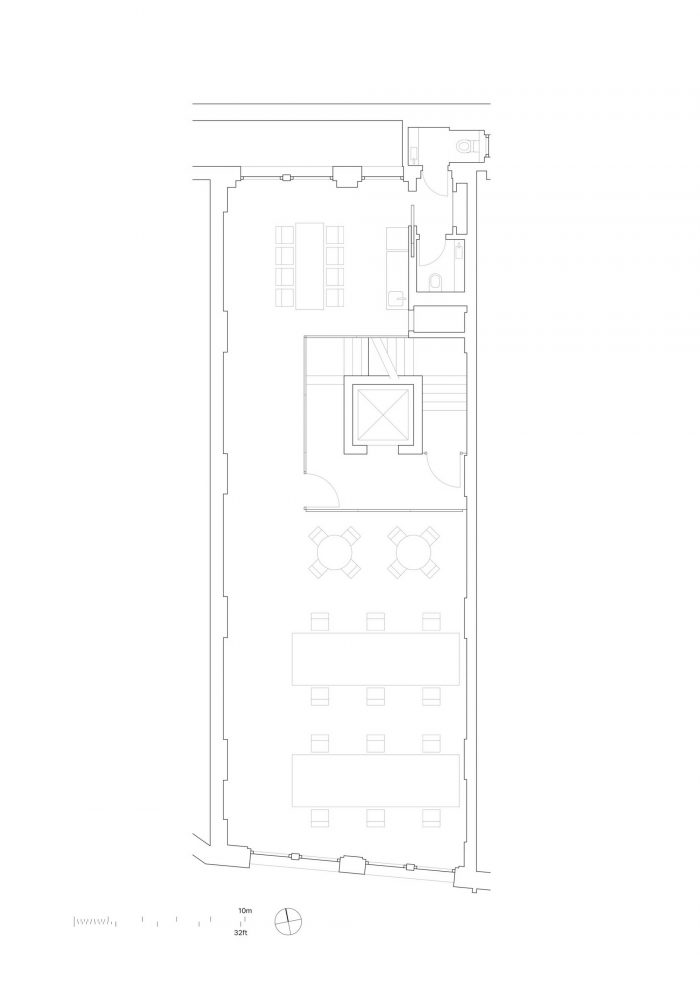
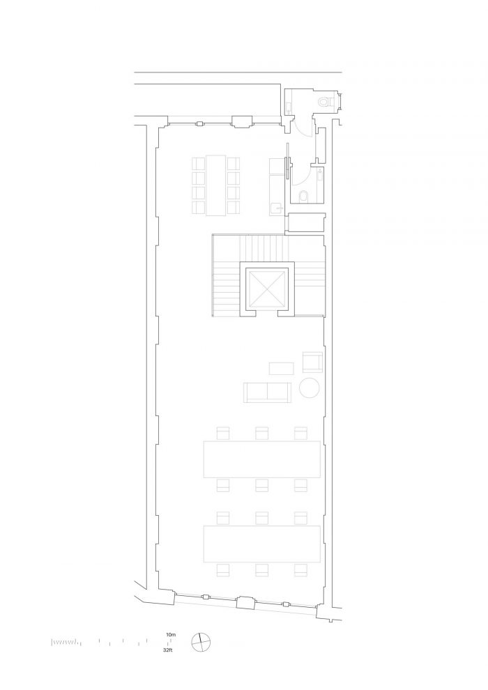
入口处,建筑从入口门和狭窄的通道进入一个双高、自然采光的入口空间,突出了原有的砖和木质天花板吊架。作为以前的工厂,底层的天花板极高,所以Make增加了一个新的夹层,以增加可出租的楼层空间。从下面的大厅可以看到夹层由一扇全高的芦苇玻璃窗组成,自然的日光充斥着整个空间,同时也为人们的活动提供了动画。夹层有自己的专用楼梯,用彩绘折叠钢连接到底层。
On entry, the building opens up from the portal door and narrow laneway into a double-height, naturally lit entrance space that highlights the original brick and timber ceiling hoists. As a former factory, the ground floor had an extremely high ceiling so Make has added a new mezzanine level to increase the lettable floor space. The mezzanine is visible from the lobby below by a full-height reeded glass window which floods the space with natural daylight but also provides animation from the movement of people. The mezzanine level has its own dedicated stair in painted folded steel connecting to the ground floor.

主楼梯间连接着地面、一楼和二楼,并以插入楼梯的铜盒的形式出现--这是一种刻意与众不同的材料,与原有的建筑结构形成对比。当铜盒向上延伸时,材料变为钢和玻璃,使运动和光线在建筑中可见。安装了一部电梯,连接所有楼层,包括夹层,但被隐藏起来,以鼓励租户使用楼梯。
The main stairwell links the ground, first, and second floors and appears as a copper box with the stair inserted – a deliberately distinctive material to contrast with the original built fabric. As the copper box extends upwards the materials change into steel and glass for the movement and light to be visible through the building. A lift has been installed to connect all floors including the mezzanine but is tucked away to encourage tenants to use the stairs.

办公室的楼板已经保持极简,裸露的砖墙被留下,只在需要的地方刷成白色,微妙的墙面和吊灯突出了结构。一楼和二楼增加了新的工程橡木地板,使原来的木板能够形成下面裸露的天花板。在形成新的开孔以利于流通的地方,现有的木材结构被回收,并在整个建筑中重新使用,作为天花板板或加强结构。
The office floorplates have been kept minimal, exposed brick walls are left, only painted white where needed with subtle wall and hanging lights highlighting the structure. New engineered oak floorboards have been added to the first and second floors, which enable the original boards to form the exposed ceilings below. Where new openings have been formed for circulation, the existing timber structure has been reclaimed and repurposed throughout the building as ceiling panels or to reinforce the structure.













建筑师:Make Architects
面积:413平方米
年份:2020年
摄影:Martin Mischkulnig
制造商:Cemintel, Covet, Plank Floors
项目负责人:Lucy Feast
项目顾问:Simon Lincoln
城市:Haymarket
国家:澳大利亚
Architects: Make Architects
Area: 413 m²
Year: 2020
Photographs: Martin Mischkulnig
Manufacturers: Cemintel, Covet, Plank Floors
Project Lead:Lucy Feast
Project Advisor:Simon Lincoln
City:Haymarket
Country:Australia