当地房地产公司HBI的新总部坐落在历史悠久的Schiffergraben一带茂密的树木和灌木丛中,就在Buxtehudes老城区和周边小规模住宅开发区的对面。室外的自然绿色决定了该办公大楼的设计。该建筑成为一个 "空地上的房子",镶嵌在一个自然森林区。独特的单体的同质性被宽大的窗区打破,精致的窗型使其具有轻盈和半透明性。
Embedded in a dense mantle of trees and shrubs along the historic Schiffergraben, the new headquarter for the local real estate company HBI is situated right opposite Buxtehudes old town and a surrounding small-scale residential development area. The natural green outdoor defines the design of the office building. The building becomes a "house in the clearing", embedded in a natural forest area. The homogeneity of the distinctive solitaire is broken up by generous window areas with delicate window profiles, giving it lightness and translucency.



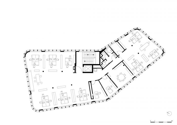
作为一个类似于斜Y型的基本体量,该建筑在入口处形成了一种欢迎的姿态,同时与圣彼得教堂的突出景观轴线保持一致。HBI办公室是通过一座横跨Schiffergraben的桥进入的。前院由古老的玄武岩石料铺成,提供座位和自行车停车场。根据场地的地形,入口层被设计成一个分层,门厅和会议区的房间高度都很通风。少量高质量材料的使用,如天然涂油橡木、抛光的绿灰色Anröchter砂岩,结合柔和的白墙和深思熟虑的照明概念,赋予室内一种诱人的氛围。虽然外墙被赋予了釉面砖的光泽,但内部却完全由哑光表面的材料制成。
As a basic volume similar to an angled Y, the building formulates a welcoming gesture on the entrance side, while aligning with the prominent view axis of the St. Petri Kirche. The HBI office is accessed via a bridge across the Schiffergraben. The forecourt is paved with old basalt stone and offers seating and bicycle parking. Following the topography of the site, the entrance level is designed as a split level with airy room heights in the foyer and meeting area. The use of few, high-quality materials such as natural oiled oak, polished green-grey Anröchter sandstone, in combination with muted white walls and a well thought-out lighting concept, grants the interior an inviting atmosphere. While the facade is given a glossy finish with glazed bricks, the interior is made exclusively of materials with matte surfaces.


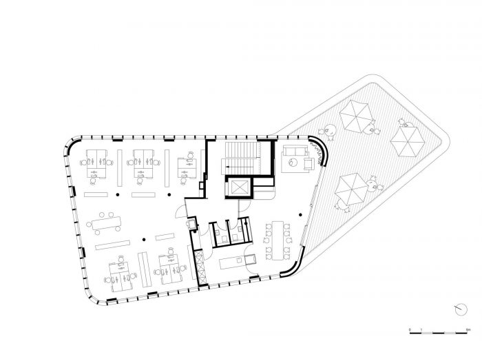
动态的内部空间,已经被建筑结构所塑造,并由天花板上的光线凹槽加以补充。光线充沛的房间可以看到郁郁葱葱的绿色和Buxtehude的老城区,确保了特殊的工作场所。通过灵活的房间分区,可以实现从蜂窝式办公室到开放空间办公室的不同布局。二楼是员工的厨房和休息室,以及一个近100平方米的大型阳光露台。
The dynamic interior spaces, which are already been shaped by the building structure, are complemented by light coves in the ceiling. Light-flooded rooms with a view into the lush green and the old town of Buxtehude ensure exceptional workplaces. Enabled by a flexible room zoning it’s possible to implement different layouts ranging from cellular offices to open-space offices. The 2nd floor houses a kitchen and lounge for the employees, as well as an almost 100 m2 large, sunny terrace.












Architects: kbnk ARCHITEKTEN
Area: 1461 m²
Year: 2022
Photographs:Piet Niemann
Lead Architects: Frank Birwe, Christian Schünemann
City: Buxtehude
Country: Germany