丹麦钢铁设计和制造公司NT Industry的新总部位于1951年建成的前重工业综合体的建筑中,2003年被目前的业主收购。它隐藏在其他工业建筑和绿色植物之间,由于其外墙和形式,它的重新设计与周围环境相得益彰。该设计分为两个独立的阶段。第一阶段涉及门楼的翻新,而第二阶段则试图翻新废弃的办公楼,并对仓库进行适应性再利用,重新设计成一个新的食堂。一个绿色的天井也被创造出来,占据了建筑群中间的空间。
The new headquarters of Danish steel design and manufacturing company NT Industry is located in the buildings of a former heavy industry complex built back in 1951 and it was acquired by the current owner in 2003. Hidden in between other industrial buildings and greenery, its redesign complements the surroundings, thanks to its facade and form. The design was divided into two separate stages. The first stage involved the refurbishment of the gatehouse, while the second stage sought to renovate the disused office building and adaptive reuse of the warehouse, redesigned as a new canteen. A green patio was also created, occupying space in the middle of the complex.



主要的想法是保持材料的诚实性,找到简单的设计方案,并尽可能多地保留原有的建筑结构。砖墙被揭开,现有的水磨石楼梯被翻新,而外墙所使用的设计的科特钢板是由公司的未用钢材库存制成的,完全由客户制造。它的皮质钢外墙是根据建筑师准备的一个执行项目制作的,以使旧的储存材料得到必要的利用。
The main idea was to maintain material honesty, find simple design solutions and keep as many of the original building structures as possible. Brick walls were revealed, existing staircases finished with terrazzo got renovated, while the designed corten steel panels used on the facade were made out of unused stock of the company's steel and were entirely manufactured by the client. Its corten steel facade was made based on an executive project prepared by architects to make essential use of old-stored materials.


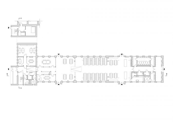
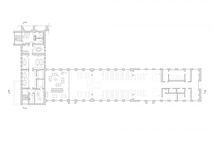
因此,零废料的理念被落实到设计中。前面提到的门楼是第一阶段的目标,包括了整个建筑群的入口区域,由两部分组成:一个为保安人员准备的玻璃建筑,有一个司机等候室和一个自行车棚。科尔登钢也被用于标记公司名称。翻新后的办公大楼提供了超过740平方米的灵活开放的办公空间,以及较小的箱式办公室和会议室。
Therefore, the idea of zero waste was implemented into the design. The aforementioned gatehouse that was the target of the first stage, encompasses the entrance area of the entire complex and consists of two sections: a glazed building for security personnel with a waiting room for drivers and a cycle shelter. Corten steel was also used to mark the company name. The refurbished office building offers over 740m2 of flexible open office space with smaller box offices and conference rooms.


重复使用的楼梯由一个新的前庭来补充。办公楼的入口就在新食堂的正前方,新食堂为250人提供了空间。新的空间设计在食堂旁边为工人引入了一个休闲区。现有的坡道被用来消除建筑物内的水平差异。在北面设计了两个入口,在南面设计了另外两个入口,提供通往绿色庭院的通道。
Reused staircases were supplemented by a new vestibule. The entrance to the office building is directly in front of the new canteen which is providing space for up to 250 people. The new spatial design introduced a recreation area for workers next to the canteen. Existing ramps were used to nullify the difference in levels inside the buildings. Two entrance portals were designed on the north facade with another two on the southern one providing access to the green patio.


入口和楼梯都用皮质钢覆盖,而建筑的其他部分则保持中性的白色和灰色。窗户的布局保持了其原有的形式。墙壁和屋顶进行了热现代化改造。室内设计为阁楼风格,裸露的砖块、混凝土和水磨石加上黑色表面的新元素。将食堂与办公楼隔开的墙和所有天花板都用天然材料制成的吸音板覆盖。管道系统和工程细节被暴露出来。家具保持简约,以补充风格。翻新工程将在接下来的阶段继续进行。
The entrances and the staircases were covered with corten steel, while the rest of the buildings are kept in neutral white and gray colors. The layout of the windows was kept true to its original form. Walls and roofs were thermomodernizated. Interiors are designed in loft style, with exposed brick, concrete, and terrazzo coupled with new elements with a black finish. Wall separating the canteen from the office building and all ceilings were covered with acoustic panels made out of natural materials. Ductwork and engineering details were exposed. Furniture is kept minimalistic to complement the style. The refurbishment will be continued in the next stages.






























Architects: GIGAARCHITEKCI Artur Garbula
Area : 1474 m²
Year : 2021
Photographs :Tomasz Zakrzewski
Manufacturers : ELMAX Sp. z o.o. Sp. k., Gneza Klima Engineering, STALMET, Troldekt
Lead Architect : Artur Garbula
Structure Engineers : CONSTE Sp. z o.o.
MEP Design : EAZet Paweł Wcisło, mgr inż. Tadeusz Gubernat
Contractors : Firma Usługowa „AGA”
Landscape Design : Zieleń Design Karol Błażyca
Concept Design : Magdalena Kaiser, Katarzyna Spałek – Siwińska, Jakub Jaworski, Wojciech Remer, Zbigniew Sztobryn, Jan Momme
Building Design : Magdalena Kaiser, Katarzyna Spałek – Siwińska, Jakub Jaworski, Anna Ajchsztet
Interior Design : Magdalena Kaiser, Aleksandra Duży
City : Orzesze
Country : Poland