该项目是对悉尼北部海滩上现有的装饰艺术遗产房屋的改建和增建,为一个年轻和成长中的家庭服务。这个有5个床位的房子,从外部角度看,是为了庆祝诚实的红砖乡土,并通过空旷的空间、大窗户和表达的结构,使内部现代化和开放,以实现开放和流动的生活,连接到后面。我们的目标是创造一种与现有建筑的和谐感,但又能区分新与旧的区别。这一点是通过在材料和规模上拥抱砖墙,但又通过颜色和形式加以区分来实现的。
The project is an Alterations and Additions to an existing Art Deco Heritage House on Sydney's Northern Beaches for a young and growing family. This 5-bed home looked to celebrate the honest red brick vernacular from an external point of view and modernize and open the inside through void spaces, large windows, and expressed structure to allow an open and flowing living, connecting to the rear. The goal was to create a sense of harmony with the existing, yet a distinction of the new from the old. This was achieved through embracing the brick facades in their material and scale yet differentiating through color and form.







由于当地政府提出的遗产保留要求,我们面临的挑战是必须维护建筑的现有表皮,主要是前立面,同时试图打开建筑并从内部移除结构。建筑商能够实施聪明的施工方法,允许支撑外部结构并建造新的内部板块和钢架结构。
Due to the Heritage retention requirements imposed by the local authorities, we were challenged by having to uphold the existing skin of the building, mainly the front façade, whilst trying to open the building and remove the structure from the inside. The builders were able to implement smart construction methods allowing the propping up of the external structures and constructing new internal slabs and steel-framed structures.

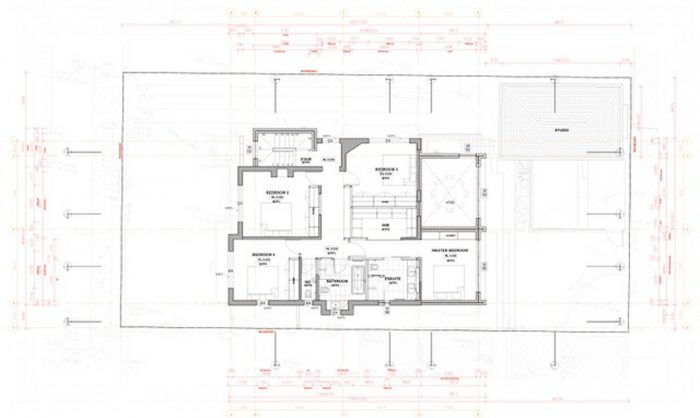
住宅的空间配置是传统的布局--生活空间在一楼,睡眠和私人空间在一楼。进门在住宅的一侧,进入一个走廊,一边是孩子们的生活,另一边是杂物间的储藏室。
The spatial configuration of the home is that of a traditional layout – living spaces on the ground floor and the sleeping and private spaces on the first floor. With the entry door on the side of the home, you enter a hallway with kids living on one side and mudroom storage on the other.

在走廊后面,通向房屋主体的是开放的起居室,厨房和餐厅洒落在后方的草坪上。体积和规模的表达通过餐厅上方的大空隙得到了强调,使白色砖墙上的拱形窗户的影子变得更加明显。楼上的布局也很相似,卧室和家庭浴室都在通往楼梯的走廊上。外面是现有的单车车库,它被改造成一个小工作室,还有游泳池。
Behind the hallway and through to the main body of the house is the open living with kitchen and dining spilling onto the rear lawn. The expression of volume and scale is emphasized through the large void space over the dining dramatizing the shadows of the arched windows on the white brick wall. Upstairs is similar in its layout with the bedrooms and family bathroom off the hallway leading off the stair. Outside is the existing one-car garage which is transformed into a small studio, and the pool



















Architects: Rama Architects
Area : 270 m²
Year : 2019
Photographs :Simon Whitbread
Lead Architects : Thomas Martin, Daniel Raymond
Builder : Liebke Projects
City : Queenscliff
Country : Australia