该项目是对现有排屋的改造和扩建,位于维也纳西部的维也纳森林山坡上。这个项目的特殊性在于其背景。现有的房子由最简单的结构组成,但同时它也是一个历史遗迹。
Adapting and extending an existing row-house, the project is situated on the slopes of the Viennese Woods in the West of Vienna. The particularity of this project lies in its context: The existing house consists of the simplest possible structure, but at the same time it is also a historic monument.



Heuberg是维也纳定居者运动最早建立的社区之一,该运动在第一次世界大战后开始,是许多穷人、无家可归者和失业者的自我组织行动,他们为了能够生存下去而占用土地。在20世纪20年代,这一运动得到了维也纳社会民主党政府的支持和正式认可。Heuberg的总体规划是由Adolf Loos制定的,他已经成为安置部门的负责人,Margarete Schütte-Lihotzky是他的合作者。除了自己规划一些房屋类型外,他们还邀请了其他一些建筑师贡献他们的设计。
Heuberg was one of the first neighbourhoods built by the Viennese Settlers Movement, which began after WWI as a self-organized action of many poor, homeless, and unemployed people who took land to be able to survive. In the1920s this movement was supported and formalized by Vienna´s social-democratic government. The master plan of Heuberg was laid out by Adolf Loos, who had become the head of the settlement department, with Margarete Schütte-Lihotzky being his collaborator. Besides planning some house types themselves, they also invited a number of other architects to contribute their designs.


这些房屋是在未来居民的帮助下建成的--他们每人必须完成3000个工作小时--它们包括一个极其简单和经济的结构。空心墙、开放的木质天花板和低矮的房间高度使得材料的使用和非熟练工人的执行都达到了最低限度。所有房屋的后面都有一个狭长的花园,定居者可以在那里种植蔬菜和水果。
The houses were built with the help of the future residents - who had to do 3000 working hours each - and they consisted of an extremely simple and economical construction. Cavity walls, open wooden ceilings and low room heights allowed for the least material usage and execution by unskilled workers. All houses had a long and narrow garden at their back, where the settlers could grow their vegetables and fruits.


在过去的100年里,大多数的房子,仍然属于居民合作社,已经被单独改造并向花园延伸。此外,Heuberghaus,位于一排房子的中心位置,经历了几次内部改造--这反映了花园角色的变化--而在外部,它保持了它的轮廓。就在几年前,受遗产保护的整排建筑的街边立面经历了热修复。
During the last 100 years most of the houses, which are still owned by the cooperative of residents, have been individually adapted and extended towards the garden. Also Heuberghaus, which is positioned centrally in a row, has undergone several interior alterations - that reflect for example the changing role of the garden - while externally it has kept its outlines. Just a few years ago, the heritage-protected street side façade of the whole row has undergone thermal rehabilitation.



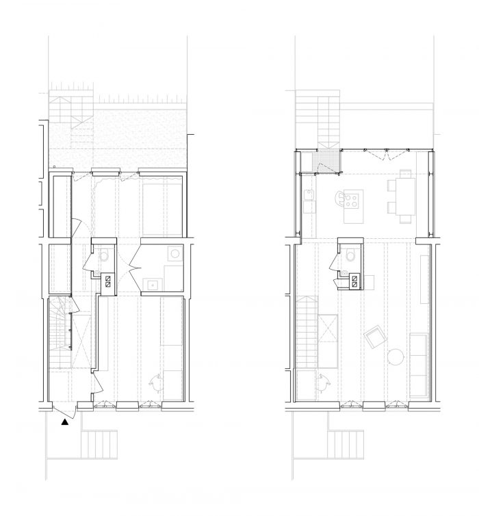
延续变化和调整的历史,这所70平方米的房子,仍然由同一个家庭居住,内部被重新组织,并在花园一侧扩展了一个两层的附属建筑。现在,私人房间位于内向的一楼,而一楼则为宽敞的生活空间开放,视野开阔,光线充足。一个新的线性空间连接了两层房屋的前部和后部,提供了进出街道、后院和花园的通道,并提供了贯穿整个房屋的视野。楼层平面图仅由几个固定的组件定义,并允许在两层进行循环运动。底层的几个可移动元素提供了一个流畅的空间解释和不同等级的隐私。
Continuing the history of changes and adaptations, the 70m² house, which is still inhabited by the same family, was internally re-organized and extended at the garden side by a two-story annex. The private rooms are now situated on the introverted ground floor, while the first floor opens up for generous living with wide views and a lot of light. A new linear space connects the front and back side of the house on both levels, provides access from and to the street, the backyard and the garden and offers views through the house. The floor plans are defined by only a few fixed components and allow for circular movement on both levels. Several movable elements on the ground floor provide for a fluent interpretation of space and differentiated grades of privacy.



建筑干预反映了定居者房屋的基本材料性,目的是为了显示这个建筑实际上是什么。以前的外墙变成了内墙,由定居者安排的经济的 "捕鼠器 "砖块被显示出来。当时高度创新的预制平顶的木质混凝土构件被暴露出来并涂成白色。类似的综合材料也被添加进来:沙灰砖砌体、木梁天花板和胶合板墙。这些材料的颜色由灰绿色和浅黄色的元素来补充。
The architectural interventions reflect the basic materiality of the settlers´ house with the intention to show what this building actually is: The former exterior wall became an interior wall and its economic “rat-trap” brick bond, arranged by the settlers, was made visible. The - at that time highly innovative - pre-fabricated wood-concrete elements of the flat roof were exposed and painted white. Similarly comprehensive materials were added: sand-lime brick masonry, wood-beamed ceilings and plywood walls. The colors of the materials were supplemented by elements in grey-green and light yellow.








Architects : studio urbanek
Area : 59 m²
Year : 2021
Photographs :David Schreyer
Lead Architects : Katharina Urbanek
City : Vienna
Country : Austria