受棕榈树的启发,这个位于洛杉矶西部的以自然为中心的公寓楼在后大流行时代为整条街道提供了一种培育的感觉。它以独特的方式融合了当地的植物群,包括场地上大约有90年历史的梧桐树,具有俏皮的树屋效果。这个拥有15个单元的建筑是LEED金奖,提高了我们对自然与人工的相互作用的认识,这也是洛杉矶的标志。它采用了自然和工业材料的混合。科腾钢、绝缘玻璃、板状混凝土、回收的木材和所有楼层的棕榈树。
Inspired by the palm tree, the nature-centric apartment building in west LA provides a sense of nurture to the entire street in a post-pandemic age. It incorporates the local flora in unique ways including the site’s roughly 90-year-old sycamore, with a playful treehouse effect. The 15-unit structure, LEED Gold, heightens our awareness of nature’s interplay with the man-made that marks Los Angeles. It does so with a mix of natural and industrial materials: Corten steel, insulated glazing, board form concrete, salvaged wood, and palm trees on all floors.




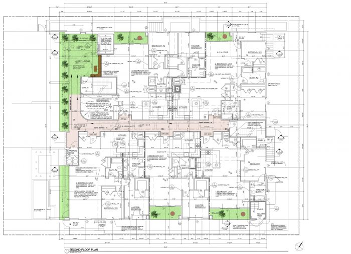
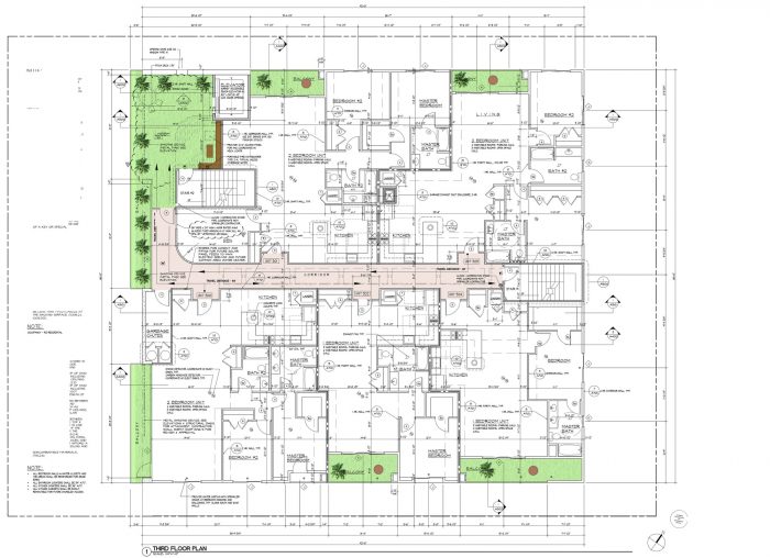
4层楼高的1946年Overland被淹没在地面以下3英尺,以优化每个单元的高度。这也使公共大厅在夏季保持凉爽。此外,在面向西南的正面,被动冷却的花园大厅减少了暖通空调负荷。一个主要的挑战是满足开发团队的投机目标,在预算范围内最大限度地扩大面积,同时仍然提升行人体验。奥弗兰大道的许多地方都有一种破旧的、甚至是压抑的品质,我们试图用一种戏剧性和经济的手段来挑战这种品质,同时还能加深一种地方感。
Four stories high, 1946 Overland is submerged over three feet below grade to optimize the height for each unit. This also keeps the public lobbies cooler in the summer months. Additionally, passively cooled garden halls at the Southwest-facing front facade reduce the HVAC load. A primary challenge was to meet the speculative goal of the development team to maximize square footage on a budget, while still elevating the pedestrian experience. Much of Overland Avenue has a beat-up, even depressive quality and we sought to defy that with an aspect of theater and an economy of means that still deepens a sense of place.


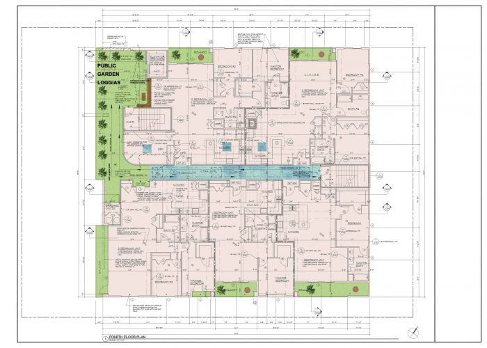
该项目利用混凝土平台和木质上层建筑,以及正面的钢框架来完成宽大的低辐射玻璃。三个大的托架在上层开放,以创造充满植物的木屋,利用田园诗般的气候,改善空气流通,降低碳足迹。遮蔽的木栅栏鼓励社区,并允许人们在自己的公寓里工作。顶层的七个天窗使自然光更加充足。
The budding utilizes a concrete podium with a wood superstructure, and steel framing at the front facade to accomplish the wide expanses of Low e glass. Three large bays are open at the upper floors to create plant-filled loggias that take advantage of the idyllic climate, improve air circulation and lower the carbon footprint. The sheltered loggias encourage community and allow one to work down the hall from one’s apartment. Natural light is furthered with the inclusion of seven skylights on the top floor.


袖珍花园 “与街道建立了更大的联系,街道上有一所特许学校,还有骑自行车前往世纪城的人。(人们可以看到孩子们在嬉戏的外墙前滑行和拍照)。建筑通过精致的形式提升了工业钢铁,与棕榈树的树干相呼应,以引出其特殊的美。而这个元素随着时间的推移而变化,变成了深橙色,很像成熟的水果。木板形式的表面被拉到低层大厅的室内,进一步模糊了室内和室外的区别。在垂直和水平方向放置的板形也呼应了棕榈树皮上的线条。景观设计由首席建筑师负责。
The ‘pocket gardens’ forge greater connections with the street that includes a charter school catty-corner to the site, and bikers on their way to Century City. (Children may be seen scootering by and taking photos in front of the playful facade). The architecture elevates the industrial steel through refined forms–that echo those of palm tree trunks– to draw out its specific beauty. And this element changes over time, becoming a deep orange, much like ripening fruit. Board form surfaces are pulled into the interiors at the lower lobby to further blur the distinctions between indoors and outdoors. Placed in vertical and horizontal orientation the board form also echoes the lines seen on palm tree bark. Landscape design by the lead architect.
















Architects: Valerie Schweitzer Architects
Area : 23800 ft²
Year : 2022
Photographs :Yoshihiro Makino
Manufacturers : Kohler, AVM Industries, Bosch, Caeser Stone, Egger, Milgard, Solarban
Lead Architect : Valerie Schweitzer
Architect of Record : Andrew Ratzsch
Contractors : James Kennedy Construction
Structural Team : Masoud Dejban Inc.
Construction Details : Charles Georgie
Presentation Drawings : Wei Wang
Mechanical And Plumbing : Air Plus Inc.
City : Los Angeles
Country : United States