高街公寓是加德纳建筑事务所的第一个高层多住宅项目。该项目位于墨尔本的Thornbury,是一个混合用途的建筑,在面向高街的底层停车场和餐厅之上有13个公寓。
The High Street Apartments is Gardiner Architects’ first high-rise multi-residential project. Located in Thornbury, Melbourne, the project is a mixed-use building, with thirteen apartments above a ground floor carpark and restaurant fronting High Street.




在公寓内部,色调温暖,色彩斑斓,同时又足够克制,允许未来的居民在空间中加入自己的风格。考虑到长期居住,存储的机会被最大化,以便成长中的家庭可以在空间内扩展。
Inside the apartments, the palette is warm with splashes of color, while still restrained enough to allow future residents to add their own style to the spaces. With long-term occupation in mind, opportunities for storage are maximized so that growing families can expand within the space.


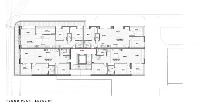
一个单一的中央开放式楼梯间环绕着电梯。南面的楼梯立面是用玻璃砖砌成的,这样柔和的自然光就可以照进空间。当住宅垂直叠加时,楼梯间和屋顶花园是临时互动和社区联系的场所。
A single central, open stairwell wraps around the lift. The south stair façade is built with glass bricks so that gentle natural light can wash into the space. When homes are stacked vertically, the stairwell and rooftop garden are places of impromptu interaction and community connection

该建筑采用了预制交叉层压木材(CLT)结构,以达到更可持续的结果,公寓平均达到8.4星的评级。这种建筑方法允许更灵活的布局,每一层和公寓都是完全独立的设计,以应对每个公寓的不同方向、大小和方面。
The building employs prefabricated cross-laminated timber (CLT) construction to achieve a more sustainable outcome, with the apartments achieving an 8.4-star rating on average. This building methodology allowed for greater flexibility of layout, with each level and apartment a completely individual design responding to the varied orientation, size, and aspect of each apartment.




总的来说,高街公寓是一个非常宜居的结果,它响应了它的环境,并体现了在澳大利亚测试和开发新的、更可持续的建筑方法的需要。
Overall, the High St Apartments sees a very liveable outcome, that responds to its context and exemplifies the need to test and develop new, more sustainable construction methods in Australia.














Architects: Gardiner Architects
Area : 471 m²
Year : 2022
Photographs :Rory Gardiner
Builder : Sinjen Group Prefabricator
Land Surveyor : Goodison
Quantity Surveyors : MBM Quantity Surveyors
Structural Engineer : 4Site Engineers
Acoustic Engineers : Octave Acoustics
Geotechnical Engineers : GeoAust
Design Team : Paul Gardiner, Vaughan Bones, Alex Millar, Amelda Berkley
Stylist : Jess Kneebone
Building Surveyors : Jazz Building Surveying
Clt Engineer : Vistek Engineers
Fire Engineers : Red Fire Engineers
City : Thornbury
Country : Australia