该项目位于布宜诺斯艾利斯市的Colegiales社区。这个地区以其树木、低层建筑和每个街区中心的庭院而闻名。
The project is located at Colegiales neighborhood in the City of Buenos Aires. This area is known for its trees, low-rise buildings and courtyards in the heart of every block.




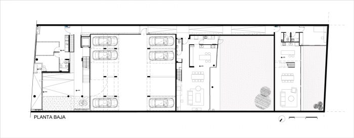
该建筑有15个单元,其类型各不相同,占据了整个地块的宽度,经过三个体量,逐渐向街区的中心分层,那里是其最低点。它有花园和绿色露台,确保所有单元都有开阔的视野,这些单元都有宽敞的扩展空间,无论是花园、绿色露台还是露台阳台,都给单元带来了强烈的室内外关系。
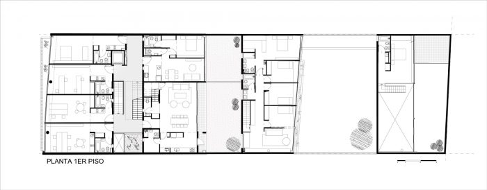
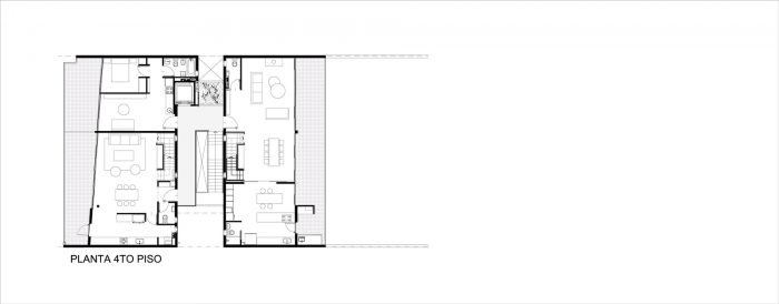
The building has 15 units whose typology varies, taking up the whole width of the plot and going through three volumes that are tiered gradually towards the center of the block, where its lowest point is. It has gardens and green terraces that ensure open views in all units, which have generous expansions, be it gardens, green terraces or terraced balconies that give units a strong indoor-outdoor relation.

最接近市政线的体量在底层和四层开发,直到街区的最大高度,与邻近的建筑和城市本身沟通。这个体块被切割成一个空隙,项目的主要循环在这里,楼梯、走道、垂直花园和天井混合在一起,加强了公共区域。
The volume closest to the municipal line is developed at the ground floor and on four levels, up to the maximum height of the block, communicating with neighboring constructions and the city itself. This block is cut through a void where the main circulation of the project is, with a mix of staircases, walkabouts, vertical gardens and patios that enhance common areas.


到达街区中心的两个体量塑造了平坦的房屋,占据了整个场地的宽度,因此增强了开放的视野、阳光和室内外关系。
The two volumes that reach the center of the block shape flat houses that take up the whole width of the site, therefore enhancing open views, sunlight and indoor-outdoor relations.



该结构被组织成模块,为不同的类型提供了空间,并允许必要的灵活性,从而使各层可以适应各种需求。休息室和卧室采用了无梁板,使这些区域更加灵活。
The structure is organized in modules giving room to diverse typologies and allowing the necessary flexibility so that levels can be adapted to various needs. Lounges and bedrooms feature beamless slabs to make the areas more versatile.

面向街道的立面显示了垂直遮阳伞的混合物,确定了建筑的身份,同时给前面的单元提供了隐私。它的室内区域框住了康德街所呈现的树木的景色。
The façade facing the street shows a mixture of vertical parasols that define the identity of the building while giving privacy to the units at the front. Its indoor areas frame the view of the trees presented by Conde Street.



















Architects: Corinne Mauas, Daniela Ziblat, Hauser Oficina de Arquitectura, Mara Steinberg
Area : 21689 ft²
Year : 2017
Photographs :Albano García
Manufacturers : AutoDesk, Antoliche, Arien Clima, Ascensores: HOCH, CONSES, CUEVA DE LAS MANOS, Estudio Iluminacion, FARTON INSTALACIONES, Grupo MSH, Seel Servicios Electricos, Sky windows, Triangular
Lead Architects : Mara Steinberg, Corinne Mauas, Daniela Ziblat, Germán Hauser
Collaborators : Emanuel Pérez Carrera, Lucas Wetzels, Mercedes Milesi
Engineering : Diego Vizzon
Electrical Advisor : Horacio Ferrando
Management : Diego Stern de Fiducons SRL
City : Colegiales
Country : Argentina