里山的儿童之家。该遗址位于缓坡的半山腰上,远处面向大海。周围都是很久以前建造的住宅。我们寻求在里山建房,以便孩子们能被山所拥抱。
The Children’s House of Satoyama. The site is located halfway up the gently sloping hill that faces the sea in the distance. The surroundings consist of residential houses that were built long ago. We sought to build a house on Satoyama so that the children would be embraced by the mountains.




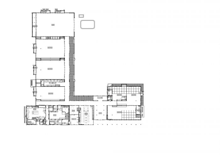
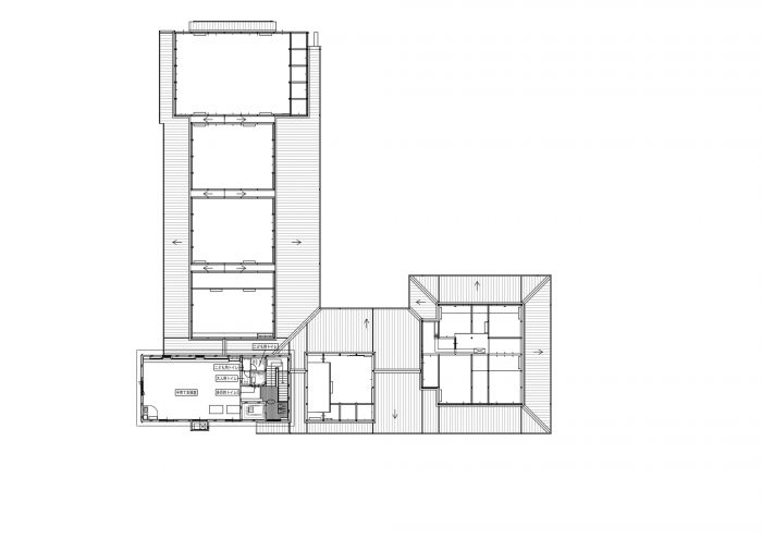
新的儿童中心将被安排成L型,包括操场的东南面(现有幼儿园的一部分)。主办公室、入口和0至2岁儿童的教室位于西侧,游戏室和3至5岁儿童的教室则位于北侧。每个托儿所的房间都有自己的屋顶,使其看起来像一个里山村。
The new child center will be arranged in an L-shape encompassing the southeast of the playground (part of the existing kindergarten). The main office, the entrance, and the classroom for children ages 0 to 2 are located on the west side and the playroom and classroom for 3 to 5 year-olds are located on the north side. Each nursery room was given its own roof to make it seem like a village of Satoyama.


位于西侧的低龄儿童的房子有一个方形的屋顶,高龄儿童的房子有一个北向南的山脊式屋顶,并建造了一个附属建筑来连接两者。在托儿所前面,房间里有一条走廊和开放的阳台,每条走廊都有1.8米宽,走廊外有大量的屋檐空间。像过去的农家一样,当孩子们通勤到幼儿园时,他们也会从长廊进出,到操场上玩耍。
The house of the younger children on the west side has a square roof, the house of the older children has a gabled roof with north to the south-oriented ridge, and an annex was built to connect the two. In front of the nursery, rooms run a hallway and open veranda, each 1.8 m wide, beyond which plenty of eaves space was provided. Like the farming families in the past, when children commuted to kindergarten they also came in and out from the veranda to play on the playground.

虽然是木质结构,但抗震元素的分布和排列与钢筋混凝土结构类似。正因为如此,附件中面向操场的部分没有设置支架和墙壁,以便营造出里山私人住宅的外观。
While it is a wooden structure, the earthquake-resistant elements are distributed and arranged similar to a reinforced concrete structure. Because of this, the brace and walls were left out of the portion of the annex facing the playground so as to create the appearance of a private house in Satoyama.
























Architects: MIKAMI Architects
Area : 1064 m²
Year : 2019
Photographs :Koji Horiuchi
Engineering : Ohga Structural Design Office
Consultants : Okabe, Kurokawa, Taga Civil Engineering Special Construction JV
Clients : Hitachi City, Hitachi City
City : Hitachi
Country : Japan