房子建在113平米的土地上。目的是外部空间简约,内部功能齐全的现代主义。房子清晰地显示出主人的个性:现实主义,空间中充满了绿树和原材料。
The house is built on the land 113m2. The purpose is a minimalist outside space, modern and fully functional inside. The house shows clearly the owner's personality: realist, the space is filled with green trees and raw materials.





房子的功能包括6层。
1楼:车库、商铺出租。
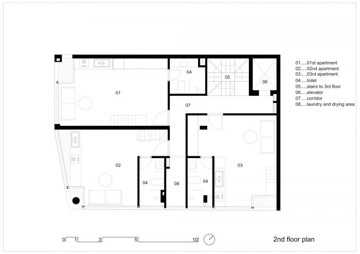
2楼:03套小公寓出租。
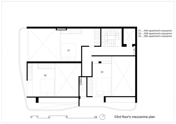
3楼:03套大户型出租。
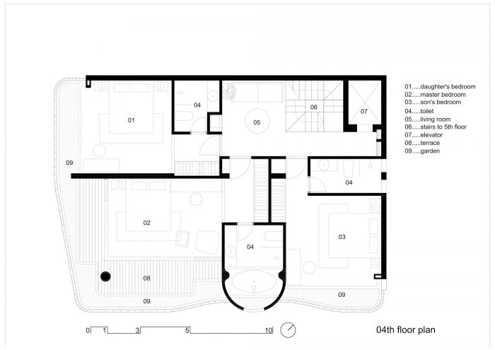
4楼:主卧01间,小卧室02间,客厅01间。
5楼:厨房+餐厅。
6楼:业主办公室。
The house's function includes 6 floors:
1st floor : garage, shop for rent.
2nd floor: 03 small apartments for rent.
3rd floor: 03 large apartments for rent.
4th floor: 01 master bedroom, 02 small bedrooms, 01 living room.
5th floor: kitchen + dining room.
6th floor: the owner's office.



因为地块临近市场,所以业主把一楼租下来做商业。其他楼层,业主希望与外部空间有所区别,所以H2用绿树结合通风墙打造了一个罩子,罩子是用铁架和水泥板做的。
Because the land is near the market, the owner has leased the first floor for business. Other floors, the owner wants to have a difference from the outside space, so H2 creates a cover with green trees combined with ventilation walls, which are made of iron frames and cemboards.

业主住在西贡,工作繁忙,所以她希望自己的房子能有一个空间,享受真正的度假风格,成为拥挤的集镇中一个温暖的亮点。所以,所有的卧室、厨房、工作间、厕所都是黄色的灯光和绿色的景观。
The owner lives in Saigon and has a busy working time, so she wants her house where has a space to enjoy the true resort style and become a warm highlight among the crowded market town. So, all the bedrooms, kitchen, working room, toilet are lit with yellow light and have a green view.

特别是业主预留的5楼,在拥有城市景观的地方,做了一个开放式的厨房空间,营造出沉浸在大自然中的感觉。这种开放的空间与静谧的生活形成了鲜明的对比,它隐藏在弧形水泥墙后,周围有菜园和果树。
Especially, the owner reserves the 5th floor where has a city view, makes an open kitchen space to create the feeling of immersing in nature. This open space contrasts with the quiet life, which is hidden behind arc concrete walls and vegetable garden and fruit trees around.



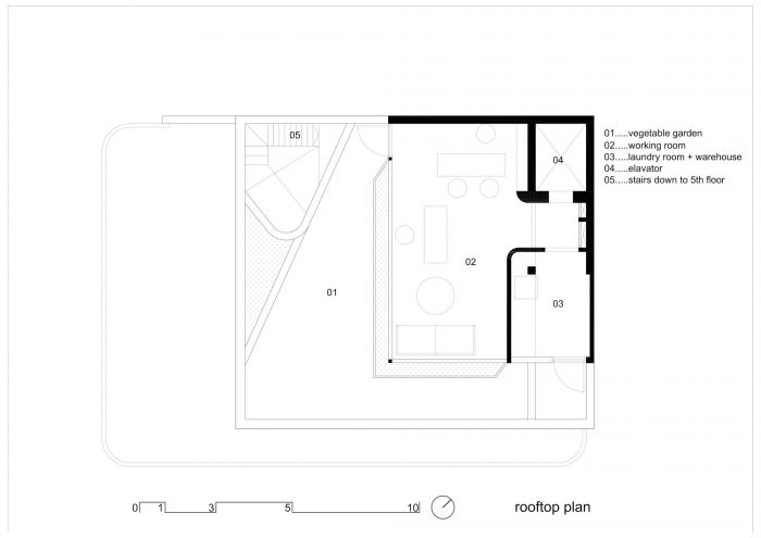
天台是业主的办公室,与厨房结合的是一个台阶式的露天小楼梯,为房子营造了一个柔和的空间。
The rooftop is the owner’s office, it combines with the kitchenby a small open-air staircase in the style of steps, that creates a softer space for the house.
















































建筑师:H.2
占地面积: 113 m²
年份:2020年
摄影作品:Quang Dam
厂家:An Cuong, Jotun, Toto, Megan Man, Xingfa
牵头建筑师:Trần Văn Huynh, Nguyễn Thi Xuân Hải, Nguyễn Đức Khánh, Nguyễn Văn Hóa, Đỗ Trọng Nhân Kiệt, Nguyễn Văn Trung
业主:何女士
钢铁承包商:Vân先生
窗户承包商:杜先生
室内:KAA Studio
施工单位:AT Cons
国家:越南
Architects: H.2
Area: 113 m²
Year: 2020
Photographs: Quang Dam
Manufacturers: An Cuong, Jotun, Toto, Megan Man, Xingfa
Lead Architects: Trần Văn Huynh, Nguyễn Thi Xuân Hải, Nguyễn Đức Khánh, Nguyễn Văn Hóa, Đỗ Trọng Nhân Kiệt, Nguyễn Văn Trung
Owner:Ms. Hoa
Iron Contractor:Mr. Vân
Windows Contractor:Mr. Duy
Interior:KAA Studio
Contruction:AT Cons.
Country:Vietnam