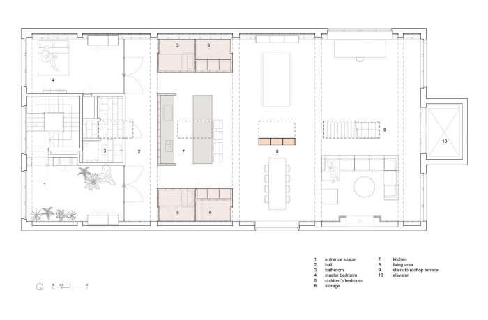
布鲁塞尔一栋工业建筑上层的前办公空间被改造成一个艺术家的公寓。在这个开放的空间里有三个主要的干预措施:一个半透明的聚酯树脂的中央橱柜,一个深色大理石的厨房和两个对称的木质体,包含卧室和存储空间。这个项目是对材料密集研究的结果:浅色和深色大理石,不同色调的聚酯树脂的实验,不同类型的木材和不同色调的铸造地板。
The former office space on the upper floor of an industrial building in Brussels was transformed into an apartment for an artist. Three main interventions were made in the open space: a central cupboard in translucent polyester resin, a kitchen in dark marble and two symmetrical wooden volumes containing bedrooms and storage space. This project is the result of an intense research of materials: light and dark marble, experiments with different shades of polyester resin, different types of wood and different shades of the cast floor.





浇铸聚酯的元素是与Werkplaats Vincent de Rijk创意合作的结果。该建筑的其他楼层目前正被艺术家用作办公室、工作场所和工作室。材料和干预的位置被仔细确定,以便与现有的天窗创造一个有意义的组合。不同空间的定义遵循梁的结构。中央橱柜的半透明材料吸收了来自上方的光线,并将日光扩散到开放空间。厨房的材料是一种非常有质感的深色大理石,在生活区创造了一个大胆的中心点。
The elements in cast polyester are the result of a creative collaboration with Werkplaats Vincent de Rijk. The other floors of the building are currently being used by the artist as office, workplace and atelier. The materials and the position of the interventions were carefully determined to create a meaningful composition with the existing skylights. The definition of the different spaces follows the structure of the beams. The translucent material of the central cupboard absorbs the light from above and diffuses the daylight in the open space. The material of the kitchen is a very textured and dark marble, creating a bold centre point in the living area.

两个木制的体量在一个轻盈的非承重结构中加强了这种对称性。木材的类型补充了铸造地板和半透明橱柜的温暖。儿童卧室内的两个新天窗创造了一个亲密而舒适的睡眠空间。在用餐区,在外墙做了一个新的开口,以创造一个广阔的城市视野。
The two wooden volumes strengthen this symmetry in a light non-bearing structure. The type of wood complements the warmth of the cast floor and the translucent cupboard. The two new skylights inside the children’s bedrooms create an intimate and comfortable space to sleep. In the dining area a new opening was made in the outer wall to create a broad view on the city.





Architects: B-ILD
Area: 260 m²
Year: 2020
Photographs: Jeroen Verrecht
Manufacturers: AutoDesk, Bega, Jaga, ODS, DRT gietvloeren, LedLab, Sapa, Van den Weghe
Design Team:B-ILD
Technical Installations:STir
Translucent Polyester Cabinet:Vincent de Rijk
Installation Of Plants:BRUT
City:Anderlecht
Country:Belgium