我们希望远离五星级海滩度假村的人群和混凝土,在一个更平静、更接近自然的地方度过时光,因此产生了建造这个小型度假屋的想法。作为一个年轻的家庭,我们的预算有限,买一块地并在上面建房的想法是遥远而不可能的。这样做的话,我们就会成为入侵海边的混凝土军队的一部分。因此,我们选择了在车轮上建造我们的退路。由于限制了可以在道路上自由行驶的车辆的尺寸,我们的小房子的尺寸被确定为9平方米。这是我们做一个实用的度假屋的全部条件。
he idea for this tiny vacation house was born out of our desire to stay away from the crowds and the concrete of the five stars beach resorts and spend time somewhere calmer and closer to nature instead. Our limited budget as a young family kept the idea of buying a plot and building on it distant and impossible. And by doing so we were just going to be part of the concrete army invading the sea side. So we opted for making our retreat on wheels. The restrictions defying the sizes of a vehicle that could freely go on the roads determined the size of our tiny home – 9 square meters. This was all we’ve got to make a functional vacation house.



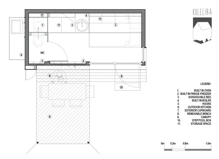
有限的空间是一个挑战,但我们设法装下了所有必要的东西,而没有被困在一个装满东西的狭窄地方的令人不快的幽闭感。屋脊处2.4米的标准高度以及大量的玻璃使这个小项目感觉更像一个宽敞的房子。来自全高窗户的光线使惊人的海景成为室内的主要部分。由于所用材料的感觉对我们来说非常重要,我们选择了白色涂油的覆层和木板。这种油使木材能够呼吸,并使新切割的木材的迷人气味永远留在小房子里。
The limited space was a challenge but we managed to fit everything necessary without the unpleasant claustrophobic feeling of being stuck in a narrow place full of stuff. The standard height of 2,4m at the ridge of the roof as well as the substantial glazing made this tiny project feel more like a spacious house. The light coming from the full height windows allowed the amazing sea view to become a dominant part in the interior. As the feel of the used materials were very important to us we chose to go with white oiled cladding and ply wood. This oil allowed the timber to breathe and kept the enchanting smell of freshly cut wood stay in the tiny house forever.

由于这个项目的主要目标是让我们花更多的时间在外面,并弥补办公室里阴暗、多雨的冬日,我们使外部成为内部的自然延续。一个横跨主立面的大板凳为我们前来拜访的亲爱的朋友们提供了足够的空间。在天幕下,我们度过了漫长的下午,喝着冰镇葡萄酒。按照保加利亚的传统要求,我们的午后葡萄酒往往变成了有海味和轻音乐的长餐。这就是为什么我们增加了重点外部照明以及白色窗格以更好地反射光线。
As the main goal of this project was to make us spend more time outside and make up for the murky, rainy, winter days in the office we made the exterior a natural continuation of the interior. A big bench spanning across the main façade made enough space for our dear friends coming to visit. Under the canopy we spent long afternoons drinking chilled wine. And as the Bulgarian traditions demand often our afternoon wine turned into long dinners with sea food and light music. That’s why we added accent exterior lighting as well as white panes to better reflect the light.

我们称这个小度假屋为Koleliba(koleliba--一个编造的词,意思是带轮子的小屋),是我们对入侵的消费主义的回应,消费主义鼓励我们总是希望我们的家更大、更好和不必要的豪华。这是向更简单的生活迈出的一步,没有多余的东西,但充满了自由的时间、快乐的时刻和朋友,而我们在永无止境的追求中往往不得不牺牲掉这些。
Koleliba as we called this tiny vacation house ( koleliba – a made up word meaning a hut with wheels) is our response to the invading consumerism that encourages us to always want our homes bigger, better and unnecessary luxurious. It’s a step back to a simpler life without excesses but full of free time, happy moments and friends that we often have to sacrifice in our never ending drive for asking more.









Architects: Hristina Hristova
Area : 9 m²
Year : 2015
Photographs :Deyan Tomov
City:RUSE
Country:Bulgaria