霍尔姆贝格的房子是一个独立的房子,位于布宜诺斯艾利斯市的一个中心区;为一个四口之家设计,一对年轻夫妇和两个小孩,它的主要特点是由一个周边的整体皮肤组成,通过它循环冷热水,并允许热调节,把它变成一种大型的散热器。
The Holmberg house is a detached house, located in one of the central districts of the city of Buenos Aires; Designed for a family of four, a young couple with two young children, its main feature consists of a perimetral integral skin through which circulates hot and cold water, and that allows thermal conditioning, transforming it into a kind of large radiator.



在一个前十米后十七米的土地上,这个三层楼的房子,就像一个金属结构和干式建筑的棱镜,出现在地板上 在天井之间,特别是在三个花园之间;一个朝向街道和西部的花园,作为通道;一个横向和朝向西北边界,作为池塘或天井,以控制气候;最后一个带游泳池的后院,将其绿色空间与苹果肺统一。
In a land between of ten meters of front by seventeen of bottom, and with a retirement of three meters of the municipal line, this house of three floors, like a prism of metallic structure and of dry construction, appears of the floor Low Between patios, specifically between three gardens; One toward the street and the west that functions as access; A lateral and towards the northwest border, that serves as pond or patio humid to control the climate; And finally a backyard with pool that unifies its green space with the apple lung.

有了一个灵活的平面图,没有划分,所有的房间(客厅、厨房、餐厅和上层的三间卧室)都可以通过大窗户俯瞰几个天井,在所有的房间创造交叉通风。方向和连接所有的时间在视觉上一起,从而从头到尾利用了地形,并最大限度地利用了其尺寸大小。
With a flexible floor plan and no divisions, all rooms (living room, kitchen, dining room and three bedrooms on the upper floors) overlook several patios through large windows, creating cross ventilation in all rooms. The directions and connecting all the time together visually, thus making use of the terrain from end to end and exploiting to the maximum its dimensioned dimensions.

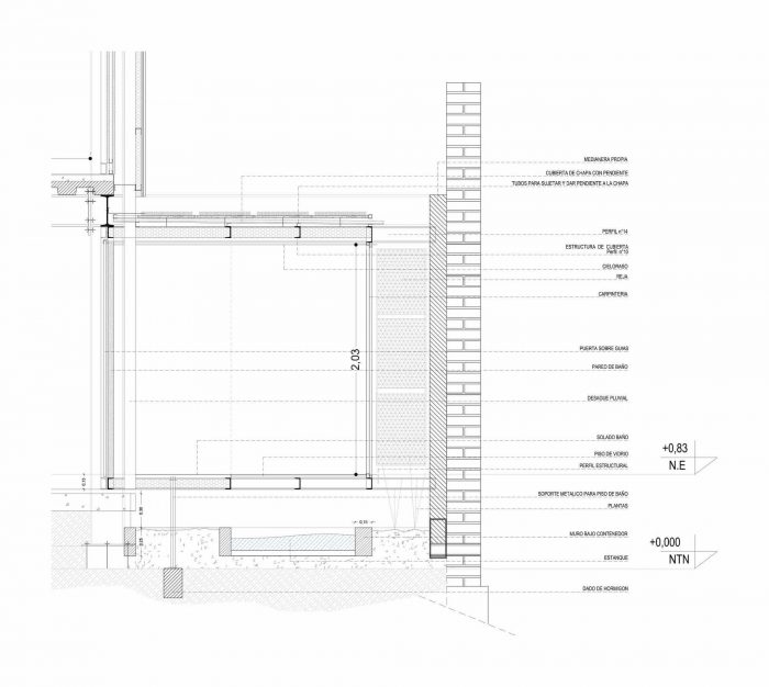
至于技术,除了其金属结构和 "钢屋顶 "板,整个房子被设计成一个大型的水循环系统,可以通过管子或周边管道到上层的棱镜,水为热,取决于它是冬天还是夏天,在两个池塘之间,一个在底层的阴凉处,应该是冷的,另一个在顶层的热,它覆盖或关闭房子的第五面 主卧室上方。
As for technology, in addition to its metal structure and "steel roof" slabs, the whole house is designed as a large water circulation system that can by means of tubes or perimeter pipes to the prism of the upper floors, Water for hot, depending on whether it is winter or summer, between two ponds, one in the shade on the ground floor and supposed to be cold, and the other hot on the top floor, which covers or closes the house in its fifth Facade Above the master bedroom.

这最后一个池塘也将被连接到一个由热能板组成的加热装置,在冬季将产生一个 "热床垫",围绕着房子,以限制热量损失和节约能源。
This last pond will also be connected to a heating device by Thermopanels which in winter will generate a "hot mattress" that surrounds the house to limit heat loss and save energy.

所有这些系统,被认为是外部皮肤,产生了房子的最终形象,所以所有输送水和环绕建筑的管道,无论是用于灌溉还是供暖,谨慎地相互分离,也起到了保护伞和支持各种物种、植物、鸟类和昆虫的作用,将外墙转化为一种花园或垂直生态系统。
All this system, thought as external skin, generates the final image of the house, so all the pipes that transport the water and surround the building, whether for irrigation or heating, prudently separated from each other, also function as umbrellas AND As a support For a wide variety of species, plants, birds and insects, transforming the facade into a kind of garden or vertical ecosystem.

作为一项研究,我们对这些问题非常感兴趣,我们已经着手测量项目的预期效果和我们正在最终完成的作品的实际使用情况之间的距离。我们在本报告中包括了这项调查所产生的一些概念。
As a study we are very interested in these issues and we have set out to measure the distance between the desired effect of the project and what actually happens with the use of the works that we are finalizing. We include in this report some notions generated by this survey:

虽然他们花了相对较少的时间在他们的职业上,并且还没有激活他们的所有系统,但由于其居住者的工作和项目所创造的小气候,与土地的使用和其一般的水循环或灌溉有关的物种数量在他们的花园里激增,这是令人惊讶的。
Although they have spent relatively little time in their occupation and have not yet activated all their systems, the number of species that have proliferated in their gardens, thanks to the work of its occupants and the microclimate created by the project, in relation to the use Of the land and its general water circulation or for irrigation, is astonishing.

每次访问,房子都会有新的物种欢迎我们,植被覆盖了建筑的痕迹。
Every visit, the house welcomes us with a new species and the vegetation is covering the traces of architecture;

鱼、蟾蜍、蟋蟀、蜻蜓、蝴蝶、爬山虎、树木、兰花、玫瑰以及芳香植物、番茄、小胡瓜、茄子。
Fish, toads, crickets, dragonflies, butterflies, creepers, trees, orchids, roses and as if that were not enough, aromatic plants, tomatoes, courgettes, aubergines,

一切都在生长,仿佛这个空间已经变成了城市中心的一个小绿洲。
everything grows as if this space had transformed into a small oasis in the center from the city.

交叉通风系统、遮阳伞和接头处的绝缘工作非常完美,允许连接人工空调系统,太阳能电池板加热水,没有来自电网的任何贡献,所有的电力连接都是断开的。
Cross-ventilation systems, umbrellas and insulation of the joints work perfectly, allowing the connection of artificial air conditioning systems, and the solar panels heat the water without any contribution from the grid and all the electrical connections are disconnected.

池塘,由于在鱼、植物和水循环之间产生了一个小的生命周期,已经稳定为一个结晶的水生态系统,今天,它的声音、植物群和动物群,是所有注意力的中心,房子和加湿器由自然从一楼。
我们相信,这项工作的最终兴趣在于它将居民、植物群和动物群与建筑结合起来的能力,如果这一切都能成功,这所房子的成功将不是基于任何关于美或其他与我们学科直接相关的问题的主流成见。
The pond, thanks to having generated a small life cycle between fish, plants and water recirculation has stabilized as a crystalline water ecosystem and is today, with its sound, flora and fauna, the center of attention of all The house and the humidifier by nature From the ground floor.
We believe that the ultimate interest in this work lies in its capacity to group its inhabitants, its flora and fauna with architecture, and that if all this works, the success of this house will not be based on any of the dominant preconceptions about Beauty or other issues directly related to our discipline.

研究提出的住房 "HABITAT "概念
Concept of housing "HABITAT" developed by the study

当代世界提出了一些与建筑和它所包含的一切有关的主题的重新概念化。
The contemporary world raises the reconceptualization of some subjects in relation to the architecture and all that it entails.

今天,我们不能以单向的眼光来看待房子,就像容纳和安慰人的容器一样,同时我们也不能认为是一个场地,把建筑与它分开。
Today we can not refer to a house from a unidirectional look, like the container that houses and consoles the man, as well as we can not think of a site, separating the architecture from its





























Architects: Estudio Borrachia
Area: 170 m²
Year: 2016
Photographs: Fernando Schapochnik
Manufacturers: Alfetec, Deluca, Tecma
Collaborators:Matias Carloni, Franco Daversa
Sanitary Installations:Alejandro Albistur
Engineering:Francisco Jarak
Author Architects:Oscar Borrachia, Alejandro Borrachia
City:Belgrano
Country:Argentina