家园建筑是塔登学校的中心枢纽,这是一所位于阿肯色州本顿维尔的新高中,学生们在这里通过实践来学习。该建筑的设计,就像学校26英亩的校园一样,努力为未来建立一个创新的愿景,同时反映出周围景观丰富的田园遗产。泰登学校挑战传统的教育模式。
The Home Building is the central hub at Thaden School, a new high school in Bentonville, Arkansas, where students learn by doing. The building’s design, much like the school’s 26-acre campus, strives to establish an innovative vision for the future while reflecting the rich, pastoral heritage of the surrounding landscape. The Thaden School challenges traditional paradigms of education.



该学校的教学法以三个标志性项目为中心。卷轴(通过制作电影和视频,使叙事和视觉交流变得生动),车轮(通过建造和使用自行车,使物理和机械变得生动),以及膳食(通过种植和准备食物,使生物、化学和社区变得生动)。
The school’s pedagogy is centered on three signature programs: Reels (where narrative and visual communication come alive through the production of film and video), Wheels (where physics and mechanics come alive through the construction and use of bicycles), and Meals (where biology, chemistry, and community come alive through the growing and preparation of food).

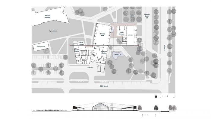
在首先领导完成了校园的总体规划(EskewDumezRipple、Marlon Blackwell Architects、Andropogon和CMTA之间的合作努力)之后,EskewDumezRipple受命设计34000平方英尺的主楼,这是校园所有学生活动的中心。
After first leading the completion of the Master Plan for the campus (a collaborative effort between EskewDumezRipple, Marlon Blackwell Architects, Andropogon, and CMTA), EskewDumezRipple was tasked with designing the 34,000-square-foot Home Building, the heart of all student activities on campus.


除了其物理上的中心位置外,家园楼还作为学生的社会和精神中心。就像校园的炉灶一样,该建筑提供了一个广阔的餐厅,所有的校园都在这里用餐,还有一个教学厨房、学生书店、图书馆和一些非结构化的休息室和学习空间。在餐厅里,它庆祝了内部的物质技术。
Beyond the physical centrality of its location, the Home Building serves as both the social and spiritual center for students. Like the hearth of the campus, the building provides an expansive dining hall, where all of the campuses comes together for meals, as well as a teaching kitchen, the student bookstore, a library, and several unstructured lounge and study spaces. In the dining hall, it celebrates the material technology within.


安装在巨大的桁架下面的白杨木板条的面纱揭示了结构设计,而不是掩盖了结构设计,并为一个用于公共用餐的空间带来了深深的温暖。该设计调和了看似矛盾的概念:建筑设计的崇高目标与当地乡土建筑的谦逊性质。
A veil of poplar slats mounted underneath enormous truss frames reveals, rather than concealing, the structural design and brings a deep warmth to a space intended for communal dining. The design reconciles seemingly contradictory notions: lofty ambitions for the building’s design with the humble nature of local, vernacular architecture.

建筑物的视觉线索来自于该地区本身,木板和木条的外墙和全木结构融入了当地乡土建筑的美。建筑物在景观中延伸,弯曲和包裹以定义一种新的校园,创造了一个由不同规模、质地和用途的室外空间组成的网络,与不同的室内空间互动。室内和室外的关系在每一个机会都得到了探索。
The building takes visual cues from the region itself, with board and batten facades and all-wood construction incorporating the beauty of local, vernacular architecture. The building stretches across the landscape, bending and wrapping to define a new kind of campus, creating a network of outdoor spaces of varying scales, textures, and uses that interact with the diverse interior spaces. Indoor-outdoor relationships are explored at every opportunity.

一个永远存在的 "水实验室 "容纳了现场收集的大部分雨水,同时为学生提供了一个独特的机会,让他们通过周围的环境学习。该设计以不寻常的方式采用了普通的材料和方法。利用住宅设计中的典型技术,该设计将简单的形式推到了极限,打开平面图以创建门廊和庭院,并将屋顶缓缓倾斜,在其中心形成一个戏剧性的38英尺高的山峰。
屋顶平面掩盖了餐厅简单的屋檐形式。一个朝天的开口刺破了户外庭院的屋顶,学生们经常在餐厅外聚集。学生们在最先进的教学厨房里上课--这是本建筑中真正独特的空间--它深深地支持了学校的 "在实践中学习 "的口号。
An ever-present “water lab” holds a majority of the rainwater that’s collected on site. while simultaneously providing a unique opportunity for students to learn via their surroundings. The design employs common materials and methods in uncommon ways. Using techniques typically found in residential design, the design pushed the simple form to its limit, opening the floor plan to create porches and courtyards and gently sloping the roof up to a dramatic 38-foot-tall peak at its center.
The roof plane enshrouds the simple gable form of the dining hall. A skyward opening punctures the roof of the outdoor courtyard where students frequently congregate outside the dining hall. Students take classes in a state-of-the-art teaching kitchen—one of the truly unique spaces in the Home Building— one that deeply espouses the school’s “learning by doing” mantra.

该建筑的设计将可持续性置于学生教育的中心。过渡空间、受保护的室外区域、作为植物教科书的景观,充满了各种植物、花卉和树木--高草草原、橡树和山核桃林地、底地硬木林、淡水湿地--该地区本土植物群落的缩影。
The building’s design places sustainability central to students’ education. Transitional spaces, protected outdoor areas, a landscape that acts as a botanical textbook filled with a diversity of plants, flowers, and trees—tallgrass prairie, oak, and pecan woodlands, bottomland hardwood forests, freshwater wetlands—a microcosm of the region’s native plant communities.

雨水管理(91%是现场管理)是通过分布式战略完成的,在整个场地内有几个滞留区。在住宅楼的后面,有一个 "水实验室",可以截留大部分的雨水,同时提供一个独特的 "教室外的教室"--让学生有机会直接从他们的环境中学习。整个建筑使用了低流量的水管装置,这将每年节省大约30,或大约100,000加仑的水。
Stormwater management (91% is managed onsite) is accomplished via a distributed strategy, with several detention areas across the site. In the rear of the Home Building, a “water lab,” detains the majority of rainwater, while offering a unique “classroom outside the classroom”—an opportunity for students to learn directly from their surroundings. Low-flow plumbing fixtures are used throughout the building which will save roughly 30, or about 100,000 gallons of water each year.

一个地热井场直接位于住宅楼前的大院子里,而不是传统的冷却塔,每年可额外节省150万加仑的水。住宅楼的设计是为了达到23的能源使用强度(EUI)(记录25 EUI或更少的学校建筑被认为是零能源准备)。后来增加的屋顶光伏阵列可能会导致实现零能耗(ZE)。
A geothermal well field sited directly on the large quad in front of the Home Building was selected instead of a traditional cooling tower, resulting in an additional 1.5M gallons of water savings annually. The Home Building was designed to achieve an Energy Use Intensity (EUI) of 23 (a school building recording 25 EUI or less is considered to be Zero Energy Ready). The later addition of a rooftop photovoltaic array could result likely achieve Zero Energy (ZE).

专用的室外空气系统确保整个建筑内的居住者有新鲜空气。通过将所有的室外空气引入建筑的单一位置(而不是每个热泵区),它可以通过一个焓轮,将废气中的热量传递给进入的空气,这也提供了除湿功能。
A dedicated outdoor air system ensures that occupants have fresh air throughout the entire building. By bringing all outdoor air into the building at a single location (instead of at each heat pump zone) it can be passed through an enthalpy wheel which transfers heat from the exhaust air to the incoming air which also provides dehumidification.









Architects: Eskew+Dumez+Ripple
Area : 3400 ft²
Year : 2019
Photographs :Timothy Hursley, Dero Sanford, Studio NOVO
Landscape Architect : Andropogon, Andropogon Associates
Civil Engineering : Ecological Design Group
MEP Engineering : CMTA Consulting Engineers
Structural Engineering : Engineering Consultants Inc.
Project Management : Aegis Property Group | WEI
Irrigation : Aqueous
General Contractor : Milestone
Signage And Wayfinding : Tom Zetek
City : Bentonville
Country : United States